Excerpt: The Hakka Triangle House, a community center designed by TEAM BLDG, reinterprets the traditional Hakka “Wei Long Wu” in a contemporary form. Integrating architecture and interior, the design transforms the enclosed semicircular typology into open triangular geometries, blending with nature through water, greenery, and expansive glazing. It embodies Hakka heritage while embracing openness and modern values.
Project Description

[Text as submitted by architect] The Community Centre is located in Conghua District, Guangzhou, Guangdong Province. For this project Shanghai based architecture studio TEAM_BLDG works on both architecture and interior and gets inspired from the local architectural culture. A building deeply bonded with the territory which refers to the form and concept of the traditional local housing typology named Wei Long Wu (Hakka Dragon House).

“Wei Long Wu” (Round Dragon Housing), also named “Long Wu”, is a variation of Hakka architecture, mostly spread around Guangdong Province and is a common form of traditional clan housing. It originated from quadrangle dwellings of central China: due to wars after the Qin Dynasty, people continued to migrate from central China to the south and built new homes. Wei Long Wu uses rammed earth as the outer wall to enclose inner housing which forms multiple concentric semi-circular structures, which have distinct functional zoning. Merely one entrance on the elevation and no openings on the ground floor were special methods to defend themselves from tribe clashes and wars. But as time went by, Hakka people gradually let go of their defensive nature and started to blend into the local culture with an open attitude, which marked the beginning of a new culture and architectural style of Lingnan Hakka people.
In this project, architects attempted to create an architectural form integrating both traditional culture and modern values by employing contemporary theories, structures, materials and therefore the traditional Hakka architecture turning from reclusion to openness.



As Hakka buildings are located in nature, this double-story building has a close relationship to the surrounding environment: the silhouette of the triangular roof overshadows the ground like a mountain while the metal columns supporting the triangular roof connect with the outdoor trees like a forest. Waterscape around the site smoothens the strict geometries. Large areas of glazing and surrounding green space redefines the relationship between the building and the environment. Elegant roofs, clusters of poles, full height curtain walls: a poem of mountains, trees and water.



At the same time, the design adopts a contemporary composition to break the traditional Hakka architecture’s layout. The geometric space is transformed from multiple concentric semicircles into similar triangles. The frame’s repetition, the plane and the overall scheme emphasizes the depth of field. The resulting configuration creates a visual sensation of layers while maintaining an open space.
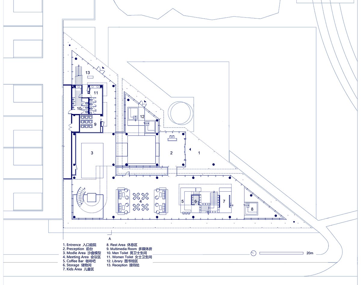
A generous canopy welcomes the visitors into the space, a 10m double height featuring suspended wooden boxes. The curtain wall guarantees the same transparent visual experience at all angles. Spaces with different functions are sophisticatedly arranged to be separated while keeping overall integrity: the sunken resting area, the wooden screen hanging from the ceiling, the meeting spaces in between stairs and bookshelves, the private VIP lounge on the second floor.

The sunken resting area is surrounded by water creating an analogy of the patio in Hakka architecture which collects and drains rainwater. The water not only reflects the variations of light and shadow, it also brings greenery into the space and builds up a harmonic environment integrating human and nature.
To adapt to the local climate, suspended wooden screens in the double height space on the south side are designed to create shading while also contributing to zoning. Meeting spaces, bookshelves and the coffee bar are located here. This vertical waving screen enriches the static and quiet mood echoing the exterior poles while also forming a volume in relation to the functional areas on the second floor.


The main meeting area creates a stable and open atmosphere by emphasizing depth and transparency of the space. Adjacent to the lounge is located the coffee bar which is connected to the giant wooden bookcase descending from the upper floor where a more private reading area is located.
A spiral stair is finely designed in the rigid space. The staircase does not require columns thanks to the precise calculation of the steel structure. Visitors have access to the VIP lounge and the offices via this spiral staircase and enjoy the picturesque natural scenes framed by the windows.

By approaching the design from both architectural and interior aspects, the integrity of the building is elegantly achieved. The traditional Hakka values are vividly embodied in a contemporary form. The delicate and delightful spaces continue to create unique experiences for visitors. The whole space experience is a continuum, the traditional Hakka village relives in a contemporary spirit with no boundaries.

