Excerpt: The Urban Pause by MAARS Design is conceived as a quiet sanctuary shaped around a tree court, a contemporary interpretation of the traditional Indian courtyard. This double-height green space organizes the space, softens daylight, drives natural ventilation, and blurs inside and outside, creating a calm microclimate within the intensity of the city. Aligned to light, ventilation, and views, its subtle gestures create a rare moment of balance.
Project Description

[Text as submitted by architect] On one of Chennai’s busy arterial streets, The Urban Pause offers a rare moment of calm. Framed by tall trees, the building appears understated from the outside, yet inside it unfolds as a quiet sanctuary that contrasts the intensity of the city.



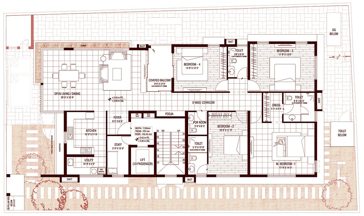
Design: The project sits on a two-ground plot and holds five apartments, one per floor, each with four bedrooms. A landscaped entry and ground-level parking open into a central circulation core that connects the residences. The planning responds both to Vaasthu principles and to the site’s natural conditions, aligning spaces to light, ventilation, and views.
At the heart of each home lies a tree court—a contemporary interpretation of the traditional Indian courtyard. This double-height green space organizes the living areas and brings a tree into the center of the apartment. It blurs the boundary between inside and outside, creating a calm microclimate and a daily connection with nature.



Climate Response: The tree court is not only symbolic but functional. Positioned along the north façade, it softens daylight and drives natural ventilation through louvered vents and a vertical stairwell shaft. Large corner glazing opens to shaded canopies in the northeast, while a southeast balcony is shaped with angled openings that funnel breezes and block harsh sun. These subtle gestures allow the building to breathe naturally in Chennai’s hot and humid climate.


Sustainability: The project is LEED Platinum–certified and integrates sustainable systems across scales. Sixty-five percent of the site is permeable, enabling rainwater harvesting through percolation pits. The terrace is divided into a landscaped surface and solar-panel array, while an underground tank stores enough rainwater to meet water demand for most of the year.

Conclusion: The Urban Pause reimagines urban housing as a place of balance—between tradition and innovation, density and intimacy, city and nature. By embedding sustainability and climate response into its design, the building becomes more than a residence: it is a pause, a refuge, and a reminder of how architecture can restore calm within the city.

