Excerpt: Tiered Realm, a residence by Fictional Project, explores the concept of ‘home’ not just as a dwelling for two individuals but also as a space for one’s work and community. With its burnished brick façade and woven spaces connected by a vertical void, it deviates from a typical BHK. The residence is fragmented and layered to find new connections, making each “tier” feel like a separate realm within a larger, interconnected whole.
Project Description


[Text as submitted by architect] “Tiered Realm” draws on the visualisation of ‘home’ not just as a dwelling for two individuals but also as a space for one’s work & community – a world abuzz with creative energy and the spirit of the individual finding meaning within the collective. This residence-cum-studio is designed for an artist couple who work with mixed media & textiles, respectively. The home was conceived as a container for the dynamic dance between work, life, the celebration of collaborative artistic processes and long-standing friendships.

The project is situated in Ambattur, on the outskirts of Chennai – a neighbourhood representative of sprawling Indian suburbia, with brightly painted 2-3 storey houses occupying tightly apportioned plots of land. “Tiered Realm” deviates from the typical ‘BHK’ format, its burnished brick façade unfolding gently upwards from the street along the west edge of the site, concealing a tapestry of interwoven spaces united by a communicative vertical void.


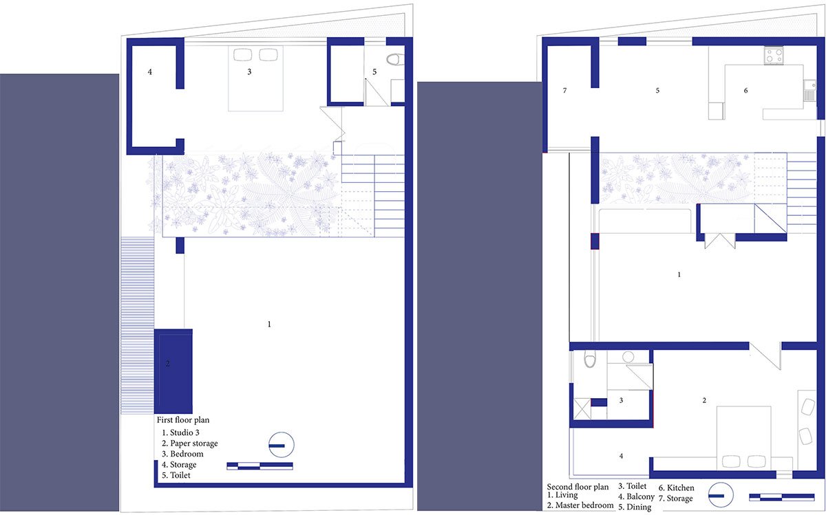
The realm of work meets the street, generously opening along the edge, ushering one into the home. On the ground is a space that can be used as a workshop for large-format work and larger groups, with an attached storage area neatly tucked away towards the rear. The indoor garden that runs along the North-south axis roots the open core of the building, illuminated by a skylight along the north edge of the roof. Light from above washes across the multiple spatial layers to varying degrees, revealing the connectedness between spaces.



The staircase is a vital seam stitching together the many realms of the house that gradually cascade upwards through split levels of varying proportions. The landings expand to alternatingly form zones for work, rest, and recreation. The act of stepping the volumes results in conversations crisscrossing through the realm of work, where each space also acts as a staggered gallery to its neighbouring workshop across the core. The workshop for mixed-media work is the largest, the West edge subtly mediated to filter the daylight entering the space. The workshops for textile art run along the eastern edge, implying the twin nature of the artistic process which thrives as much on collaborative work as it does on spells of individual rumination. The open workshop below facilitates the placement of elongated worktables while the space above is enclosed using a system of wooden shutters, allowing a retreat into an atelier-like nest.



The realm of residence crowns the house, with a compact kitchen that can gather near and dear for a meal. The penultimate landing of the staircase expands into a living area and a private bedroom with balcony along the west. The social, celebratory realm caps the house in the form of a terrace with stepped seating overlooking a lake in the distance, a space for get-togethers at the end of the day.


Material explorations bear further testament to the spirit of artistic collaboration. The workshops are united by a restrained palette of hardy IPS flooring while the residential spaces are enlivened by handmade Athangudi tiles. The pigmented plaster surfaces of the internal walls derived their shades from consultation with the artists and the respective functions of the spaces. Lighter shades are used in the workspaces while spaces for rest and repose take on darker hues that embrace shadows. A sliding door crafted from recycled wood reuses wooden ceiling & column ornaments from older constructions to form a welcoming collage along the street edge.

Bands of brick laid in differing configurations imbue the street-facing façade with composed animateness, showcasing the wealth of craftsmanship native to the land. The brick skin is a skilled expression of a series of relationships that continues inwards, reflecting the nature of the artists’ mixed-media explorations. Fragmenting the whole and layering it anew to discover new relationships could very well be the most relevant metaphor for the architectural process which allows each “tier” to be a realm unto its own within an interconnected whole.