Excerpt: Villa City, designed by Story Architecture, organizes a reasonable living, working, and resting space and relieves the inhibitory mentality. The narrowing of the living room, eliminating bedrooms and making bunk beds for the children to share a room leads to plenty of space to plant trees, swimming pools, and tree houses for the babies to play.
Project Description
[Text as submitted by architect] When we took on a project to design it, there was an outbreak of the Corona virus. Closed schools and entertainment spaces enforced social isolation. Housing spaces are starting to take on the task of serving people more, with more difficulty than narrow residential spaces located inside big cities. We put the issue of priority space for young children, the space to relax is also more interested.



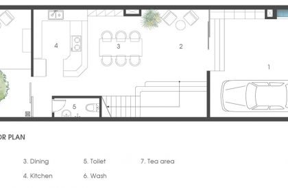
Villa City Project is located in District 7, Ho Chi Minh City, Vietnam. House for husband and wife and 2 sons. With an area of 117m2 and a limited investment budget, we consider to organize a reasonable living, working, resting space and relieve the inhibitory mentality when being restricted from leaving the house when the situation can have long-term social isolation. The narrowing of the living room, eliminating bedrooms, making bunk beds for the children to share a room leads to plenty of space to plant trees, swimming pools and tree houses for the babies to play. Helps to release energy for babies.



The children’s bedroom and parent bedroom have connecting doors, and connected to the balcony to create a connected space long enough for the children to run comfortably, the bedroom is designed with a large glass wall overlooking the greenery and Get natural light from the floor pockets to make the bedroom airy, freeing the vision.




