Excerpt: The architecture of Vitesco Offices designed by TAA (Taillandier Architectes Associés) is rational, reflecting the image of the company Vitesco and through its use of concrete and white aluminum, it confers on the project an elegant and timeless image. The proposed architecture is a box of white concrete that reflects the light, allowing a representation of the diverse programs, revealing them through its regular façade.
Project Description
[Text as submitted by architect] The “Bureaux Vitesco” project is the construction of a new office unit, the Enov building, the new interconnected and eco-designed headquarters of Vitesco Technologies France, in Toulouse (Occitanie region, France).


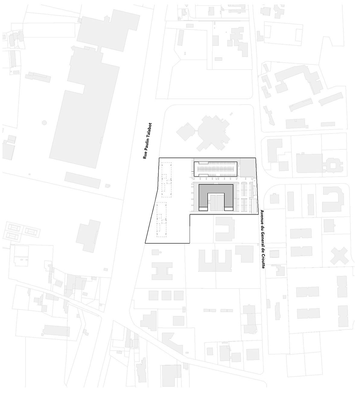
The project’s plot is situated to the Southwest of Toulouse, near the Mirail area, on the Basso Cambo business park. It is in the block formed by the streets Rue Paulin Talabot and Avenue du Général De Croutte. Green spaces are dotted across this estate and found principally in its car parks and at property boundaries. These green islands are grouped in the form of parks or denser zones, this natural element contributing to the quarter’s environmental qualities.

The building’s U-shape allows the creation of a ‘protected’ pedestrian space, acting both as an interior courtyard and as an entrance forecourt. Equally, this space participates in defining the volume’s function and how it is read. Access is maintained from the shared plot allowing the creation of a path for users to cross the project.



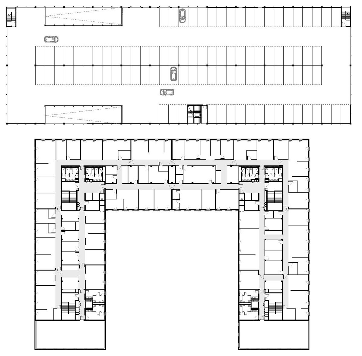
Parking is concentrated in the metal structure multi-story block, which gives the Vitesco campus a more urban look, being positioned on the other side of the road, facing the main entrance.
The volume’s U-shape facilitates flow within the project. The main entrance gives access to the building’s central block. This serves – on each side – two additional office wings. The volume contains three levels above the ground floor. Access to the upper floors is by way of the circulation cores situated at the junction with each of the building’s wings.



The surrounding outdoor spaces are landscaped to meet the challenge of integrating the project in its environment through a simple and clear design.
The objective in the design process for the Enov project was not to simply create an additional building in the business park but to use this opportunity to drive a sustainable change in the area. Enov building was designed as the first foundational element in the Vitesco campus.The quality of workspace conditions has long been a preoccupation in the project and the pandemic’s lockdowns have reinforced the designers’ convictions. Enov places emphasis on its exterior planted areas, protected by the central patio. It is the possibility to work differently, whenever the weather allows, to meet in agreeable surroundings or to be alone in the calm.



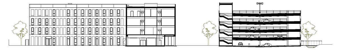
The proposed architecture is a box of white concrete that reflects the light, allowing a representation of the diverse programs, revealing them through its regular façade, communicating a sober, timeless image.
Horizontal recessed channels discretely underline the vertical rhythm, in harmony with the scale of the façade and the user. This grid in the concrete becomes a matrix that structures the project, in both elevation and plan. This allows the integration of technical elements necessary for the ground-floor cleanrooms and laboratories. Similarly, the entrance hall’s forecourt provides transparency through to the patio, animating the plan.


The architecture is rational – reflecting the image of the company Vitesco – and through its use of concrete and white aluminum, it confers on the project an elegant and timeless image.

