Project Description
[Text as submitted by Architect] WuliEpoch Culture Center attempts to create a triptych for architecture, landscape and interior design in the project. While the project is encompassed by the splendor Western Hills, the architecture and interior design put up an immersive show within the landscape. The distance landscape is introduced to the project in a dynamic rather than static way. A continuous path wrapped around from exterior to interior. The first nature of landscape and the second nature of the interior space join seamlessly through the path. The ambience along the path is circumferential and religious to some extend, as a way to worship nature.





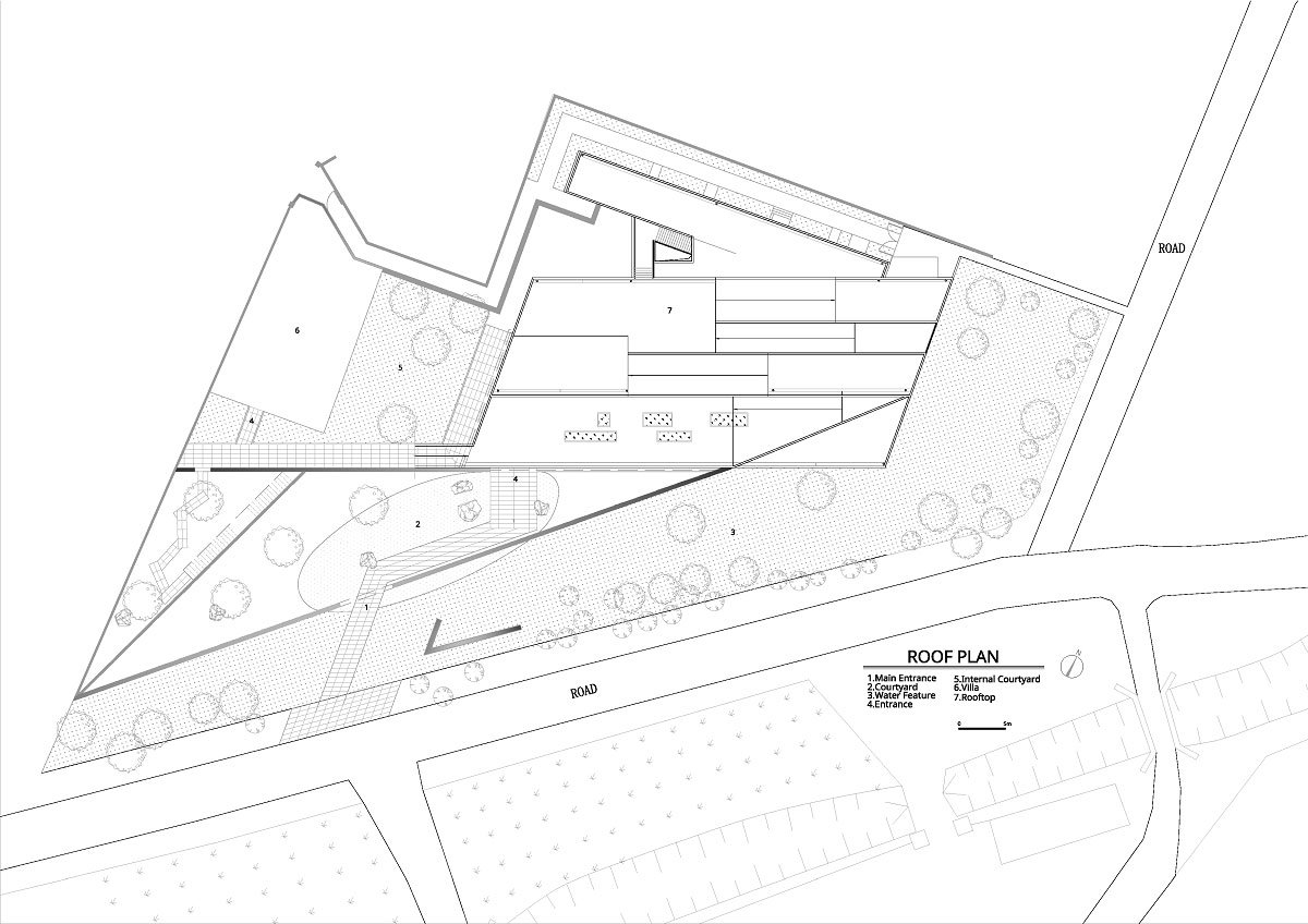
As the site is triangulated, the project responses to the site, by stacking layers of curve walls, in a crisscrossing fashion to create layers of courtyards. Spatial demarcations are horizontal walls on the ground or suspended in the air. Seeking a dialogue with the courtyard house in Beijing, as well as the Great Wall scenery nearby, the material used for the project is carefully proportioned masonry wall, and it is used throughout landscape, architecture and interior design. A uniform tone brings historic gravitas to the project. The project encompasses a 1500sm space for community and a 400sm skating rink.





The project interprets nature in three ways: 1. the interior space depicts nature in a digital fashion. The signature image of “autumn foliage in Western Hills” is depicted the field of glittering wooden laminated aluminum panels. The array of ceiling panels change color from warm yellow to white, suggesting the transition from entrance to skating ring. An “inverted Western Hills” is created by various curving array of ceiling panels. 2. First nature and second nature are juxtaposed and joined simultaneously. Recycle concrete blocks are cut into thin pieces and put together to form curving nature surfaces. The hills and waterfalls, created by thin masonry and lighting, show the solidification and abstraction of nature. The contrast between the mortal and immortal nature gives people space to think critically about nature. 3. Distance landscape is introduced into the interior in a dynamic way. Landscape becomes a living space.



