Excerpt: Beseda Ořechovka Tennis Club by Pavel Hnilička Architects+Planners draws inspiration from traditional garden architecture, evoking the calm elegance of spa gazebos and colonnades. The lightweight wooden structure emphasizes openness, craftsmanship, and harmony with its surroundings. Classical elements and natural materials are combined to create a timeless yet contemporary building.
Project Description

[Text as submitted by architect] The new tennis club pavilion is located in the very heart of Prague’s district of Ořechovka. It was built on the site of a small wooden clubhouse that stood there during the First Republic, which was replaced in the 1980s by a temporary building of prefabricated site units. This ‘temporary structure’ lasted for almost 50 years and has deteriorated badly.



The wooden structure is intentionally lightweight and built on columns like a garden pavilion in the middle of a park. Its expression evokes spa gazebos and colonnades associated with tranquility. The building uses classic architectural elements such as a plinth, a column row and a lintel with a cornice.


The wooden oak columns are load-bearing and use the proven principle of entasis for their elegance. They are supported by architraves with simplified friezes and then a coupled frame ceiling structure. The protruding rafters taper at their ends to soften the visual effect of the roof edge. The emphasis is on quality, durability and craftsmanship of materials.



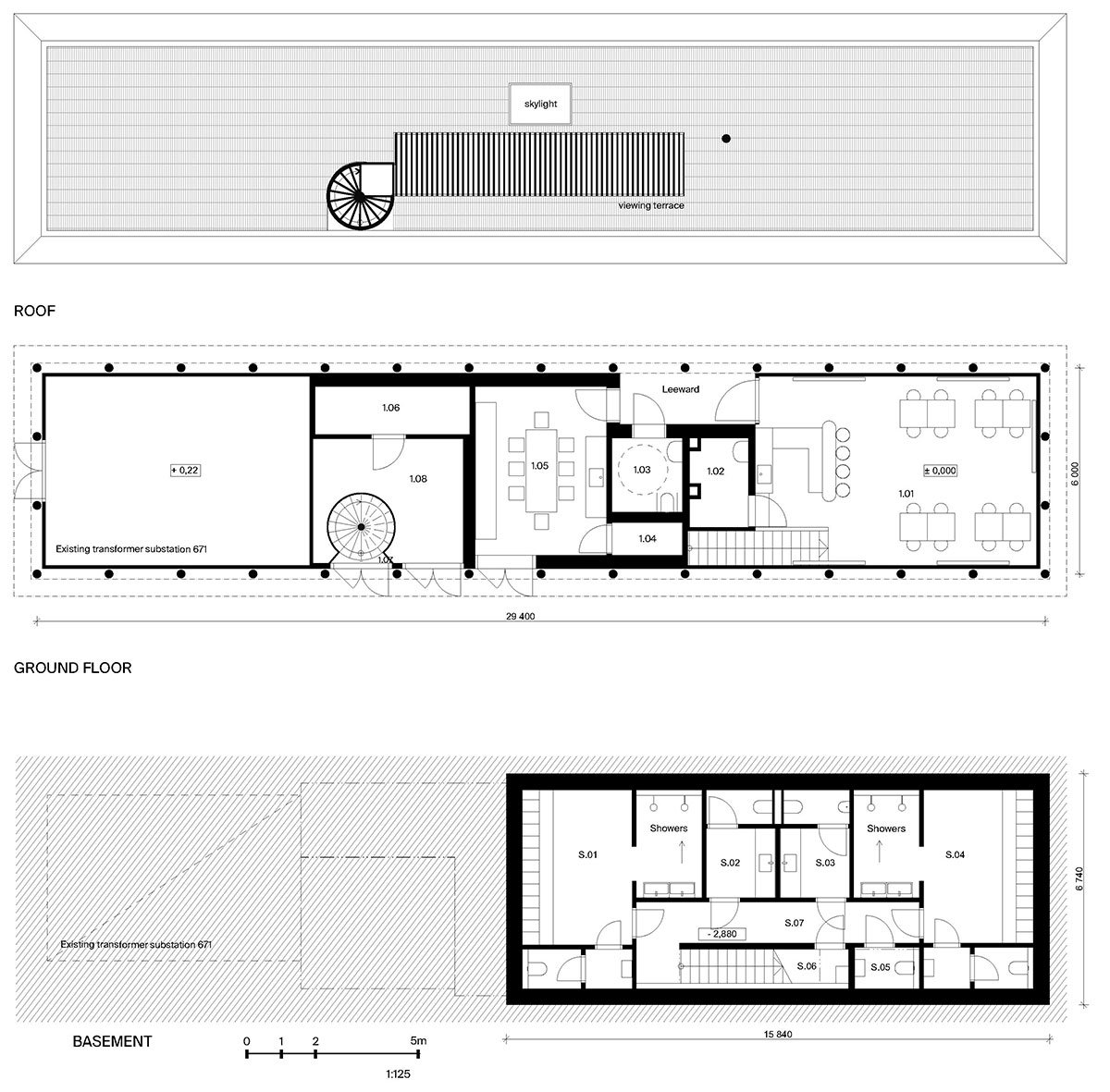
The above-ground part of the tennis club is defined by a glass café open on three sides with access to the changing rooms and the playground, followed by the clubhouse, public toilets and storage rooms. A spiral staircase leads up to the rooftop viewing terrace. At first glance, it is not noticeable that the upper part of the building covers the existing brick substation. In the lower part, the changing rooms and toilets are hidden under the adjacent terrain to make the building appear optically smaller and to integrate it into the context of its surroundings.

Wide stairs for seating are placed on the axis of Machar Square, facing the liveliest part of the street. To the east, the terrain is raised, expanding the outdoor café area that has become very popular for pétanque.
The project was constructed by ARCUS-Růžička.

