Excerpt: BMW Experience Center is a commercial space designed by the architectural firm ARCHIHOPE. With a history of one hundred years, BMW is not only a car brand but also a kind of culture. Based on the changeable triangular texture unit seized from the conception car, NEXT100, the architects combined the geographical feature to create moving lines and connections in the Chengdu Baochuang BMW 4S Showroom, completing a unified and high-quality design from building renovation to landscape and interior space.
Project Description
[Text as submitted by Architect] From Bayerische Flugzeugwerke AG to BMW VISION NEXT100, BMW, with a history of one hundred years, is not only a car brand but also a kind of culture. Based on the changeable triangular texture unit seized from the conception car, NEXT100, the architects combined the geographical feature to create moving lines and connections in the Chengdu Baochuang BMW 4S Showroom, completing a unified and high-quality design from building renovation to landscape and interior space.

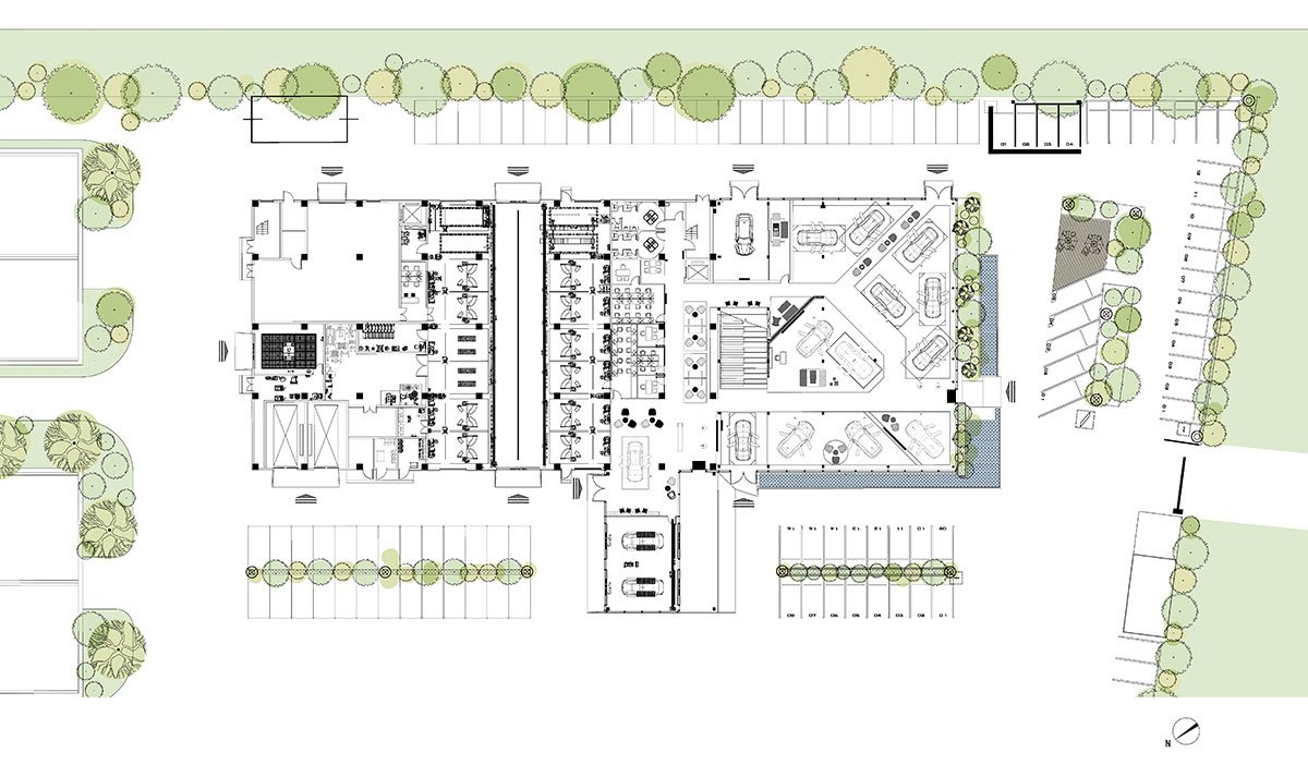
Located beside the Gaodian Road, Pidu District, Chengdu, the original building with a total floor space of more than 10,000 square meters had been abandoned for years, whose exterior wall bricks were seriously aging and partially had peeled off, and flues were exposed. So, the renovation faced many challenges. The owner wanted the building to become a dynamic and remarkable volume, which meant it would be easy to identify from the high-speed rail and highway across from the building and incorporate BMW’s environmental-friendly and sustainable concept.


The architects set up a second layer of skin — anodized perforated facade outside the main body of the building, with the texture inspired by triangles in the skin of the conception car VISION NEXT, and strengthen the readability of layered blocks of the vertical and horizontal matrix. On the premise of lighting, the perforated facade covers the internal workshop of the building, making the overall facade of the building rich in layers. The curtain wall unit in the perforated facade is a large area of natural ventilation windows that can be opened independently, which reduces the heat island effect caused by the absorbed radiant heat from a large amount of direct sunlight in summer and reduces the cooling energy consumption ratio, to achieve the sustainable concept of energy conservation and emission reduction. It brings shade in summer and creates heat insulation in winter. Like a layer of ecological skin, the building is more environmentally friendly.


As the owner required a short construction period and a controllable cost, we put forward a scheme of prefabricated steel structure after accepting the exterior design scheme of the building, that is, to complete a lot of work in the processing workshop and then assemble these prefabricated components on site. The scheme ensures the quality and accuracy of the project.


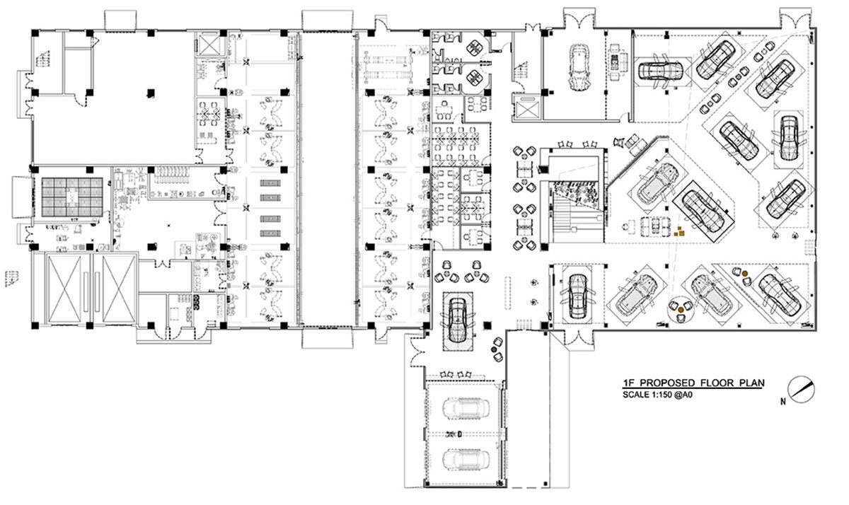
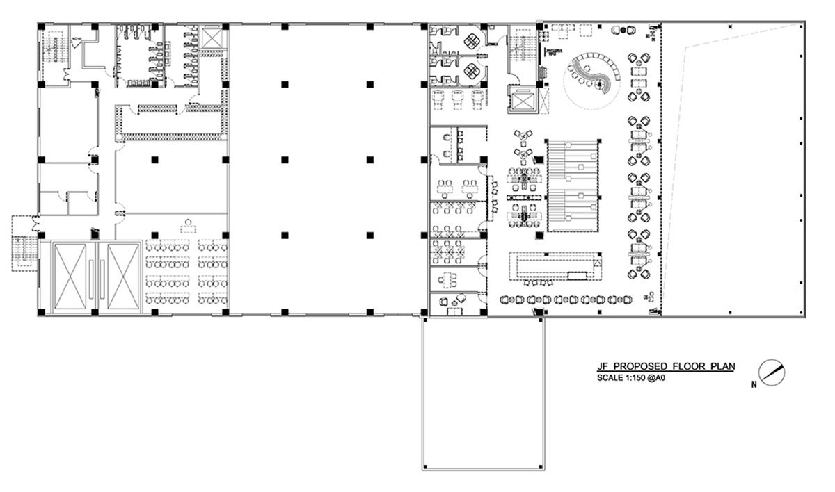
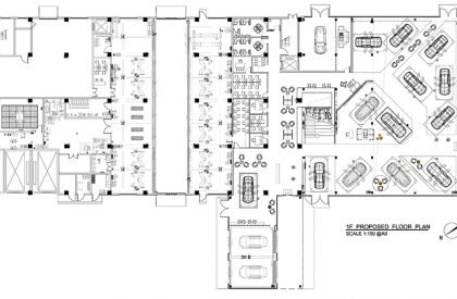
The unified design of architecture, landscape, and interior space allow the design concept to run throughout the project. On the first floor of the south space inside the building are a specialized BMW exhibition hall and roadshow area. The latter is a car pre-inspection service workshop whose fully open space provides customers with visual pre-inspection service. While on the mezzanine are an open rest area, a retail merch area, and other shared social zones. The original intention of the design for the whole space is to be social and transparent, so the double-layer space on the whole floor should be integrated.

As we know, the surface water in the Pidu District, where the building site is located, is a river system composed of distributaries from the Precious Bottle Neck Neijiang River of Dujiangyan. It is the geographical feature that inspires the design inspiration of architects. Therefore, the architect did not do too much work on space partitioning but focused on the moving line design of the hall. Responding to the concept of the Dujiangyan river system field with the moving line design, the field, architecture, people, car, lifestyle, and BMW brand concept are connected in a design language that the changes are derived from one unit.


The unit, still inspired by the triangle symbol of BMW VISION NEXT, is a large geometric suspended ceiling installation that extends through the two spaces of the mezzanine to form a symbiotic relationship. The installation overhanging the mezzanine is mainly composed of four triangles to form an arrow symbol pointing to the future.

The extension part of the installation is to provide a guide for the moving line of customers. From the different car model areas in the exhibition hall to the two-layer complex multi-functional spaces, including the lifestyle area, retail merch area, leisure area, tea room, and café area, they are derived from and connected by the triangular unit, which also integrates display, sales, customer experience, and after-sales service at the same time. As the owner said, “we don’t have any mysterious place. All services are open to customers, and everyone who comes here can freely enjoy the free services we bring to them, whether it’s coffee, tea ceremony, or various entertainment and social activities”. Therefore, there is no physical partition in the overall space layout, with the hope of providing a space for customers to move freely.


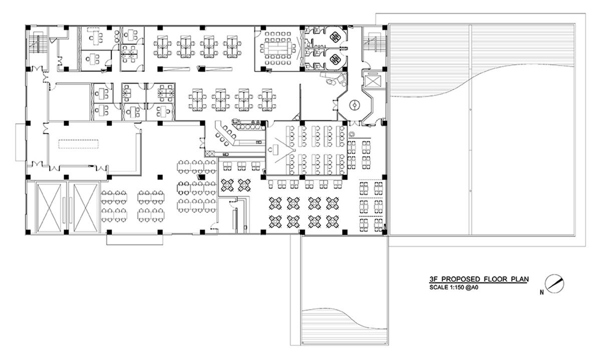
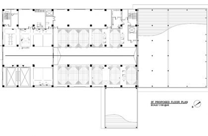
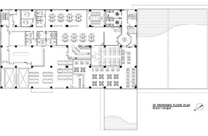
The steel structure of the unit can be recycled in the future. The design of the hall open to below raises the visual space. It improves the overall brightness to reduce an array of lighting arrangements, saving costs and reducing power consumption. On the second floor are a relatively independent customer restaurant and internal office area, while on the third, fourth, and fifth floors are specialized maintenance workshops. In the multi-functional complex, we focus on the diversion of the moving line in the overall design. Thus, independent moving lines that do not affect each other are designed for customers, service personnel, and workshop workers.


In our point of view, a good design is not a pile of materials, so simple wood grain color and white are the main tones of the whole space. As an environmentally friendly material, the colored wood grain aluminum profile will not release harmful elements such as radon, formaldehyde, etc., and has strong plasticity. More importantly, it not only lasts longer than solid wood but also can protect the ecological environment by replacing solid wood and reducing the waste of material resources. The facade made of white stainless steel is reusable, safe, and secure. It will not change color or rust, which enhances the simplicity of the overall space while achieving the sustainable concept of reuse.

