Casa F | Florcheli Arquitectura

Save
Casa F | Florcheli Arquitectura

Information

  • Completion year: 2024
  • Project Location: Buenos Aires
  • Country: Argentina
  • Lead Architects/Designer: Cheli & De Felipe Arquitectos
  • Photo Credits: Andrés Domínguez
More Info Less Info

Excerpt: Casa F, designed by Florcheli Arquitectura, draws inspiration from its connection with the terrain and the environment. The topography of the ravine, with its difference in levels, generated the idea of a main floor detached from the ground, creating space for parking and services below. The residence seeks maximum connection with the forest through glass enclosures, exposed concrete trays, and natural materials that blend with the surroundings.

Project Description

[Text as submitted by architect] The connection with the terrain and the environment was the greatest inspiration to design our House F.

Casa F | Florcheli Arquitectura
© Andrés Domínguez
Casa F | Florcheli Arquitectura
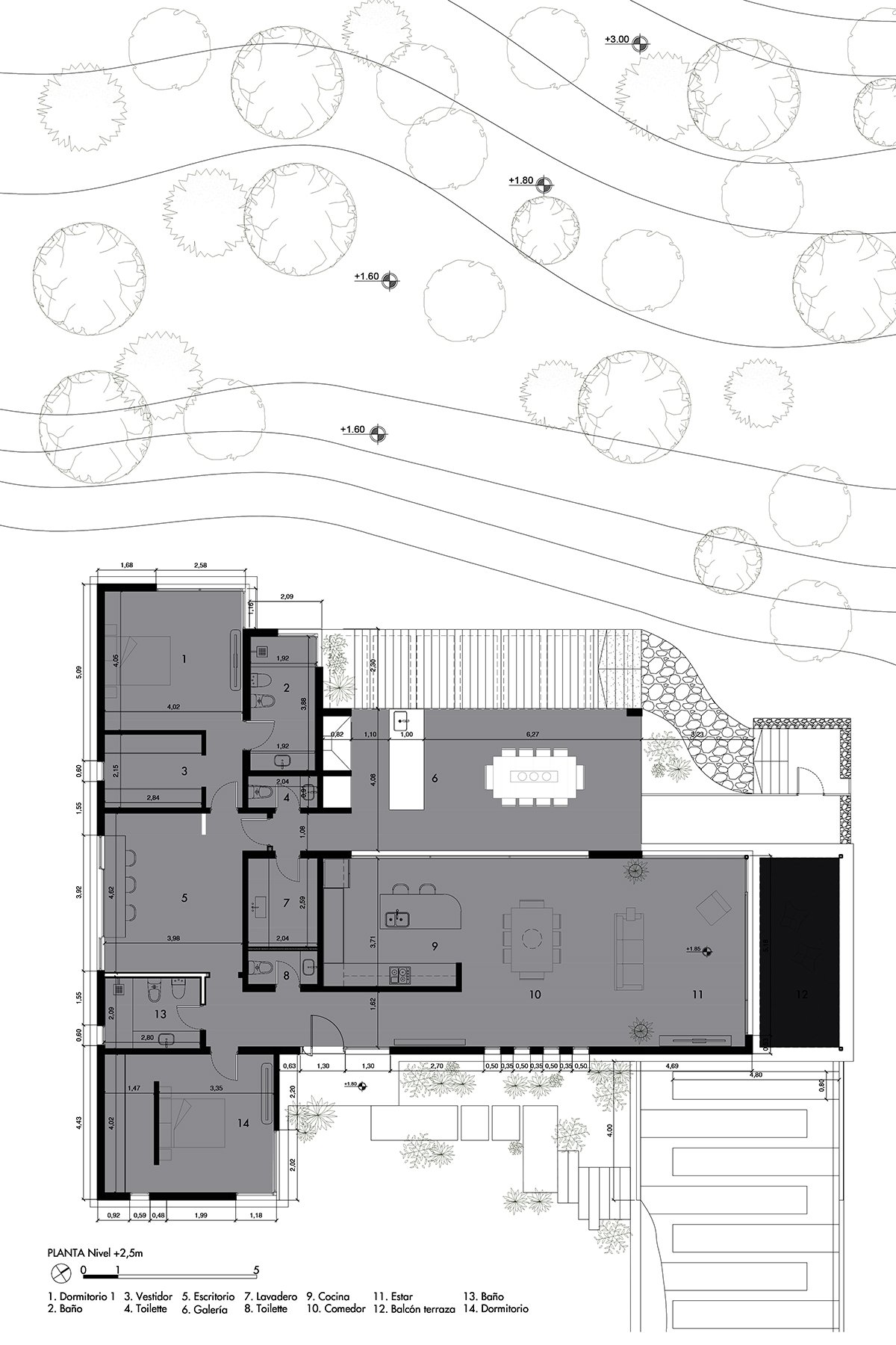
Floor Plan © Florcheli Arquitectura
Casa F | Florcheli Arquitectura
© Andrés Domínguez

The topography of the ravine presented a significant difference in level between the sides of the land that was invited to generate a main floor that detaches from the ground and generates space for parking and services below level zero. That was the generative concept of the idea of the party. Then look for the maximum connection with the environment, immersed in a forest and that this feeling is not lost inside the house.

Casa F | Florcheli Arquitectura
© Andrés Domínguez
Casa F | Florcheli Arquitectura
© Andrés Domínguez

It consists of a very simple main floor, with a wing for the social areas and perpendicular to this a wing of bedrooms and study.

Casa F | Florcheli Arquitectura
© Andrés Domínguez
Casa F | Florcheli Arquitectura
Elevation and Section © Florcheli Arquitectura
Casa F | Florcheli Arquitectura
© Andrés Domínguez

Resolved constructively by two exposed concrete trays, one for the floor and the other for the roof that emphasize horizontality. The enclosures are largely made of glass, establishing the connection with the forest, and masonry clad in natural wood for the most unfavorable orientations or to gain privacy.

Casa F | Florcheli Arquitectura
© Andrés Domínguez

The walls below ground level were clad in natural stone to give it a more solid character in the basement.

Leave a Reply