Excerpt: Casa Gralhas by OSPA Arquitetura & Urbanismo is defined by four parallel brick walls that organize the ground floor into a garage, kitchen, living room, and master suite. Above, two suites rest on a concrete slab in a dark rectangular volume, all crowned by an angled metallic roof. The residence emphasizes the dialogue between rustic, imperfect brick and the precision of metal sheets, creating contrast and spatial richness.
Project Description

[Text as submitted by architect] Louis Kahn said, “You ask a brick, ‘What do you want to be, brick?’ and the brick replies, ‘I like bows’. Most bricks we interviewed said they would like to make a home. Four walls and a roof. We think they were older, more mature bricks. With the intention of settling down.



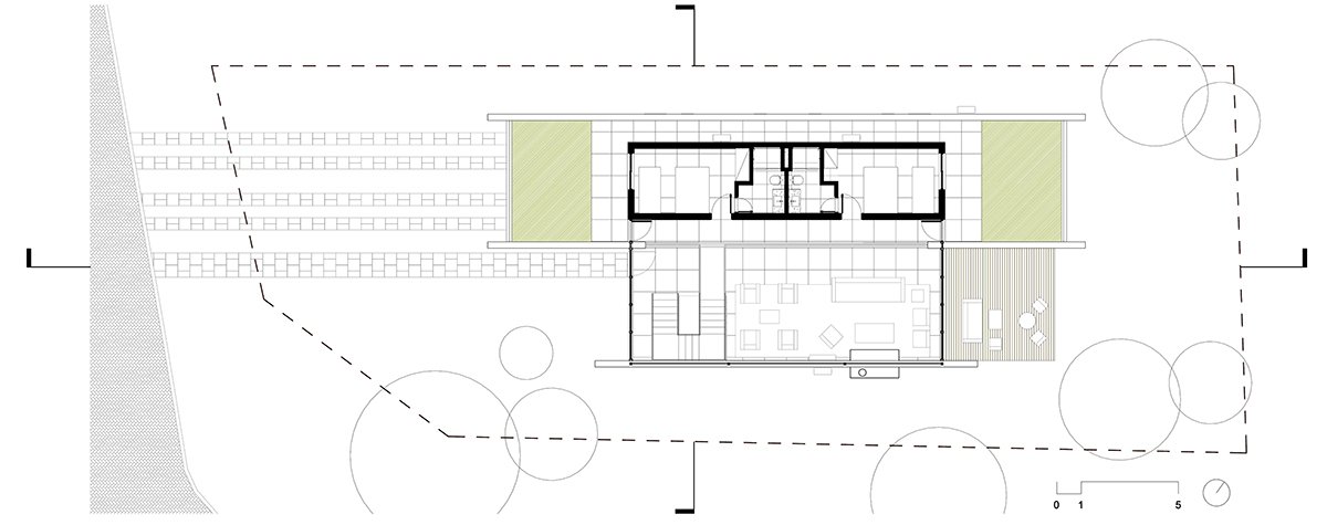
The ground floor plan is characterized by four parallel lines. The four brick walls. The main spaces are configured by these partitions: The garage, kitchen, living room and master suite.



The other two suites, requested by the client, rest on the concrete slab above the kitchen, in a dark rectangular volume. The set is crowned by an angled metallic roof, a requirement of the legislation, which creates a double-height room.

The contrast between the rustic, imperfect brick and the straight, artificial metal sheets is a clear highlight of the project.

