Excerpt: Hokusai Passages, designed by NArchitekTURA, attempts to create a space on the border of art, architecture & nature within museum galleries. The exhibition layout follows the idea of hiding and gradually discovering the view (miegakure), bringing to mind historical temples, palaces, gardens, and houses of ”the land of cherry blossoms.” The presented exhibition can be considered an attempt to establish an intercultural and interdisciplinary dialogue using various means of expression – material and non-material.
Project Description
[Text as submitted by architect] Arrangement of the exhibition ”Hokusai. Passages…” is an attempt to create a space on the border of art, architecture and nature within museum galleries. The project was inspired by unique woodblock prints by Katsushika Hokusai (1760-1849) as well as different motifs from Japanese tradition, culture and aesthetics reinterpreted using modern means of expression. The layout of the exhibition follows the idea of hiding and gradually discovering the view (miegakure), bringing to mind historical temples, palaces, gardens and houses of ”the land of cherry blossoms”.


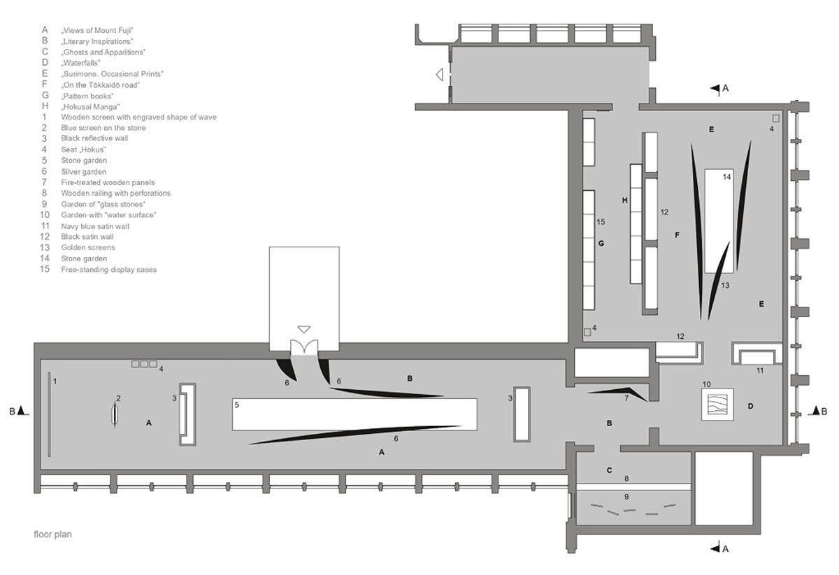
Low walls made out of various materials separate individual interiors and suggest the itinerary of the visit, guiding guests to the subsequent groups of works of art (”Views of Mount Fuji”, “Literary Inspirations”, ”Ghosts and Apparitions”, ”Waterfalls”, ”Surimono. Occasional Prints”, ”On the Tōkaidō Road”, ”Pattern books”, ”Hokusai Manga”). The rectangular interiors feature additional diagonal screens, painted with silver and gold varnish. Such subdued, metallic hues are a reference to similar colors used in Japanese art (fuki bokashi – shading, silver plating and gilding in woodblock printing, maki-e – craft gold plating) and architecture (hishibuki – wiping off zinc sheets). Seven free-standing narrow walls (”slimmed” at the edges to a width of between 1 to 3 cm) disturb the regularity of the layout and symmetrical enfilade arrangement. Their plan may resemble calligraphic brush strokes or cuts in woodblocks.


Also, smaller separating elements were designed individually. The wall with probably two of the most famous works by Hokusai (“The Great Wave off Kanagawa” and ”Fine Wind, Clear Morning”) stands on a specially selected boulder, which may suggest a reference to historical solutions in the shaping of Japanese gardens (keiseki stones) and architecture (soseki stones). The background for this free-standing display is a screen for selected works from the series “Thirty-Six Views of Mount Fuji”. The panel boards, hand-dyed gray, are cut by an engraving which is an enlargement of a few lines from the “great wave” exposed in front of it. This gesture was intended to illustrate the woodblock carving technique on a larger scale and strengthen the relationship between the work of art and its background.


Another work – ”The Dish Mansion” from the series “One Hundred Ghost Tales” – inspired the creation of a perforated balustrade in one of the smaller rooms. Patterns cut in tinted plywood are based on lines created by Hokusai illustrating wood divisions (this procedure may also resemble an architectural interpretation of the so-called blind embossing technique – karazuri). Elsewhere, the background for the exhibits are fire-treated wooden panels (yakisugi). Two reflective black walls, placed opposite in the first room, may in turn bring to mind the color and texture of Japanese lacquer used in traditional serving utensils. The dark colors and discreet lighting of the exhibition are a nod to the book „In Praise of Shadows” by Jun’ichirō Tanizaki. All rooms are painted black, with the exception of one central room with waterfall representations – in this case a satin navy blue color taken from the works of Katsushika Hokusai was applied.


One of the most important elements of the arrangement are four “gardens”, adjusted to the individual exhibition spaces. They are an attempt to introduce nature (so beautifully and synthetically presented by Hokusai) into museum interiors. Sometimes this “implementation” is literal, on other occasions indirect, but in both cases it allows for a wide range of interpretations and associations with the work of this Japanese artist. The “gardens” in the first and last room are filled with specially selected stones. The temples in Kyoto: Daitoku-ji, Ryōan-ji and Ginkaku-ji were the inspiration for such unusual accents in the exhibition spaces. As in the ancient Japanese art of landscaping, the oblong “dry gardens” (karesansui) in the exhibition ”Hokusai.


Passages…” are to serve for reflection, contemplation and tranquility (the presence of works of art has been limited in their immediate surroundings). The shapes, colors and textures of the selected boulders indirectly refer to the works displayed in specific rooms. Importantly, these stones were only borrowed for the duration of the exhibition, and after its end, they will be returned to the company dealing with their distribution and will serve to decorate some new gardens in the future. In subsequent exhibition spaces, the selection of colors and materials is also based on specific works by Hokusai. In the room with the representations of “ghosts and apparitions”, free-standing frames with woodblock prints appear in a camouflaged „garden” filled with pieces of turquoise sintered glass. In turn, in the dark blue room with illustrations of waterfalls and bridges, a spatial installation inspired by the surface of water is placed in the central point. This attempt to capture something elusive in a permanent form fits in with the concept of ukiyo-e, describing old Japanese art as “images of the floating world”. This idea is present in many elements of the exhibition arrangement, including the intangible ones – discreet music, moving projections, or the smell of various natural materials (wood, stone, canvas, paper).
The project is complemented with individually designed descriptions (inspired by noren fabric dividers), wooden seats of different heights or hand-painted calligraphic signs indicating the itinerary, and the exhibition begins and ends with an enlarged red stamp of the artist.


The presented exhibition can be considered an attempt to establish an intercultural and interdisciplinary dialogue with the use of various means of expression – material and non-material. The exhibition ”Hokusai. Passages…” may be a substitute for the experience of traveling in time and a short visit to a slightly different, yet fascinating reality. It is an architecture of shadow, contemplation and gradual discovery of new secrets.

