Excerpt: Hornero Roga is an architectural design project designed by OMCM in Paraguay. The project offered the potential of improve its immediate surroundings, injecting some new air into a neighborhood forgotten in time, but with a great future ahead.
Project Description
[Text as submitted by architect] The Asuncenos neighborhoods of yesteryear, traditional and almost timeless, are being reached by the impetus of real estate development that day after day seeks to provide options to the growing urban population. Many times it happens that the hasty undertaking condemns architecture to a second – or third – level of importance, prioritizing “practicality” and the prejudices of insecurity that are very common in the country, which do nothing good to the imaginary of today’s society. We wanted that not to be the case.
The situation presented a house approximately 40 years old and in quite deteriorated conditions that had to be reincorporated into the supply of real estate. It was already in demolition work, and without an architectural project to follow.


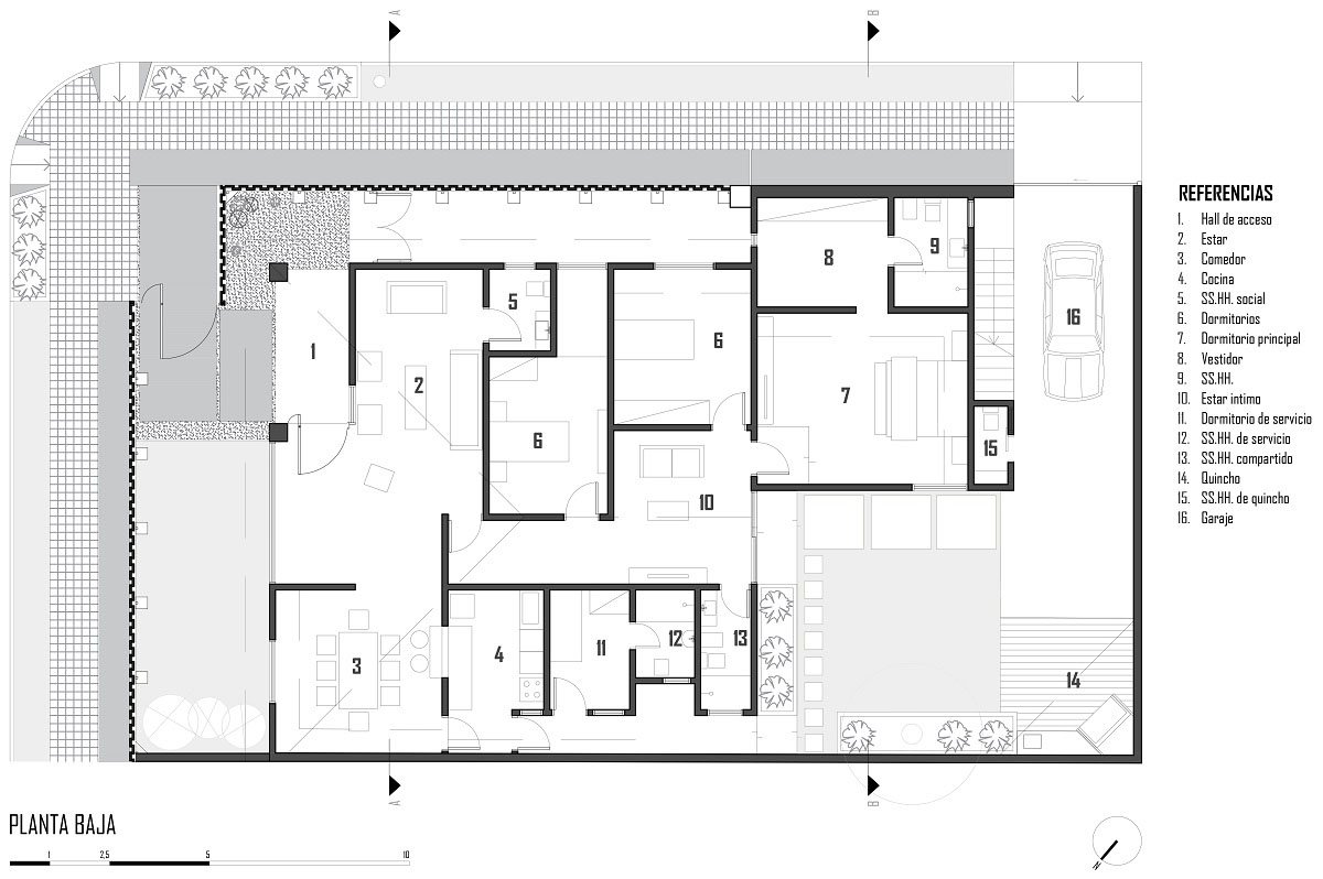
The pressure of time led us to make a quick diagnosis of the situation and to act with the same inertia, while we elaborated a parallel idea that could mean – at least something – for the city. In addition to modifying the spatiality according to the new requirements of the client and the general public (Living room, dining room, 3 bedrooms, service, etc. etc., a condition without which architects would not have this type of work), the project offered the potential of improve its immediate surroundings, injecting some new air into a neighborhood forgotten in time, but with a great future ahead.
A corner … Formed by the intersection of two streets, acting as an “urban forks”, a privileged location for offering more than one facade, it was the setting for the implementation of this project that sought to give shelter, protection and warmth to a new home , a new “nest” that would return to the useful cycle of housing in Asunción.



In an effort to find unity in the fragmented and chaotic urban environment from the construction point of view, the proposal consisted of generating a ceramic continuum by means of thin perforated envelopes, which, added to the reddish roof, could provoke the senses of those who walk through the place, allegorically configuring a hornero’s nest, a typical bird of the South American region.
Ceramic brick, widely used in Paraguay for its economy, was called once again as the protagonist of the intervention, where masons, blacksmiths and carpenters, like good artisans of patient and skillful labor, gathered in a solidary work and were capable of transforming matter into space and endowing it with unusual and interesting qualities for the construction of the collective repertoire that characterizes contemporary Paraguayan architecture, where the interventions become true processes of experimentation through trials, verifications and adjustments until the results are achieved. expected.



nce the work was finished, there was nothing left but to leave the sun, the special guest of architecture, to permeate the spaces and draw the seasons of the year, offering the family a festival of lights and shadows to accompany them during their daily experience.OMCM arquitectos.