Excerpt: A house for two in Repino by Kerimov Architects is a residential project inspired by traditional Finnish architecture and Karelian landscapes. In addition to thoughtful architectonics, a human-scaled one-story volume seamlessly fits into its natural surroundings because of panoramic windows that create a firm connection between the interior and exterior and rhythmic façade articulation that balances the verticals of the pine trees.
Project Description


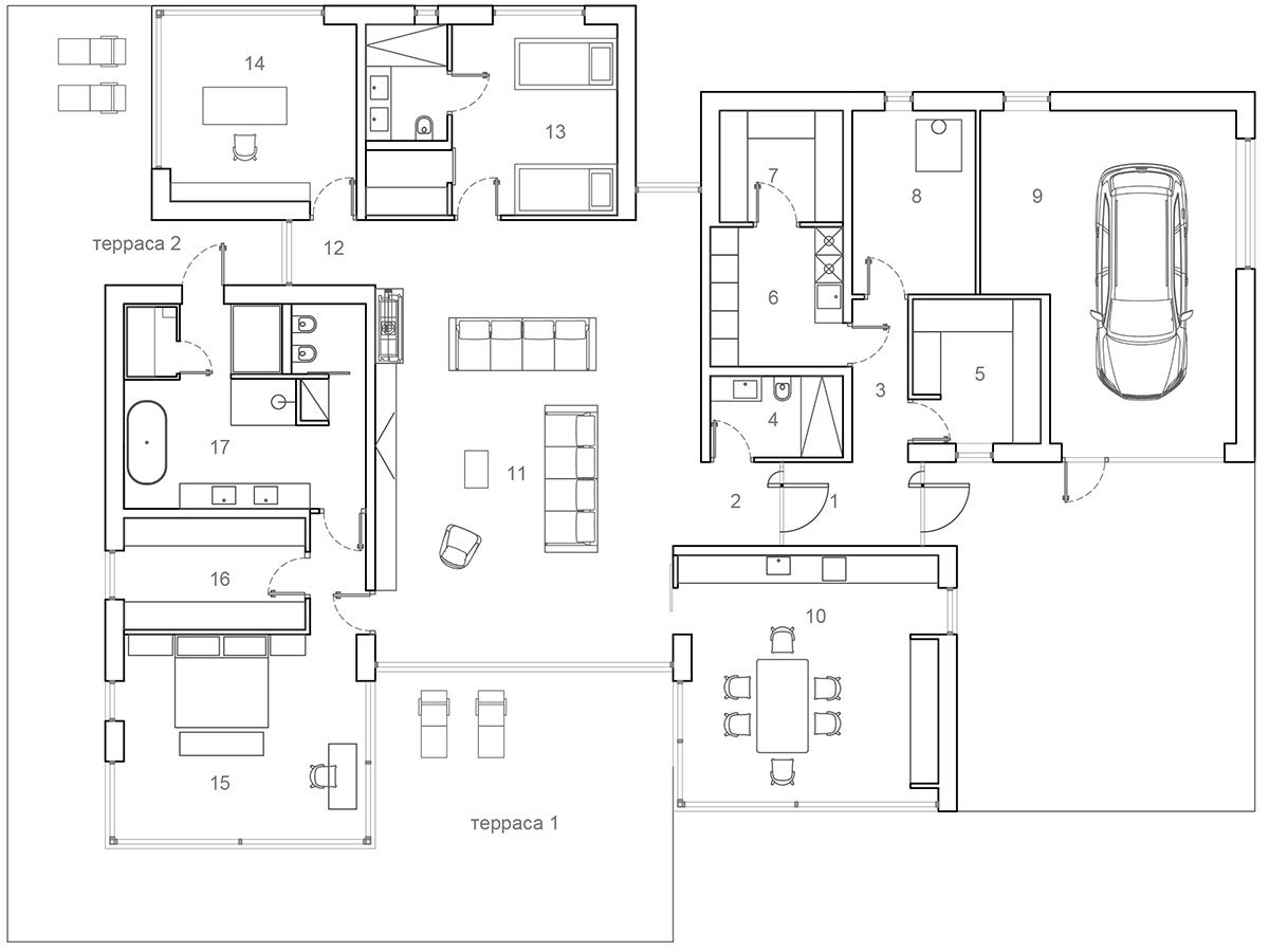
[Text as submitted by architect] A 280-square-metre residence in Repino, a town close to Saint-Petersburg, Russia, was designed by Kerimov Architects. The clients were a family couple that opted for a permanent residence away from the bustle of a city.



Once, Repino town had a different name, Kuokkala, and was a part of Finnish Volost Terijoki. Architects decided to keep a historical memory of the place, being inspired by traditional Finnish architecture and Karelian landscapes. The house’s architecture results from the site’s topography: the building is recessed as much as possible flush with the landscape while taking into account small differences in a predominantly flat area so that water, in case of heavy rainfall and snow melting, does not flow onto the terraces.


In this project, only natural materials such as stone, wood, and metal are used. A human-scaled one-story volume harmoniously fits into natural surroundings not only because of well-thought-out architectonics but also thanks to panoramic windows, which create an inseparable connection between interior and exterior, and rhythmic façade articulation balancing the verticals of the pines. Furthermore, the house’s architecture is interesting by creating contrast between dichromatic volumes, alternating impermeable and permeable spaces, and the changing rhythm of the façade by opening and closing blinds.



In the house, there is a spacious living room and large dining room, a kitchen, a master bedroom, a home office, several bathrooms, and a guest bedroom for the grandchildren of the clients. Also, there is a garage for one car.


The spaces deserving special attention are two terraces, one of which is slightly deepened and is located under a canopy to protect the house’s owners and guests from rain and direct sunlight. The second terrace is more compact but open; it is convenient to sunbathe on it. Both lounge zones offer beautiful and peaceful views of the forest landscape.