Excerpt: Kimitsu House, a project by Roovice, focuses on preserving the traditional character of a 1960s wooden house while adapting it for modern living. Key features, such as the kura storage building, are highlighted and preserved, with minimal interventions that enhance functionality and circulation. The project balances historical elements with subtle modern updates, creating a flexible and practical living space.
Project Description

[Text as submitted by architect] Located in the serene Kimitsu area of Chiba, this 1960s wooden house had been vacant for several years before its owner decided to take on its renovation. Initially attempting the work himself, he soon realized the project required more time and dedication than he could manage. Wanting to see the house used and appreciated again, he turned to Roovice’s Kariage initiative, which helps bring new life to vacant properties while respecting their history. By revitalizing these spaces at no cost to owners, the initiative offers a practical solution to Japan’s growing akiya (empty dwellings) problem.

A Place with a Story: The Kimitsu house reflects the traditional craftsmanship of the region, with a structure that emphasizes natural materials such as wood and stone. The house had remained largely untouched, preserving many original features, including a kura—a traditional storage structure typically built with stone bricks or tiles and reinforced with iron doors, designed to protect valuables from fire. Rather than make drastic changes, the goal of the renovation was to highlight and preserve these features while making the space more adaptable for contemporary living.


Revitalizing the kura and extension: The storage building had its entrance partially concealed by an extension built over the years. To highlight its impressive double doors, the later-added sliding doors of the extension were replaced with a new wall, and a 2m × 2m fixed window was cut into the facade. This frames the kura and its newly repainted entrance doors, making them a striking focal point and a defining element of the home.
Inside, on top of the original soil floor we installed a larch plywood flooring finished in a grey EP wipe-off coating. Clear corrugated polycarbonate sheets were used on the lateral wall of the kura’s extension, allowing more natural light to filter in while maintaining a connection to the surrounding environment.

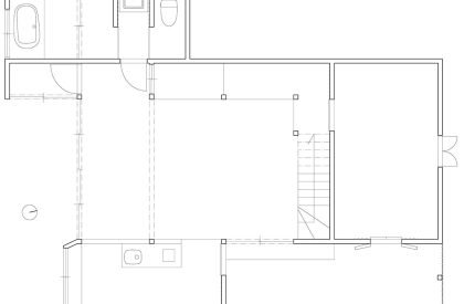
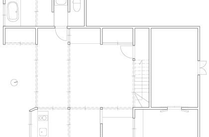
To improve the functionality of the space, the original division between the kura and the main house was removed, creating a more flexible layout. The wall separating the entrances to the kura and the main house was taken down, and the floors of the extended entrance were finished with mortar. A new opening beneath the staircase in the living area on the first floor connected the space to the main living area, opening up new possibilities for the usage of the kura.



A New Layout for Modern Living: On the first floor, partitions were removed to create a more open-plan living space. The once-enclosed staircase was exposed, allowing more light and visual continuity throughout the space.
The kitchen was repositioned to face the living room, improving the flow of the layout. A pony wall was introduced to subtly enclose the area without making it feel separate from the rest of the house. In the kitchen, as well as in the areas of the former engawa (external corridor), built-in wardrobe, and under the stairs, grey PVC sheets were applied to create a contrast with the original wooden flooring in the main room.


All the walls were painted white. The removal of the built-in wardrobe left visible signs on the walls, which we chose to leave exposed, accentuating them by painting only the surrounding areas.
Previously, the laundry room could only be accessed from the outside. To make it more practical, a new door was opened, allowing interior access. In the bathroom, a new sink was installed on the existing unit, while a mirror was installed directly on the original ornamental window.



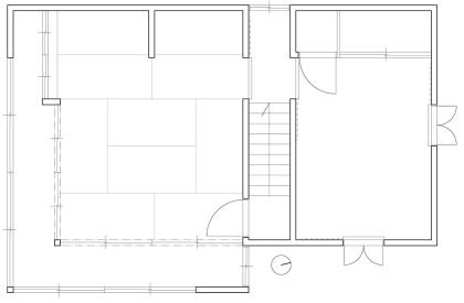
Respecting Tradition on the Second Floor: On the second floor, minimal changes were made to retain the character of the space. The tatami in the main room were refurbished, while the rest of the room was left largely unchanged. In the tokonoma (decorative alcove), a stainless steel pole was installed, cutting through the partition wall to create a space for hanging clothes—introducing a new function while maintaining the alcove’s presence.
The kura storage area, also accessible from the second floor, was updated with larch plywood flooring finished in a red accent EP wipe-off coating. The ceiling boards were removed to reveal the original structure, exposing the building’s layers of history. The two traditional windows, originally fitted with iron bars, were slightly modified by cutting an opening in the center—maintaining their historical significance while allowing more light and views. The original sliding doors and window shutters were repainted.

Balancing Tradition and Adaptation: This renovation sought to respect the home’s existing character while making thoughtful updates to enhance its functionality. By highlighting key architectural elements and integrating subtle modern touches, the house retains its connection to the past while becoming a more adaptable and versatile space. The project demonstrates how careful, minimal interventions can revive a long-vacant home, allowing it to be fully appreciated and used once again.