Excerpt: Marina East, designed by Hames Sharley, is not only about housing but building a community in a unique location tailored to the individual. The idea of celebrating the boating lifestyle and the unique position at Marina East allowed Hames Sharley to explore the concept of water, the jetty, and the boatshed in an architectural, playful expression of lifestyle. The outcome has a sympathetic outcome contextual, relevant, and appropriate in form, scale, and aesthetic.
Project Description
[Text as submitted by Architect] Marina East is not only about housing, but the building of a community in a unique location that is tailored to the individual.The idea of celebrating the boating lifestyle and the unique position at Marina East, allowed Hames Sharley to explore the concept of water, the jetty and the boatshed in an architectural, playful expression of lifestyle. In a celebration of water, ecology and beauty, Marina East is respective to its neighbours and honours the unique location in Perth, Western Australia.
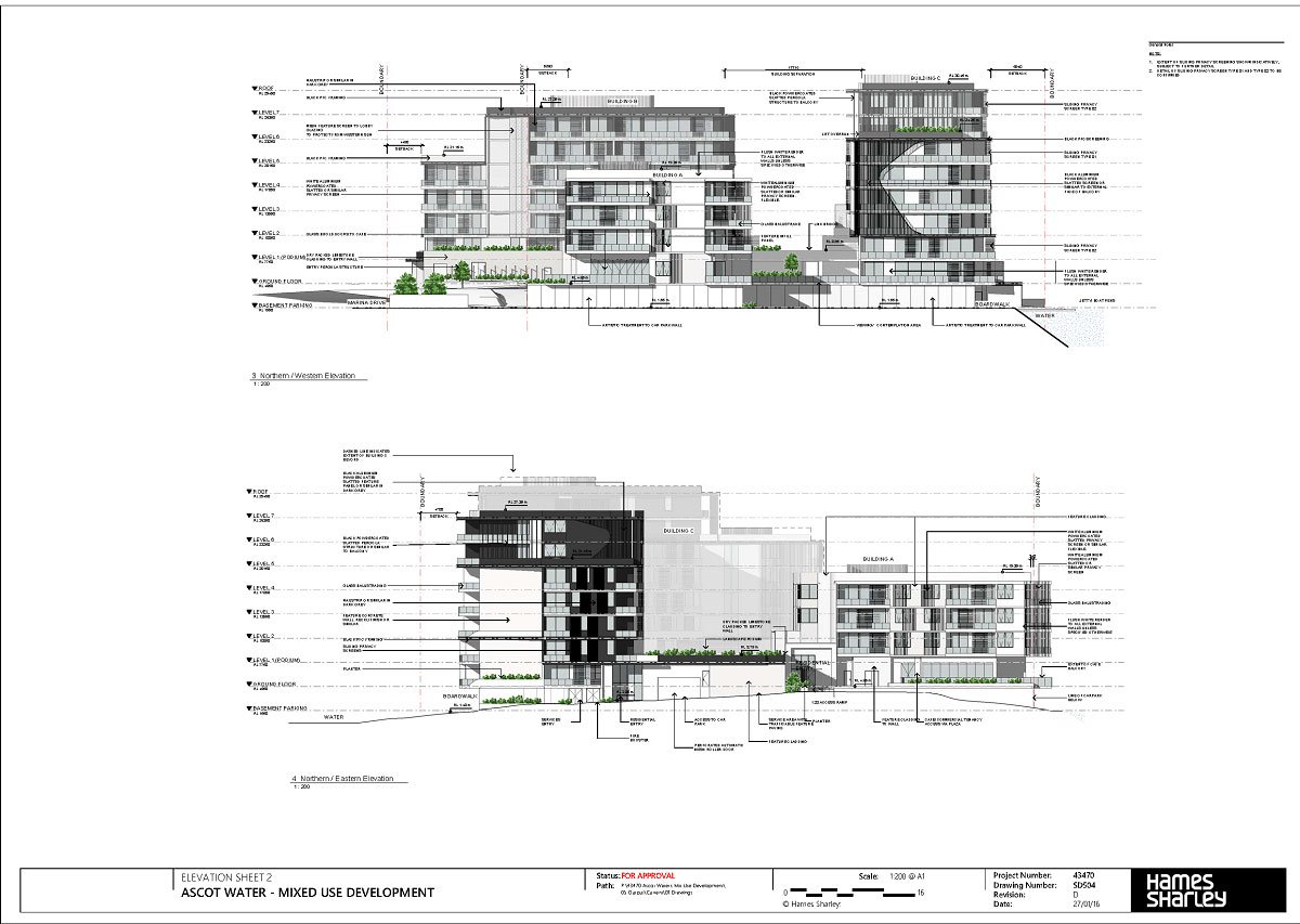
The site is in an enviable position of which three sides surround it by water, with the forth side facing north over an existing plaza. It is the site’s irregular shape which informs the positions of each building.By perching on the periphery of the site we maximise the spaces between each and create a space for the community to congregate in the central podium landscape area.Maximising the distance between each building also increases privacy, allows for better solar access, cross ventilation and access to views for residents. It also reduces the feeling of being part of a large development and enhances the feeling of being part of three exclusive bespoke ones, clustered together.





Reinforced in the architecture is the notion of the boathouse. The apartments, BBQ pavilions and the kayak room emulate the relaxed and lightweight concept of this – providing a place for security, leisure and interaction. The balconies move in and out like a ‘ripple’ washing ashore – mirroring the ripples and reflection of the water. Privacy screens in subtle variations of bronze mimic the sunrise and sunset rays bouncing off the water.The jetty manifests itself in our corridors and external walkways by mimicking its characteristics. It not only connects one place to another but also has a quality and value that creates comfort, contemplation and relaxation.
The height of the buildings at Marina East was also extensively considered in regards to context to its neighbours. The closest building to the existing residents and Plaza (Building A) is only three levels plus a ground floor commercial/café facing the water and the plaza. This allows it to be reflective of a similar scale to its neighbours and not dominate and overshadow existing homes.





At the same time, the commercial tenancy/cafe adds opportunities for activation on the ground floor level. Building B and C also have a play in the scale. Building B is five stories at the street, then steps up to 7 when it moves further away towards the water, ensuring it doesn’t affect any existing neighbours but makes the most of its position. A diversity of product at Marina East ensures a diverse and rich community with 1, 2 and 3 bedroom apartments on offer, ensuring there is an opportunity for many people of varying financial capacity to live in this beautiful part of Ascot.
The outcome presented for the development for Marina East has assessed the opportunities and constraints of the site, and we believe the design and development have delivered a sympathetic outcome, contextual, relevant and appropriate in form, scale and aesthetic.





