Excerpt: Muweco, a hospitality project by AIM Architecture, is a multi-functional structure that houses a wedding hall, a small museum, and a conference space on the grounds of Fushengyu Hot Springs Resort. A vaulted roof, pressed cork, and warm timber all evoke the natural surroundings without feeling redundant. The structure is striking against the natural landscape and evokes the feeling of being under a big tent rather than inside a large building.
Project Description

[Text as submitted by architect] A multi-functional structure that houses a wedding hall, a small museum, and a conference space on the grounds of a resort. A vaulted roof, pressed cork, and warm timber all evoke the natural surroundings without feeling redundant. Tucked below the foothills of the Luo Fu Shan range, in Sichuan, China, lies Fushengyu Hot springs Resort.



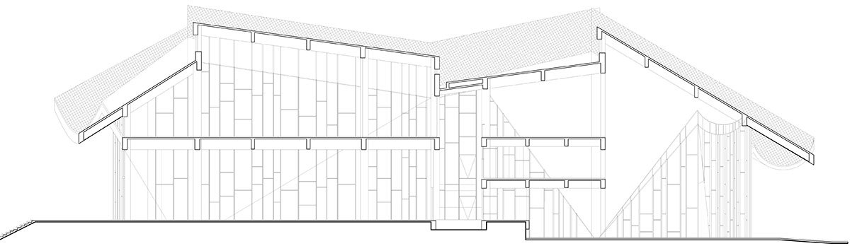
Architecturally speaking, the spa site is an ensemble project. There is a main spa building, villas, small apartments, and a building called ‘MuWeCo.’ Set slightly to the side of the grounds, but no less important, this building is a multi-functional structure that houses a wedding hall, a small museum, and a conference space. The vaulted roof is striking against the natural landscape and evokes the feeling of being under a big tent rather than inside a big building, which suits a stay in the mountains.


The dramatic entrance and lobby provide a strong sense of place, however, and eventually opens the vantage point with a large deck with 360-degree views to the spa and surrounding natural area. There’s space for a party or a quiet moment with a view under this big top – the sophisticated, warm interiors and excellent views invite both.

Planks of timber and cork line the walls, and local river stones are pressed into the flooring so no matter where guests are, they are never distanced from the great outdoors.
AIM was responsible for the architecture, planning, design, and interior design for this site, and it remains a strong example of the kind of full-scale concepts they have brought to life over the last 10 years. People visit spas for rest and relaxation, and this design opportunity allowed the designers to reimagine nature and landscape as public spaces, and our relationship to both. The architecture provides a contrast for the stunning scenery, and has proven to be a lasting and beautiful space for wellness.

