Palace of Electric Enterprises | TaK Architects

Save
Palace of Electric Enterprises | TaK Architects

Information

  • Project Name: Palace of Electric Enterprises
  • Practice: TaK Architects
  • Products: Termetal , Kamono , Brokis
  • Completion year: 2020
  • Gross Built up Area: 38450 m²
  • Project Location: Prague
  • Country: Czech Republic
  • Lead Architects/Designer: Co-author: Pavla Brůžová, Jana Kulíková
  • Design Team: AED Project a.s
  • Clients: CPI Property Group
  • Photo Credits: KIVA
  • Others: Technical design: AED Project, Statics: Building STATICS, Heating and cooling: Lubomír Guziur, Air ventilation: František Kubec, House installations: IKKO [Bohuslav Kouba], Heavy current system: ACDC [Jiří Schaffer, Ivana Kadlecová], IT design: Forgys [Ivo Tříska], BMS: RM Plan [Vladimír Píša], Fire specialist: František Chuděj, Pavol Ondruš
More Info Less Info

Excerpt: The Palace of Electric Enterprises, restored by TaK Architects, is one of the largest and most important monuments of Czech interwar functionalist architecture. The idea of the restoration was to present significant premises in authentic reconstructed form and a modern, functional building, providing above-standard spaces.

Project Description

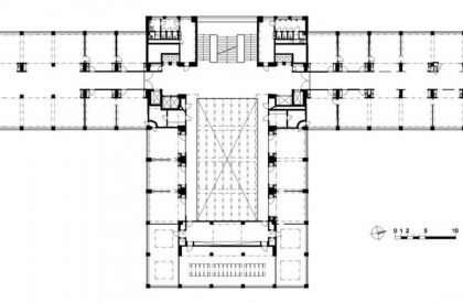
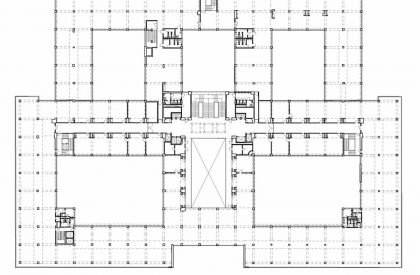
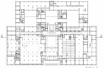
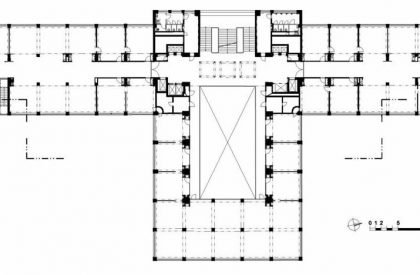
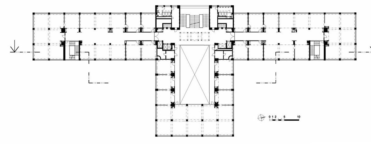
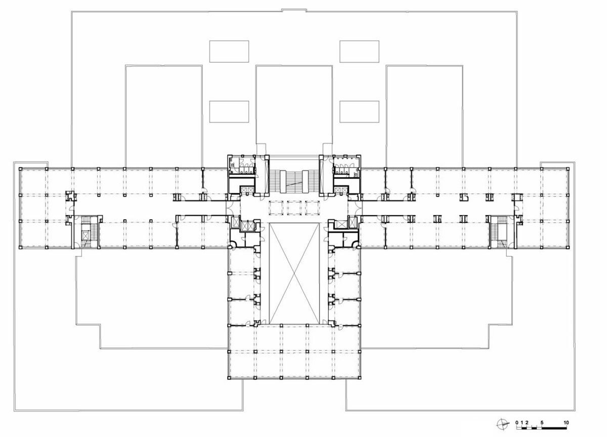
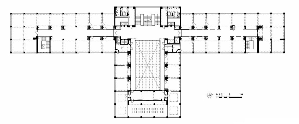
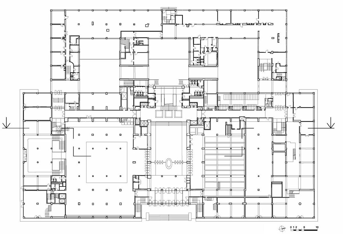
[Text as submitted by architect] The Palace of Electric Enterprises is one of the largest and most important monuments of Czech interwar functionalist architecture. The idea of the restoration was to present significant premises in authentic reconstructed form and a modern, functional building, providing above-standard spaces. The project brings new techniques and technologies, indicating a way to the renovation of similar interwar buildings. A breakthrough was the reconstruction of the cladding with an accent on architectural expression, but also the interiors joining authentic restoration and the details of new built-ins and functional parts. The core is the office part in the five-storey nave of the central hall lined with galleries around the perimeter. The dispositionally closed core is loosened towards the wings of the building and upwards into open layouts. The renovation includes adjoining spaces, former exhibition galleries, and business units with relation to the exterior complemented by modern parterre detail.

Palace of Electric Enterprises | TaK Architects
© KIVA
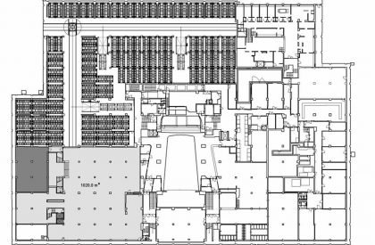
Palace of Electric Enterprises | TaK Architects
Situation Plan © TaK Architects

The building construction is a ferroconcrete monolithic skeleton based on concrete footings, supplemented on the last two floors by a steel skeleton. The main moments of the reconstruction associated with the partial operational conversion were the complete rehabilitation of foundations formed by aluminous concrete, replacement of the perimeter claddings and filling of openings, replacement of technological systems with regard to the valid fire technology and control legislation and the creation of automatic parking stacker in considerable parts of basements. The restoration was technically complicated as historical elements were supplemented by the current architecture. Total restoration of facades involves the development and production of copies of large wooden and steel windows, construction of new glazed roofs over the original glass-concrete roofs improved the thermal-technical quality in all atriums. The installed technologies represent a shift in economics and operational efficiency.

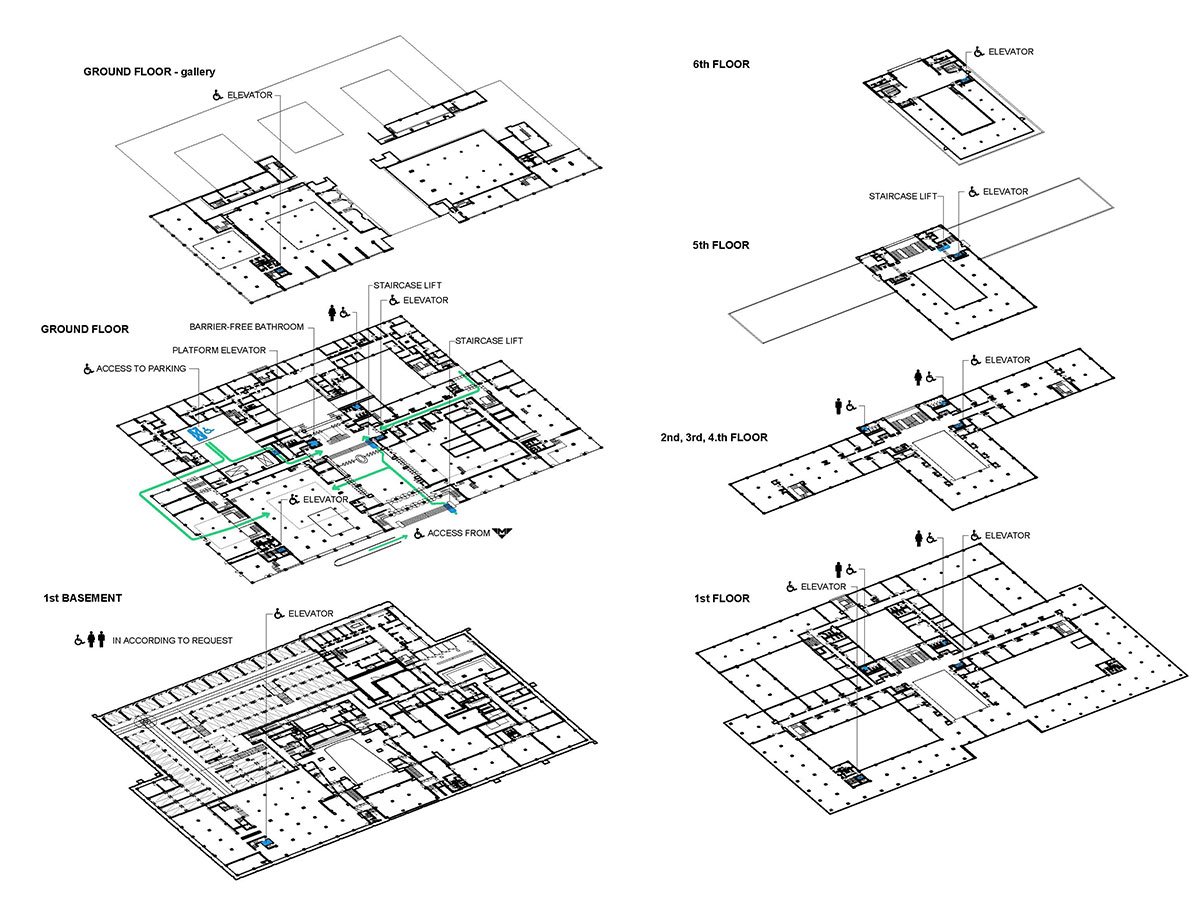
Palace of Electric Enterprises | TaK Architects
Accessibility © TaK Architects
Palace of Electric Enterprises | TaK Architects
© KIVA
Palace of Electric Enterprises | TaK Architects
© KIVA

It is important to consider the structurally extensive and technically exceptional reconstruction and conversion of the Electric Enterprise Building from the point of view of interdisciplinary collaboration. This building can certainly be characterised as one of the largest and most technically demanding reconstructions of an object with special architectural or historic interest in the Prague area, among other things due to the construction intervention scale, involvement of specialized teams of different fields and a virtual laboratory search of the final solution has been conducted for many years. In this regard, it offers a multitude of new information about interwar architecture and the possibility of its renewal.

Palace of Electric Enterprises | TaK Architects
© KIVA
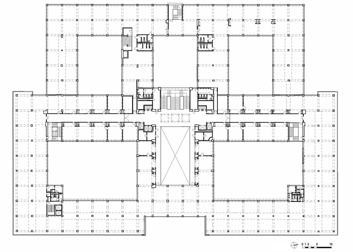
Palace of Electric Enterprises | TaK Architects
Section © TaK Architects

The construction historians and restorers as well as colleagues from the field of structure failure, construction materials and construction laboratory were in this case pivotal. The task is specific not only for its contemporaneity but mainly for the fact that the Electric Enterprise Building is a vast constructional complex. It was necessary to introduce a new methodology for structural and historic analysis and documentation of individual elements and its group, for the usually applied methods would not be adequate or usable for an object of such magnitude. During a search for the reconstruction method, it is in general necessary to seek a solution that would not be applied sporadically or in a limited area, but which would be used on a massive scale in areas of many thousands of square meters, and in a supply comprising generally of hundreds and thousands of pieces. Thus, construction and technological techniques predominantly need to be realised by regular construction suppliers or selected suppliers under the scrutiny of renovators.

Palace of Electric Enterprises | TaK Architects
© KIVA
Palace of Electric Enterprises | TaK Architects
© KIVA
Palace of Electric Enterprises | TaK Architects
© KIVA

Renewal and preservation of the Czech interwar architecture building fund – which is outstanding not only for the quality of its work, but also serves as a proof and legacy of the First Czechoslovak Republic – is nowadays a new task, a challenge facing architects, construction professions and historical preservation. With regard to architecture and the technical field, the majority of objects are more than just a prototype or, if you want, a manifesto. Rather plentiful are the buildings which cannot be renewed due to inappropriately selected technical solutions at the time of their construction. Nevertheless, it is necessary to preserve them, as they are an unforgettable part of historic architecture.

Palace of Electric Enterprises | TaK Architects
© KIVA
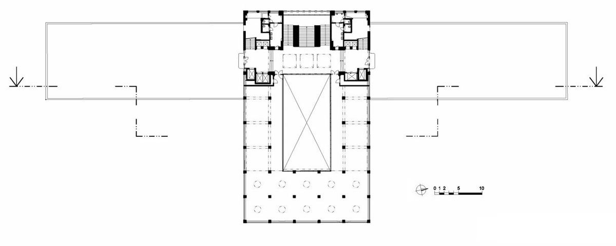
Palace of Electric Enterprises | TaK Architects
West Elevation © TaK Architects

Leave a Reply