Excerpt: Predio Foz is an residential architectural project designed by As Arquitectos . It is situated in the old historical town of Foz do Douro, in the City of Porto, seeks to rejuvenate one of the typical old houses in the area and to adapt it to current needs. Although the interior was completely demolished, the exterior walls of the old house were preserved.
Project Description
[Text as submitted by architect] This project situated in the old historical town of Foz do Douro, in the City of Porto, seeks to rejuvenate one of the typical old houses in the area and to adapt it to current needs. Although the interior was completely demolished, the exterior walls of the old house were preserved. An extra floor was added using a dormer windowed roof completely covered with zinc, and creating 5 floors within the old walls instead of 3. Besides the granite details added to the restored facade, the exterior walls were completely covered with hand painted tiles, typical of the old buildings of the city of Porto, to protect them from the humidity of a coastal environment.



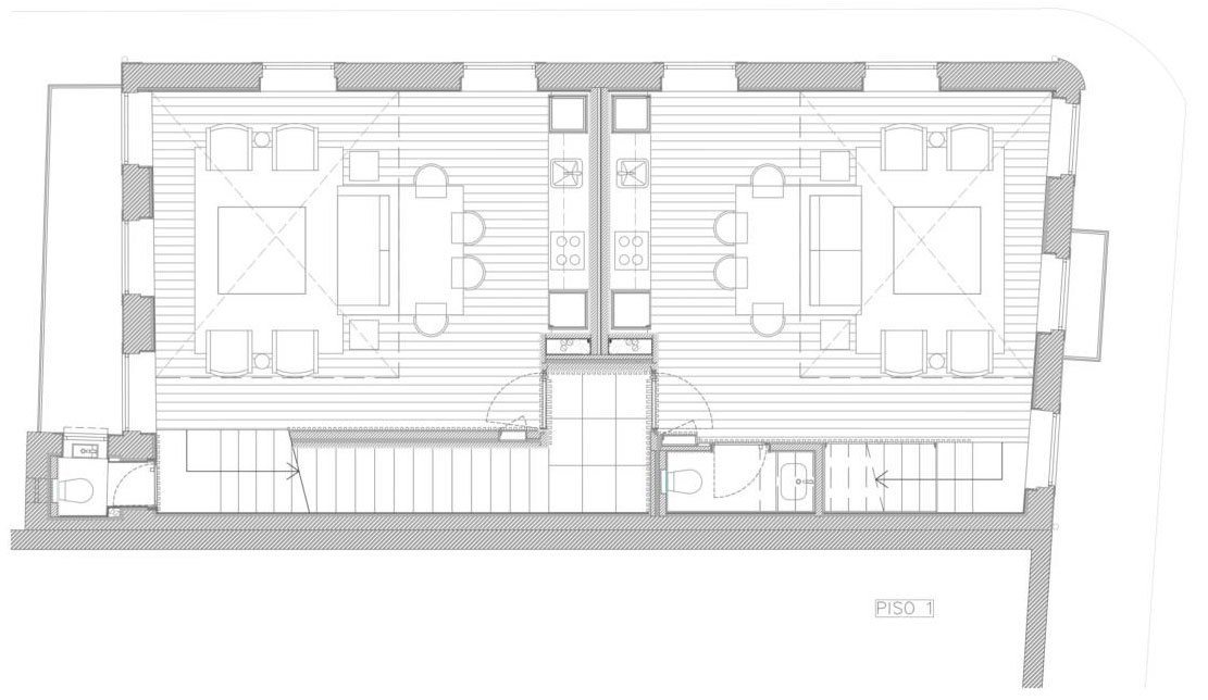
The building blends harmoniously into its surroundings by respecting the height of the neighbouring properties and the character of the facades. Everything is new inside, where the two lower levels are joined in a double height, bright commercial space with large windows providing visibility to and from the street. On the upper floors, two triplexes were created: one facing the sea and the other facing the city. There is a granite staircase to access the apartments from the side street.



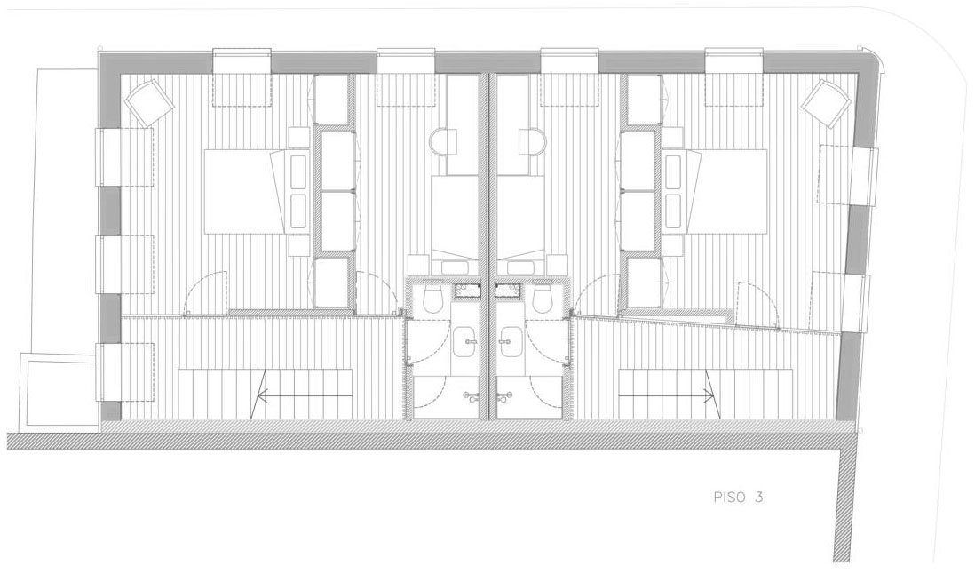
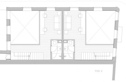
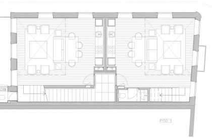
The two apartments are almost symmetrical and have a large double-height space on the first floor taking advantage of the five corner windows of the original structure. The living room-kitchen and a washroom are on this floor. The first floor is spatially linked with a mezzanine by means of double height and an exposed steel structure where there is an open studio and a complete bathroom. There are two bedrooms and a bathroom on the third floor, with a spectacular view towards the sea or towards the ancient town of Foz. A light metal and wood staircase creates an attractive way of linking all levels. The lattice partition made of wooden strips, both separates the staircase and integrates with the space and with the oak wood strips lining the walls. The wood covering certain areas provides a warm and cosy atmosphere.




