Excerpt: Red+White Office is designed by architectural and design firm Karan Darda Architects. The characteristics such as a dynamic yet minimal, striking volume, easy to recognize both from the residential area and the adjoining highway were considered. Considering the requirements, the team decided to make the buildings in 2 levels spatially connected by an exciting terrazzo cladding staircase in the lobby area. A skylight beautifully lights the double-height lobby area over the stairs and huge front-facing windows.
Project Description
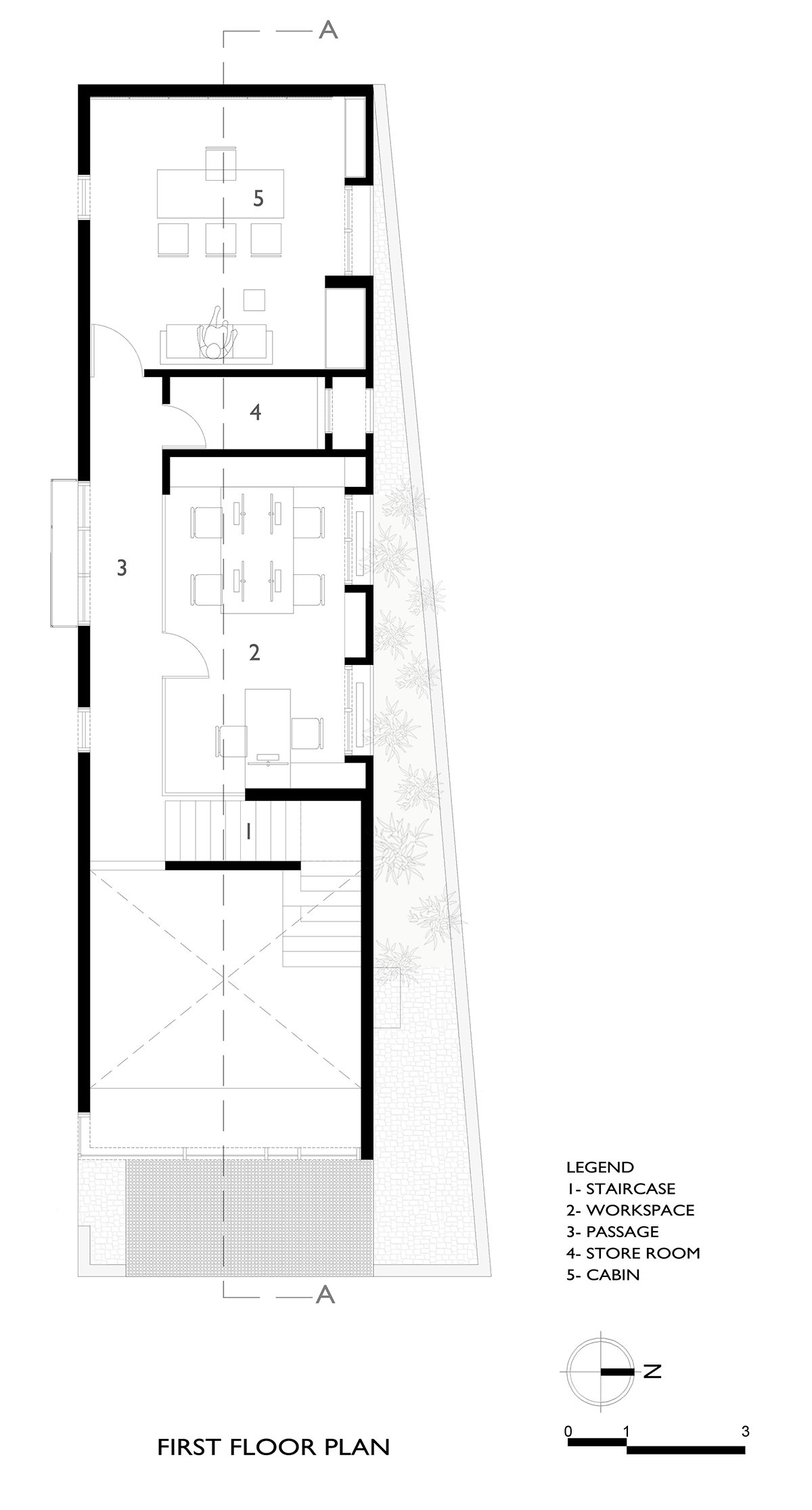
[Text as submitted by architect] We were given a tiny linear plot of approximately 19×6 meters and a project brief to design a new office space for a construction company to cater to upcoming projects in the area. With most of the architecture in this area being typical, it was the client’s wish to design a new office building that would stand out. The characteristics such as a dynamic yet minimal, striking volume, easy to recognize both from the residential area and the adjoining highway were considered.


Considering the requirements, we decided to make the buildings in 2 levels spatially connected by an exciting terrazzo cladding staircase in the lobby area. A skylight beautifully lights the double-height lobby area over the stairs and huge front-facing windows.

The idea of the building was to take in maximum east light through the double-height lobby and cut off the harsh southern sunlight. All the work area openings face north to ensure perfect daylighting. The ground floor cabins are extended outside into small courtyards to create a soothing ambiance.


The exterior of the building is textured with terracotta red pigmented sand to stand out in the nearby context. At the same time, the interiors were kept primarily white. The minimalist approach and integral design create a serene and relaxing atmosphere for the working staff members.