Project Description
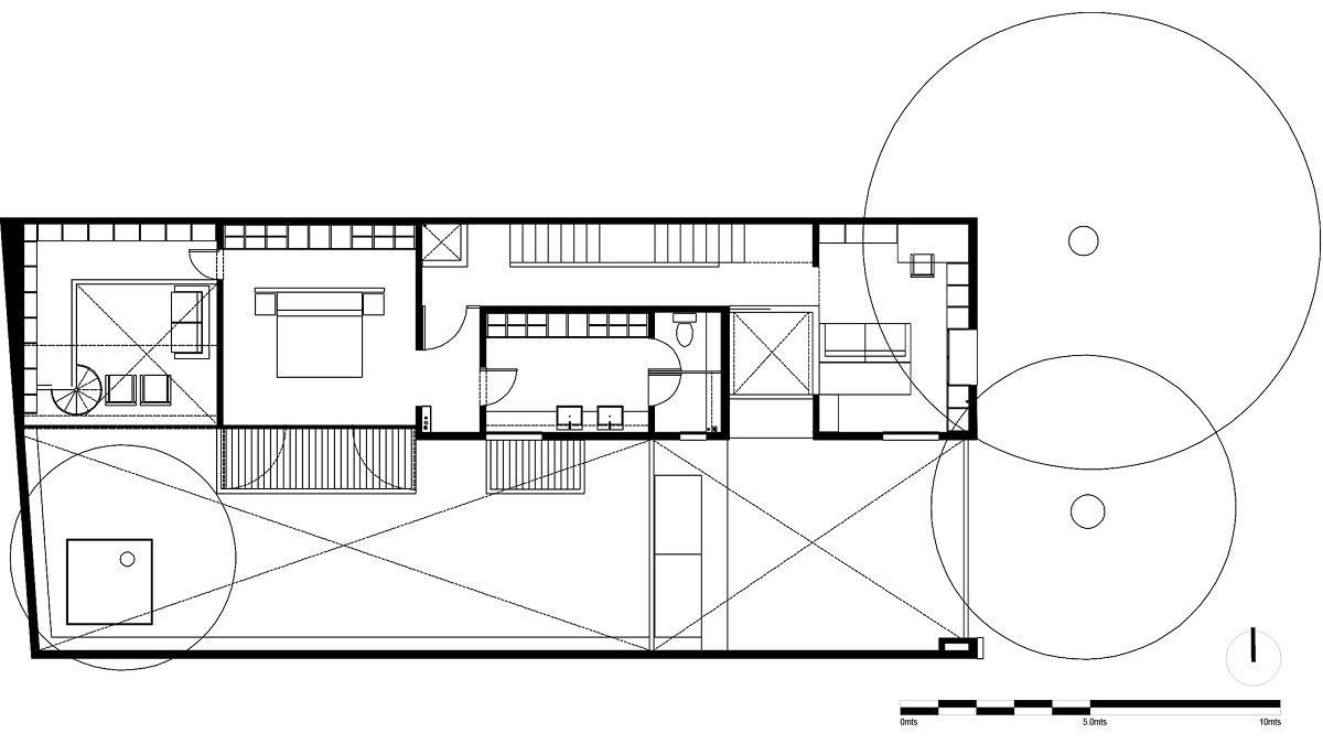
[Text as submitted by Architect] Reforma 108 is a residential project located in San Angel, in southern Mexico City. The plot has a rectangular dimension of 10 x 20 meters. The concept of the house establishes a dialogue between positive and negative space. We were seeking to create a game of counterparts, where the negative and positive spaces defined each other mutually, and where empty space would be virtually enclosed.





We divided the plot in two part with equal dimensions. In one half we constructed a longitudinal block of 5 x 20 meters that corresponds to the house. While the other half was conceived as negative space contained within the structure. The negative space functions as an open space or public area remaining unoccupied. The built block dialogues with its counterpart through an open façade all along one of its sides. In this way, the only enclosed elements of the house are the kitchen and the bathrooms. The counterpart of the façade is a solid wall with the height of the built area, which limits visibility of the neighbours and gives privacy to the house.






