Excerpt: Shanghai Gate M West Bund Dream Center by MVRDV transforms a former cement factory into a cultural and leisure district, uniting buildings from different eras into a cohesive urban space. By repurposing existing structures to reduce carbon emissions and introducing bold orange circulation elements, the design honors industrial heritage while shaping a lively destination for contemporary urban life.
Project Description

[Text as submitted by architect] MVRDV has completed the GATE M West Bund Dream Center, transforming a former cement factory into a culture and leisure district that adds to Shanghai’s expanding string of West Bund cultural projects. The design makes a cohesive urban space out of a collection of buildings from different time periods, reusing the existing structures to minimise carbon emissions, and introducing an unmistakable identity with its bright orange circulation elements. Offering possibilities for shopping, eating, drinking, skateboarding, rock climbing, and visiting exhibitions and events – or simply relaxing by the riverside – the area has already become an award-winning and popular destination for Shanghai residents and visitors alike.


The site of the GATE M Dream Center was once home to the Shanghai Cement Factory, at one time the largest cement factory in Asia. The 2010 Shanghai Expo provided the catalyst for the city to relocate the factory, along with other industrial functions in this part of the city, and to make the banks of the Huangpu River accessible to the city’s residents. Before MVRDV’s transformation, the site was home to two very different sets of buildings: a handful of large industrial structures provided reminders of the area’s history, while the in-between spaces hosted unfinished constructions from a prior development attempt that never came to fruition.



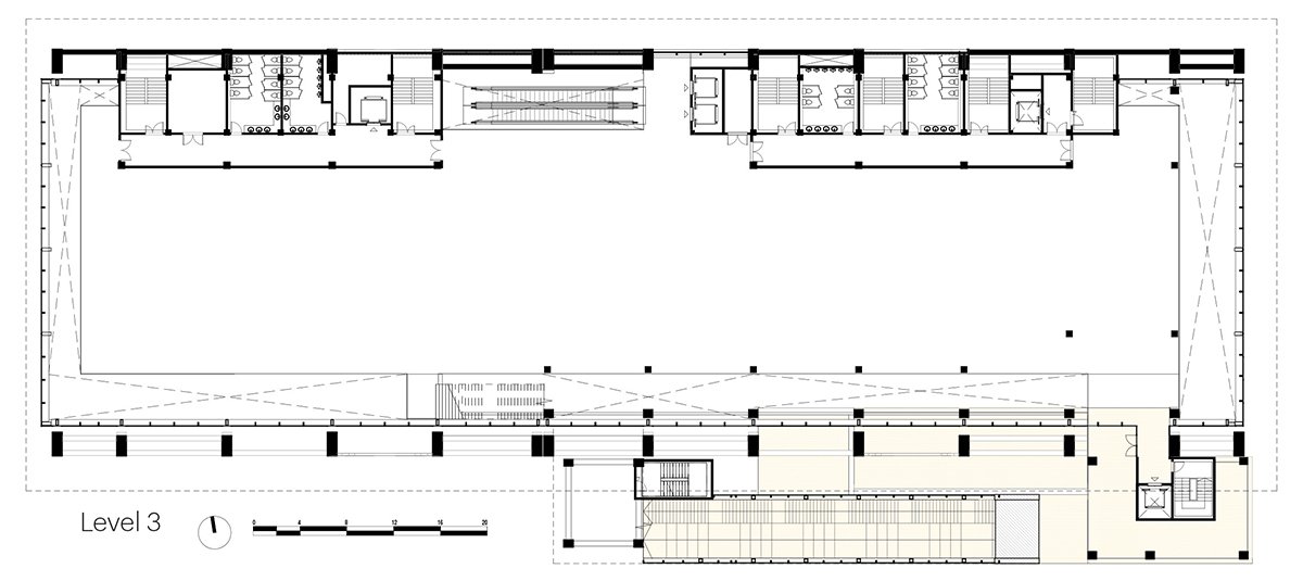
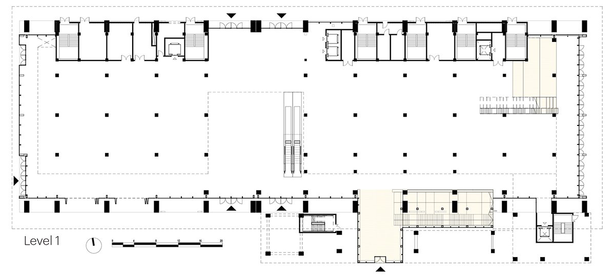
MVRDV designed the masterplan for the entire Dream Center site, and also created the architectural designs for the southern half of the site, including the centrepiece, the M Factory. The commercial buildings in the northern part of the site were elaborated by Atelier Deshaus, while Schmidt Hammer Lassen designed the West Bund Dome Art Centre, and the new Shanghai West Bund Theatre at the site’s northern end.
In their design, MVRDV opted to work with all of these elements of the site’s history, minimising the carbon emissions and waste materials associated with demolishing and rebuilding the structures.



“It was clear from the start that there was a lot of value leftover in the buildings that were already there – we didn’t want to demolish things just because it might be simpler, because that means more carbon, more waste”, says MVRDV founding partner Jacob van Rijs. “Our challenge was to bring these pieces together and make them work as a single area, because they were an awkward pairing. We turned the newer buildings into the backdrop, so that the industrial behemoths could be the exclamation points, with exciting functions that capitalise on their special structural features.”


The remaining industrial silos and factory buildings form the focal points of the new zone. These raw, monumental concrete structures bring a clear sense of history and identity, made more striking by the addition of bright orange staircases and elevator shafts to their exteriors. On its lower floor, the massive M Factory building hosts BLOOMARKET, which combines a food market and a fine dining experience, while the upper floor – accessible via an orange staircase created from what was once a conveyor belt – hosts a large, column-free cultural space that can be used for anything from exhibitions and conferences to fashion shows and stage performances. Meanwhile, the large silo building has been converted internally to become a centre for rock-climbing, with orange routes on the exterior that invite people to viewing platforms on the roof and a first-floor balcony.
Around these enigmatic industrial buildings, the more recent unfinished structures have been completed as shops, restaurants, and hotels, with neutral façades, green roofs, and outdoor terraces. They define a public space that capitalises on its waterfront location, with a landscape design by Field Operations.


Providing an active and exciting public space on this part of the riverbank for the first time, the GATE M Dream Center has already proven a popular destination, and the huge frame of the M Factory has served as an ideal billboard for attracting people to the events taking place inside. The success of this transformation has already helped propel the project to award wins in the China Urban Renewal Annual Award, the Shanghai Excellent Urban Regeneration Projects Awards, and the IDEAT China Future Awards – clearly demonstrating that to emphatically renew our cities, we may not need to build many new structures at all.

The GATE M Dream Center is an example of a broader global trend in which former industrial sites are absorbed by the expansion of cities and must adapt to their new urban contexts. Around the world, growing cities are rethinking how industrial structures can be transformed to serve new purposes and become better neighbours as they shift from isolated industrial estates to thriving neighbourhoods. MVRDV’s portfolio reflects this development: the firm is currently working on transformations of an incinerator, of oil refineries in Hangzhou and Matosinhos, and has proposed a vision for a steel factory near IJmuiden. Past projects include the Rockmagneten masterplan, which turned a concrete factory into a cultural and educational campus including the Roskilde Festival Højskole and the Ragnarock museum of pop, rock, and youth culture. Each of these projects demonstrates the value that creative reuse can bring to both the urban environment and the communities around it.

