Excerpt: Sukhumvit 91 House, designed by the architectural firm Archimontage Design Fields Sophisticated, is built with a closed-off plan in Bangkok. Wood lathe is used as main construction material not only for its durability and easily maintenance but also for its capacity to create warm atmosphere. The structure of the house highlights lightness and transparency through upper and under planes, light roof and floor, and large mirror. The tone of tile and artificial stone creates a mood of harmony and calmness.
Project Description
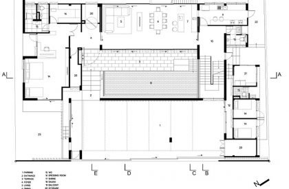
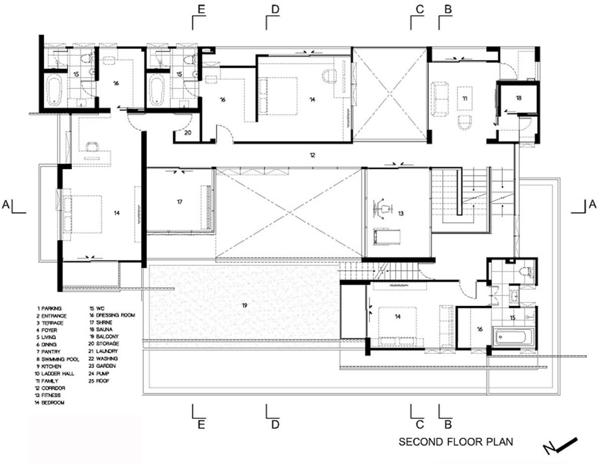
[Text as submitted by Architect] In the middle of Sukhumvit Soi 91 where the business area connects to Bangkok’s eastern suburb, a two-story house of 898 square meters on the plot of 150 square wah land stands for a family of four, which may extend to six in the future. Considering the size of this property, the utility space, including a separate cleaning area for two housemaids on one side beside the neighboring apartment, is spacious.
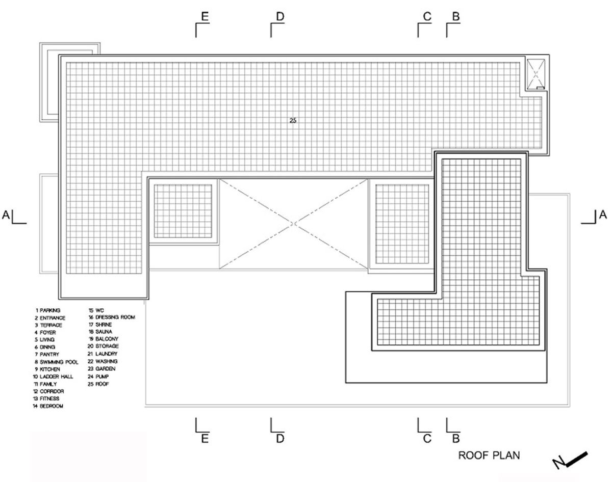
The house faces to northeastern. The width of a street in front of the house is 6 meters, rather narrow when comparing to the house scale. This controls the building and positioning of a garage for six cars to run along the street for the convenience of the drivers. This property also has a mid-sized swimming pool and a small garden with a mid-sized tree.






The roof of the garage is large enough to serve as an outdoor, multi-functional space for various activities. A tabernacle at one end of a swimming pool and a gym at the other end is connected by a long corridor, creating a volume of the entire place with a swimming pool as a center and house court.
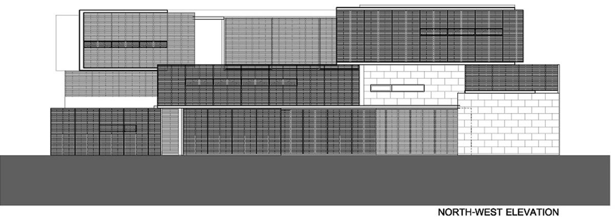
Since the former residence of this family is a quiet condominium with a high level of privacy, a serene atmosphere is needed for their new home too. The house is designed with a closed-off plan to maintain supreme privacy for busy townspeople. The wood lathe is used as the main construction material not only for its durability and easy maintenance but also for its capacity to create a warm atmosphere.
The structure of the house highlights lightness and transparency through upper and under planes, light roof and floor, and large mirror. The tone of tile and artificial stone creates a mood of harmony and calmness.






