Excerpt: T-SL is an architectural project designed by Trung tran studio in Vietnam. The house is designed with different floors to create a high difference, which allows more cool air to be circulated to every part of the house. The outside of the house is an entire planter that is simulated by hands that are cherishing each fragile green patch but bringing a lot of value to life.
Project Description
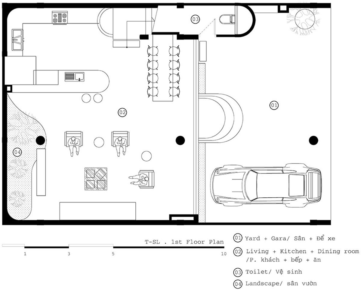
[Text as submitted by architect] ‘The house is located in the center of Son La city, near the TÂY BẮC square. The house was built on two plots of land with an area of 5mx14.8m (total land area of 148m2) to build his house for his four children, husband, wife and his parents.




The owner is a lover of nature and plants, so the problem is simply trees, light and plenty of play space for his four children. With the above wishes in mind, we have designed the house with a lot of space for the common living space, skylights and interwoven with many green plants. The house is designed with different floors to create a high difference, which allows more cool air to be circulated to every part of the house. The outside of the house is an entire planter that is simulated by hands that are cherishing each fragile green patch but bringing a lot of value to life.



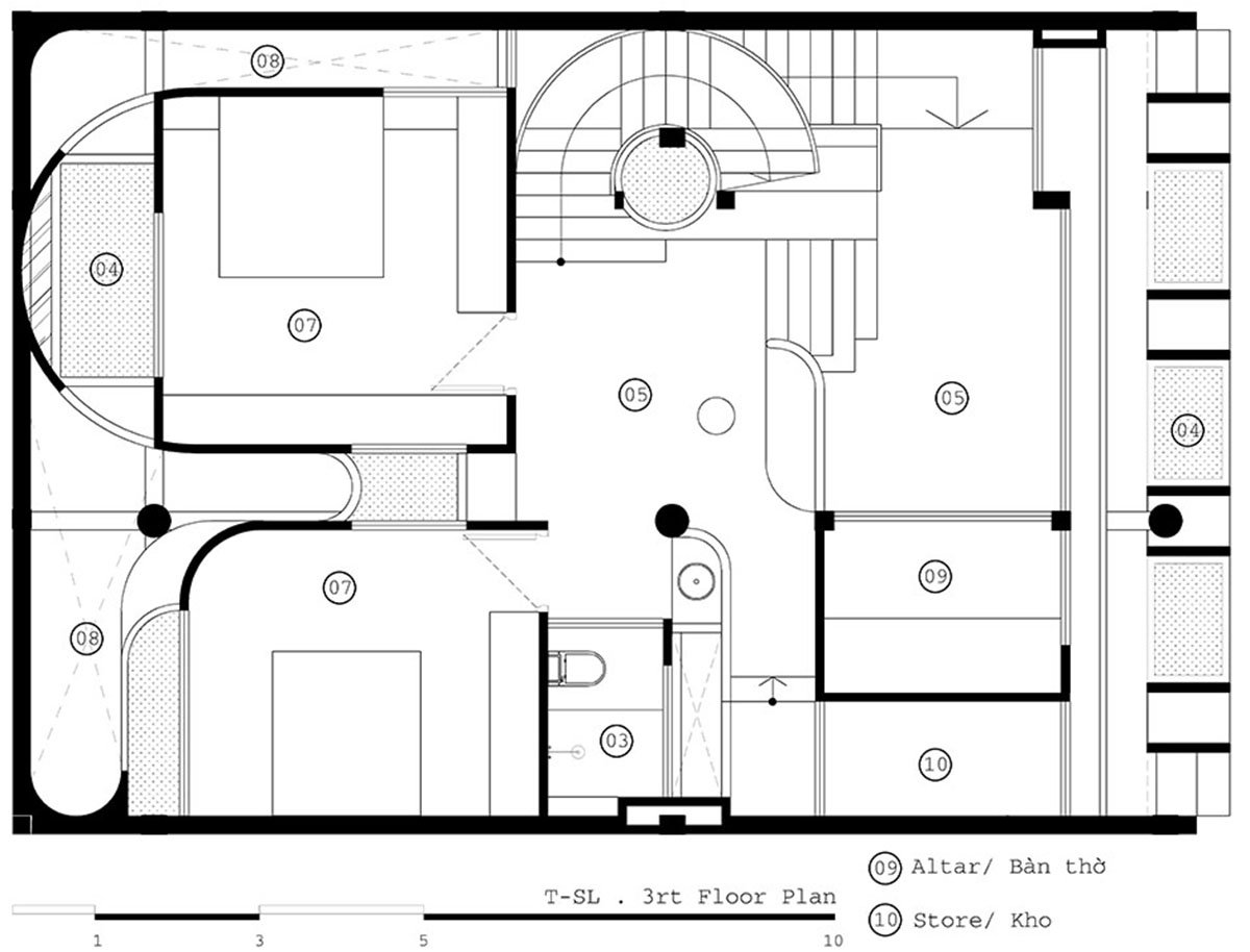
All skylights are brought to the end of the house, which usually receives the least light, the green tubs and skylights are intertwined around the bedrooms and common areas, forming green spaces full of light and wind for the whole house. Bring a sense of relaxation and peace to family members. Each floor has a common area for family members. It is a place where children can play together, where grandparents, parents, children can always see and talk to each other every day.



On the roof of the 3rd floor, almost half of the garden is devoted to vegetables, and a small space for the owner to drink tea and watch the night sky. The house is where the owner wants to give all his love to his parents and small family.’




