Excerpt: Tanatap Heritage Garden by RAD+AR transforms a former Dutch heritage shophouse warehouse on Braga Street into a restaurant and coffee shop through adaptive reuse. Preserving existing frames, walls, and facade, the project emphasizes humility, tradition, and site awareness. Art, landscape, and spatial compression create a quiet dialogue between history and contemporary use, proposing reuse as a sustainable alternative to demolition.
Project Description

[Text as submitted by architect] Tanatap Heritage Garden is a small architectural intervention that transformed a once-mediocre vertical building, which stood as a barrier in Braga’s heritage shophouse, into a creative melting pot that celebrates its historical significance.



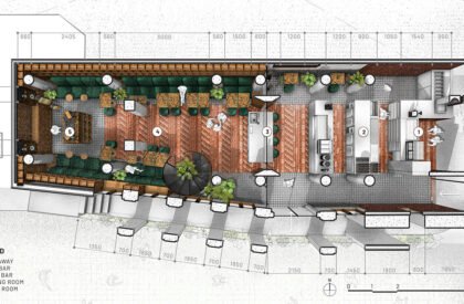
The project’s main challenge from the outset was to apply primary methods for the adaptive reuse of an existing Dutch heritage shophouse structure, converting it into a restaurant and coffee shop situated in the middle of a block on Braga Street, Bandung. The shed, originally a warehouse, provided us with the opportunity to work with many original elements inherited from its previous uses, such as existing frames, walls, and facades.



Braga Street is located in the center of Bandung, Indonesia, and is known for its 100-year-old Dutch shophouses, which became famous in the 1920s as a promenade street during the colonial era. The European ambiance of cafes, boutiques, and restaurants along the street helped Bandung earn the Dutch nickname “Parijs van Java” (“Paris of Java”). Therefore, the project emphasizes humility, tradition, and site awareness while fostering a quiet integration that responds to existing needs.

An aged Haya tree ironwood sculpture, created by artist Wisnu Ajitama, serves as a contrasting focal point against the preserved facade on the exterior, while introducing multiple compress and release spaces on the interior through the use of various corten artistic spatial frames.


The design prioritizes allowing the environment, history, and culture to shape the project. It serves as a small proactive prototype of architectural practice focused on reusing and refurbishing as the primary consideration when designing and reshaping our already overbuilt cities. This approach, which prioritizes reuse over demolition, can reduce costs, enhance environmental efficiency, and preserve functional structures that can continue to serve their purpose for years to come.

