Excerpt: The Arcade, designed by Superimpose Architecture, is a conference center with a welcoming working environment and social place. Natural daylight penetrates through glass skylights creating a pleasant and protected indoor retail environment and social gathering space. Each conference room has a distinct spatial concept and character, which is achieved through color selection, light fixtures or materialization. With the conference center’s design, Superimpose Architecture met its objective to use the disadvantage of the basement as its inspiration.
Project Description
[Text as submitted by architect] How can a dark basement of a commercial mixed-use development be transformed into a warm and pleasant conference center that appeals to a young, trendsetting customer target group? Creating this interior design project ‘The Arcade’ in Hangzhou presented Superimpose Architecture with that as its main design challenge.

To address the conference center’s imminent daylight issue, Superimpose Architecture incorporated key features of a traditional shopping arcade; a once successful architectural retail and public space typology that flourished in Europe from the 18th to the 20th century. These arcades consist a series of arches supported by a colonnade with retail shop fronts on both sides. Natural daylight penetrates through glass skylights creating a pleasant and protected indoor retail environment and social gathering space.

In the conference center, two long linear ‘floating’ acrylic ceiling boxes with artificial light resemble the glass skylights of the shopping arcade and mimic the color and intensity of natural daylight along the two main circulation axes. The light boxes also have an immediate visual impact in the basement and serve as a clear indicator for circulation. The two axes can also be used as exhibition space.


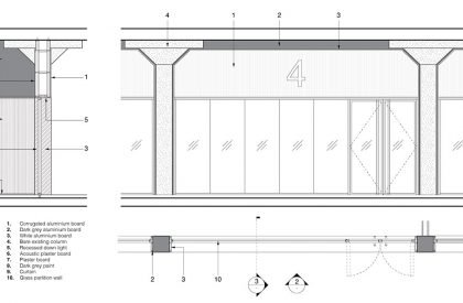
The basement’s concrete columns are purposefully exposed, revealing the initial inspiration for selecting the arcade as the design concept. Façade-like white modules are inserted between structural columns and along two main axes to create entrance portals to functions such as meeting rooms and auditoriums. Each modular portal comes with its own respective functionality. The portal of the auditorium can be fully opened, allowing the auditorium to expand and become part of the entrance area for events.


Each conference room has a distinct spatial concept and character, which is achieved through color selection, light fixtures or materialization. The seating in the large auditorium is organized in a semi-circle that runs the entire length of the space to create a forum-like setting. Linear light boxes follow the seating arrangement and provide character to the space. Wooden louvers and red carpet help to improve acoustics and provide a warm atmosphere in the auditorium.


When entering the conference center, visitors will instantly notice another element meant as a practical solution to the dark characteristic of the basement. A large floating oval shape frame with various types of light integrated helps to make the transition from outside to inside more pleasing to the eye. Keeping the ceiling open and exposed allows daylight to enter the basement from the adjacent sunken courtyard. The entrance area, and ‘living room’ with a cafe and lounge area are designed to be pleasant and green. These are places where visitors can stay for an extended period of time to relax between activities or work.

With the conference center’s design, Superimpose Architecture met its objective to use the disadvantage of the basement as its inspiration, resulting in the transformation of a dark and unpleasant space into a welcoming working environment and social place.

