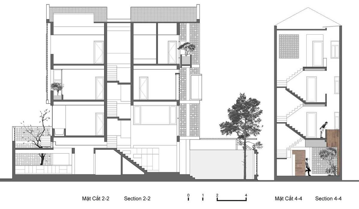
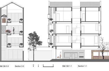
Excerpt: THE COCOON HOUSE – Refurbishment, designed by Landmak Architecture, is reborn, with a new form with an addition of a floor and mezzanine. The advantage of the place is the space at the front and the back of the house, with more nature approaching like garden. The old balconies at both end of the house is skinned with ventilation brick block, inside this skin is the green space for rain, wind and sunlight to shine through.
Project Description
[Text as submitted by Architect] This house is a block in a row house in the expensive New Urban area, but now seem to be neglected after the economic crisis in Vietnam. Within the regulation, the slope roof is a must when doing renovation.
We want this place to be reborn, with a new form (full of energy, romantic, peaceful with an awareness of security) The old house structured is clustered and complicated, so we only add one floor and one mezzanine. The advantage of the place is the space at the front and the back of the house, with more nature approaching like garden.





We decided to add a kitchen block at the back with the roof as the terrace for the master bedroom on the 2nd floor. The old balconies at both end of the house is skinned with ventilation brick block, inside this skin is the green space for rain, wind and sunlight to shine through.
This in a way can be seen as a cocoon, where we still have access to nature but also appreciated the security factor.






