Excerpt: The Courtyard Residence was designed by FGR Architects to offer the home a serene appearance, an elevated experience, and seamless functionality. Private space and prismatic beauty are delivered through concrete geometry and custom glass apertures. A subtle roadway elevation with layered, inferred volumes heightens the sense of mystery and surprise. The interiors have a warm materiality, even while the streetscape view is entirely private.
Project Description

[Text as submitted by architect] The Courtyard Residence resembles a rectangular origami of concrete and glass. The project’s ambition is a design of calm expression, heightened experience, and seamless function.
Concrete geometry and bespoke glass apertures deliver privacy and prismatic delight. An understated street elevation with implied, layered volumes creates a heightened sense of intrigue and wonder. If the streetscape view is largely private, the interiors bloom poetically with a warm materiality.


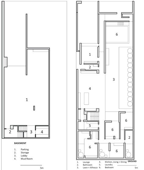
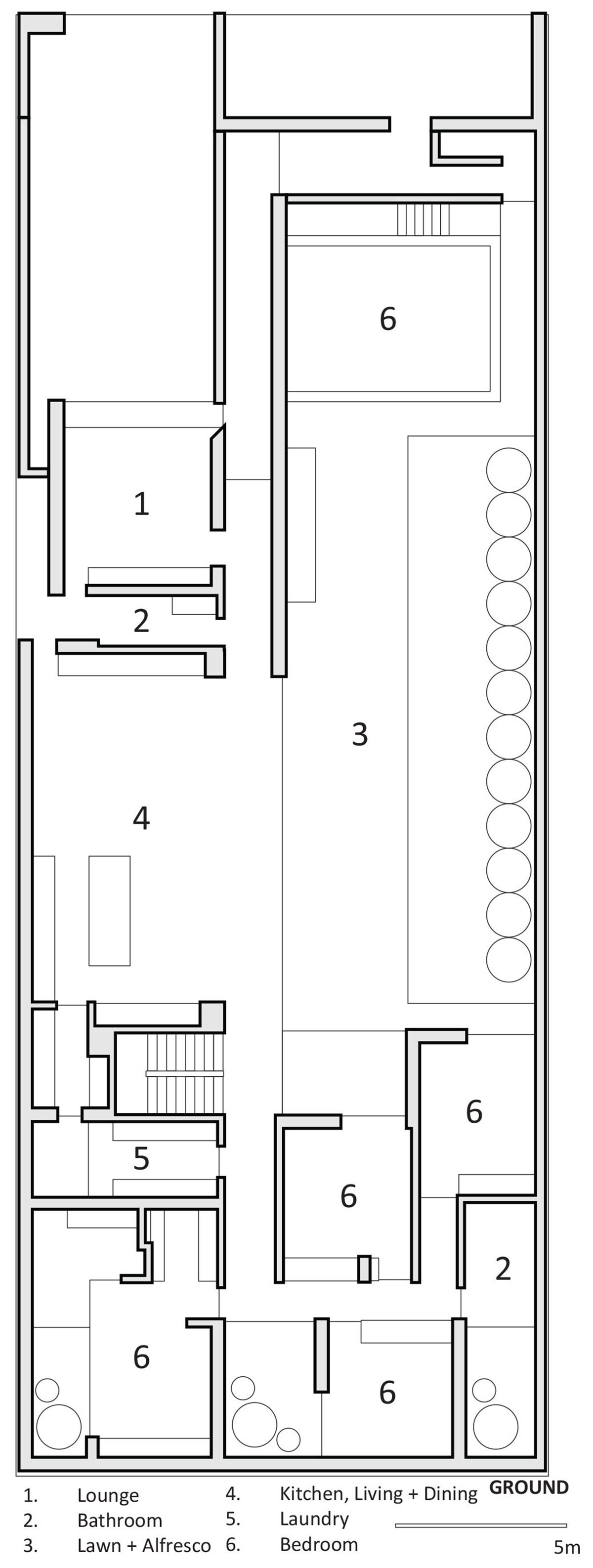
A low-rise form contains a masterful series of concertinaed spaces. Adopting the classic Mediterranean model of a central courtyard, the house thrives on external privacy and internal experience. Moments of stillness and exuberance exist within this continuum.



Water as a wellspring is the focus of the courtyard as an oasis. Reflection and delight are contrasted by the monumental energy of matte and polished concrete. Muted surfaces celebrate a sophisticated rawness throughout, supported by the evolving dance of light, shadow, and reflection. A restrained material palette, notably selected timbers and fine steel windows, contributes nuance and elegance.



Despite its heroic elements, the house transcends its gallery-like scale and functions as a series of beautifully proportioned living spaces. Flexible options for opening and closing interiors with sliding glass walls make for an immersive connection with the pool, courtyard, and sunlight. Equally, the house can be closed down as required to mitigate harsh weather and optimise thermal performance.



Concrete walls and overhangs are incorporated for shade and shelter. This design vocabulary of burnished, creamy concrete finishes flows from the inside out, often appearing almost luminous in its sculptural force.


Principal living spaces radiate from the courtyard yet offer delight, whether fully open to the courtyard or as discrete spaces. Offering serenity, with plenty of scope for exuberance and play, the Courtyard Residence offers inspired scope for family living.

