Excerpt: The Jagged House, designed by Shaili Banker Architects – Arkytos, offers privacy, natural light, and ventilation while ensuring maximum comfort. Skewed planes of reinforced cement concrete and glass envelope the residence, with opaque surfaces providing privacy and transparent ones allowing light and airflow. This strategic design balances functionality and aesthetics seamlessly.
Project Description

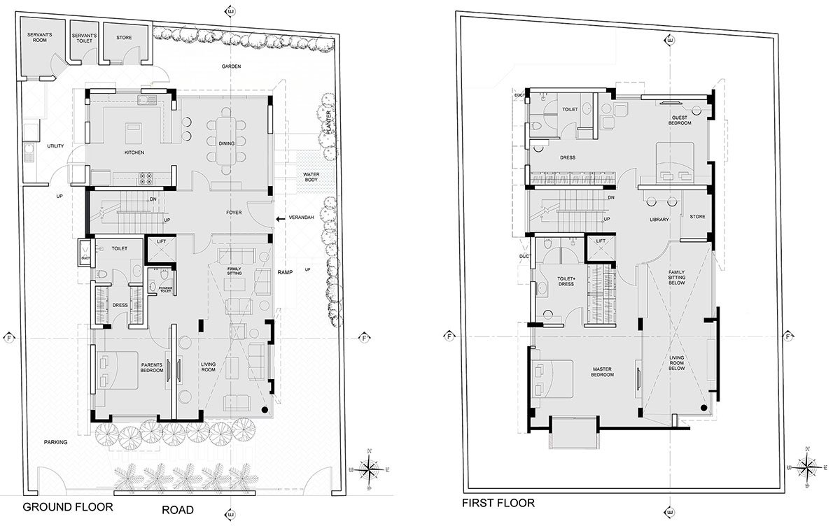
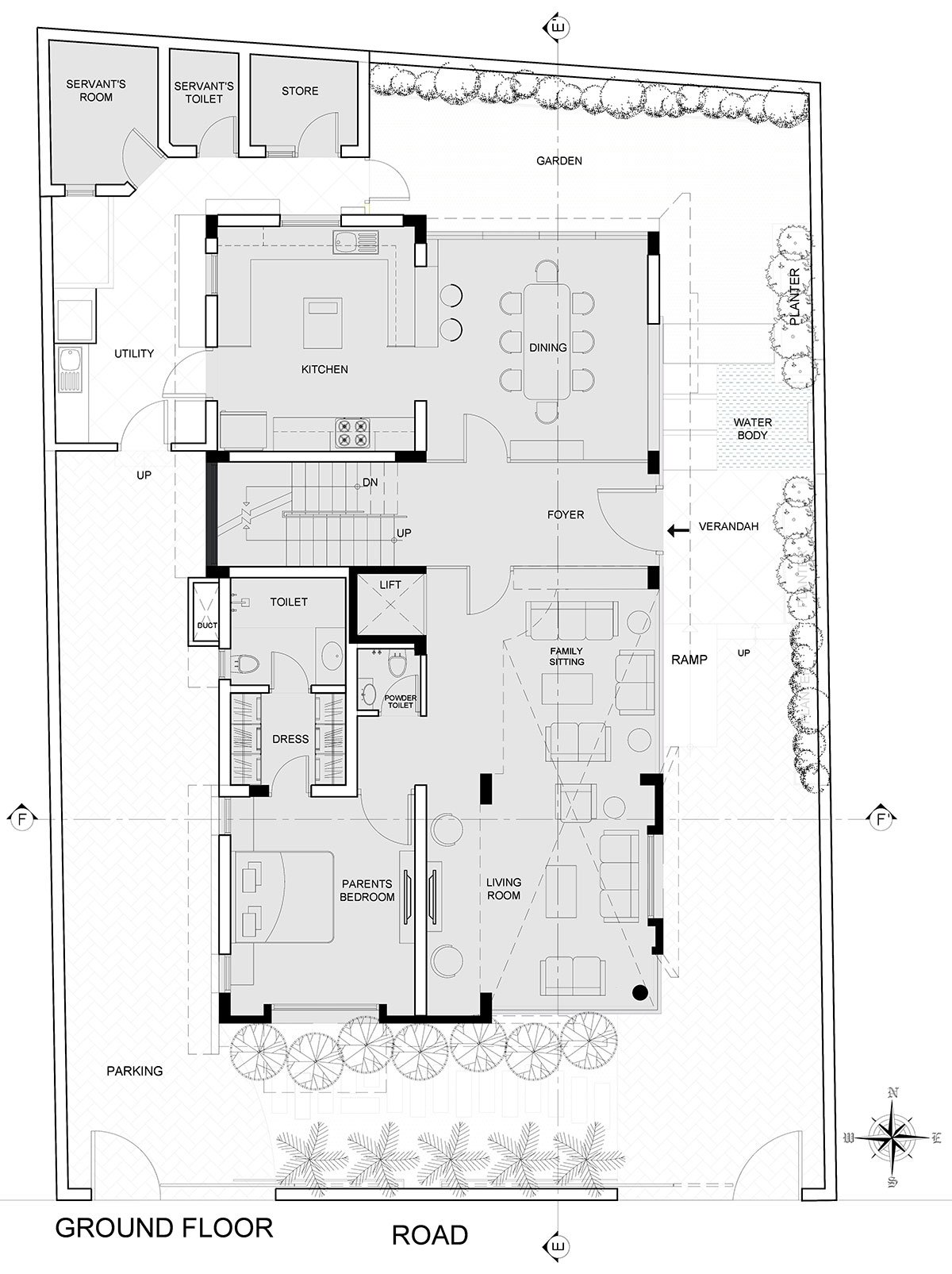
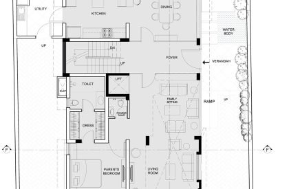
[Text as submitted by architect] Client Brief: Set in a dense urban neighborhood, this small family home is situated on a quiet street in the city of Ahmedabad. With neighboring houses located very close, the client’s main concern was privacy. However the outside had to be brought in too. This became the main challenge, to accommodate the extensive requirement of five bedrooms, but also to provide the house with maximum possible privacy while also permitting natural light and ventilation.



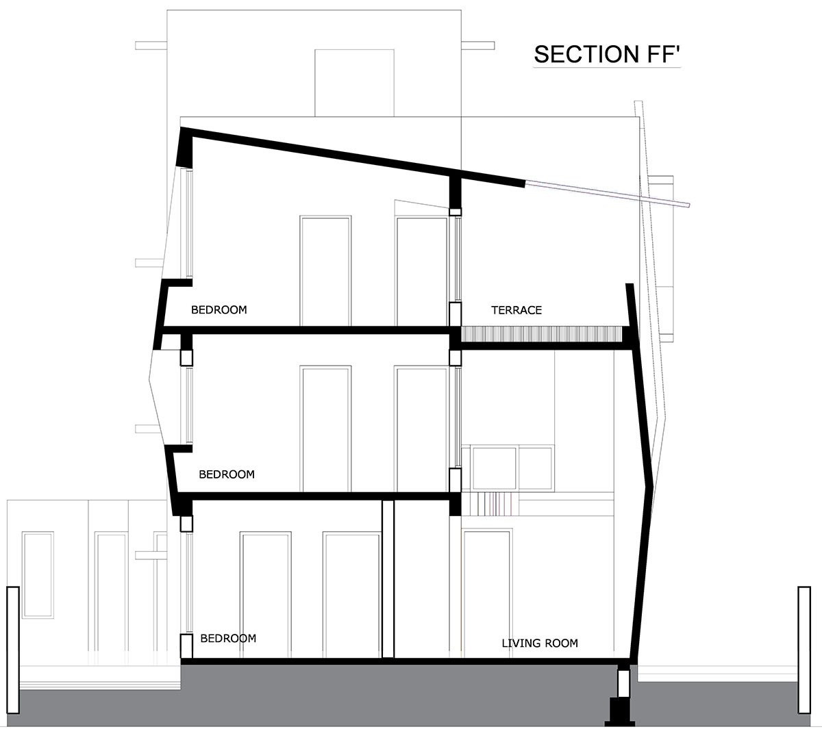
Concept Note: To achieve this unique brief, skewed planes of reinforced cement concrete and glass were employed to envelope the building. One being opaque while the other transparent. Hence each of these external surfaces were strategically such that the opaque provided privacy while the transparent lead to permit natural light and ventilation. The monolithic property of reinforced cement concrete was exploited to suspend skewed planes at angles. Slits of glass were created in between these skewed planes of RCC such that the interior had natural light throughout the day.
Moreover reinforced cement concrete planes comprising the exterior of the house were kept exposed so that it doesn’t intrude with the monotonous urban fabric. The façade was thus designed to not be intrusive to the it’s surroundings but at the same time provide extreme privacy and avoid interaction.



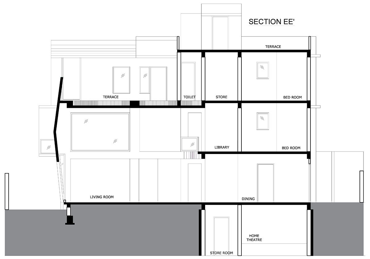
The interior however has a very colorful palette creating a contrast to the grey exterior. These colors come to life slowly as the sunlight penetrates and fills up each of these spaces. First is the living room and the foyer that lights up with sunshine due to the tall double height glass windows. Around noon the waterfall and the patio outside the dining room is flooded with light such that the dining room gets lit indirectly just in time for lunch. The waterfall outside the dining provides a soothing view of water cascading down in the brightly lit noon light.


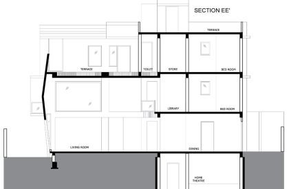
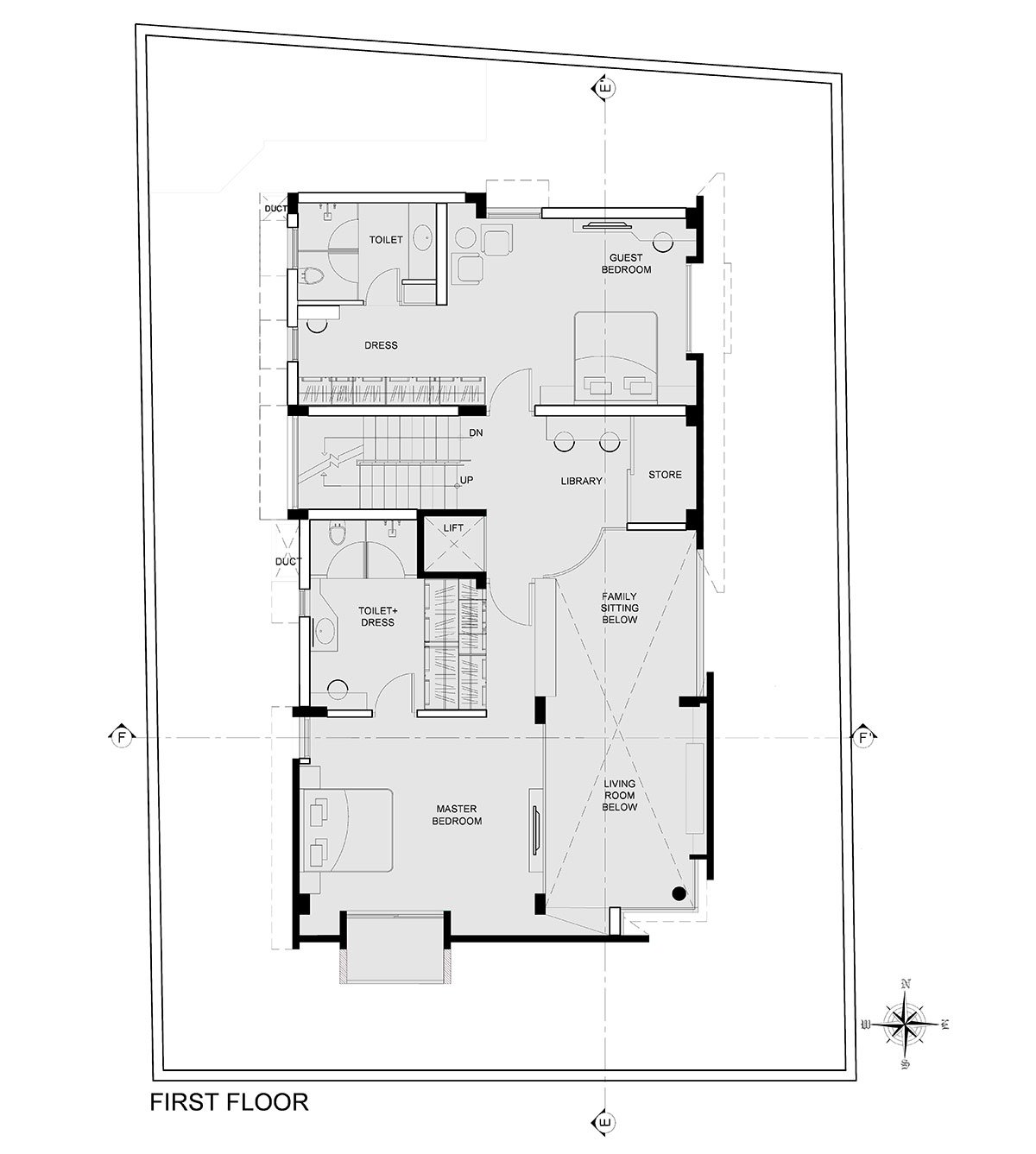
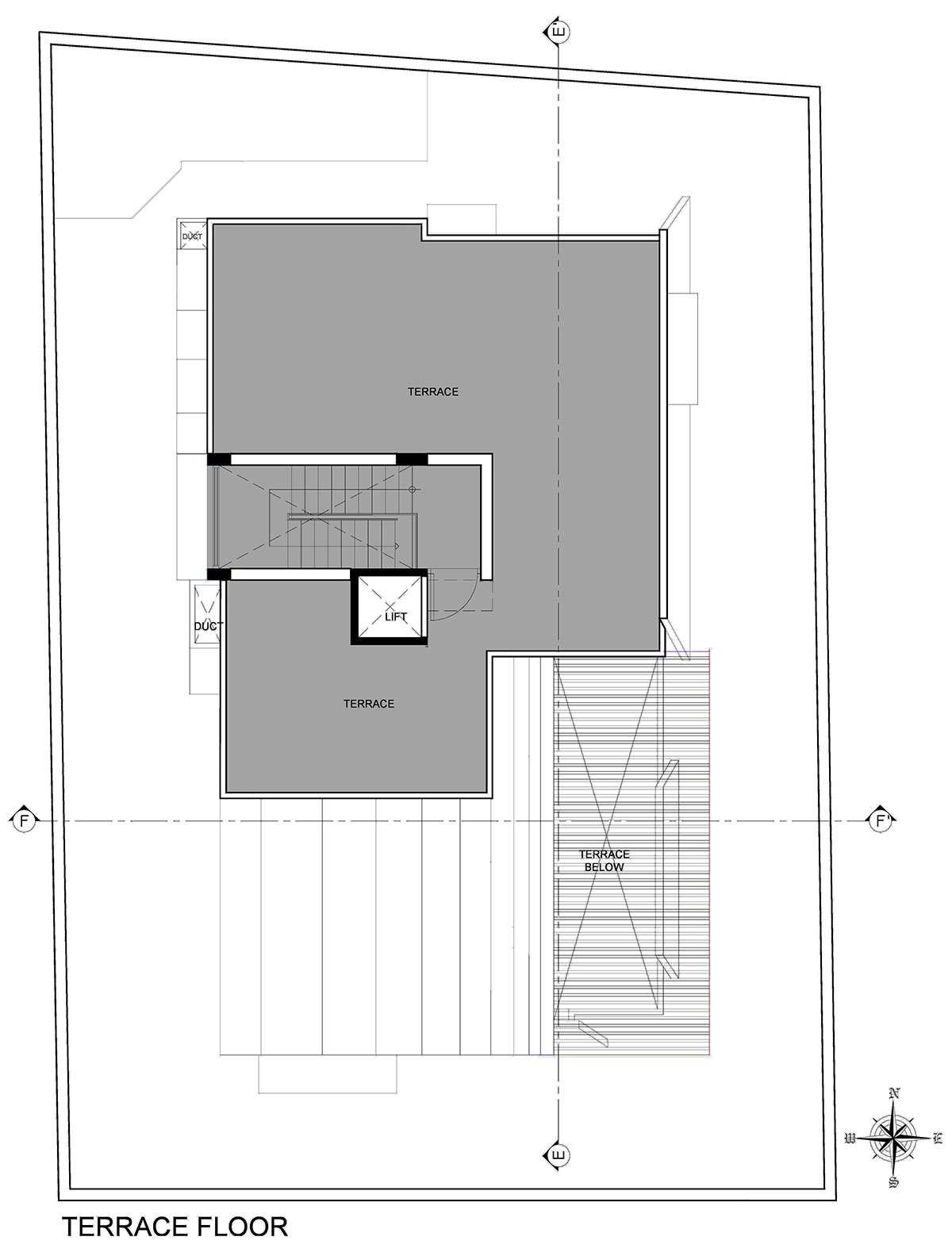
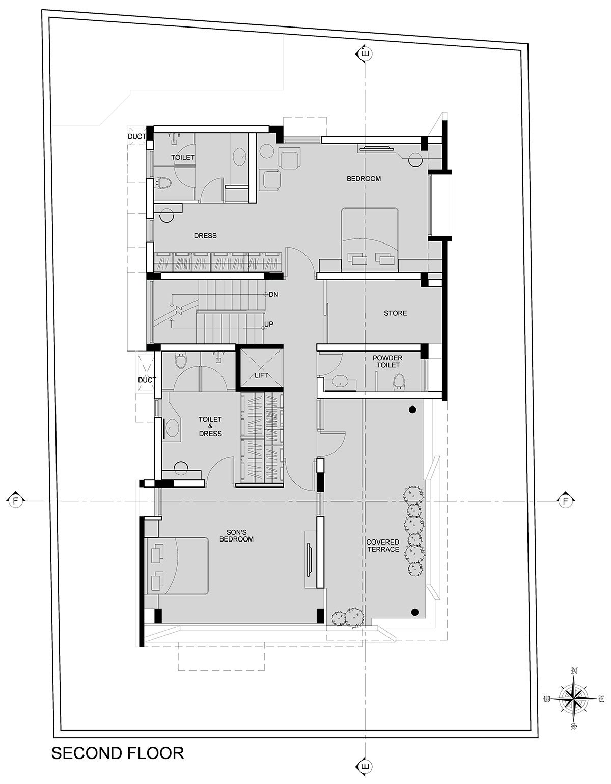
With a total of five bedrooms, three of them have the street view. Since the house has sunlight pouring in all throughout the day, its interior surfaces rendered with an extensive use of color come to life and create a vibrant atmosphere. A small covered terrace on the second floor allows small private social gatherings away from the street level.


Design Process: Several cardboard models were made to understand these surfaces and how its location and orientation will permit natural light throughout the day. Folds and half cuts of the cardboard became the exposed reinforced concrete surfaces, whereas the gap and punctures in between was where the glass was placed for allowing natural light inside. Moreover the summers being extremely hot, the location of the glass in the exterior was key to providing openable windows for cross ventilation.
Additionally, the sun path was studied to understand the light penetrating inside the house during the day. This sun path determined where the exposed reinforced concrete surface was to be placed so that selective light would enter the house.

