Excerpt: Tropical Town House by ICONCAST Chartered Architects reimagines the narrow typology by introducing courtyards and open linear spaces that dissolve dark, confined interiors. Large sliding panels, tall dining volumes, and seamless connections to greenery foster permeability and engagement with the outdoors. Rooted in minimal geometry and biophilic qualities, the residence balances privacy with openness, creating a flexible, family-centered lifestyle.
Project Description

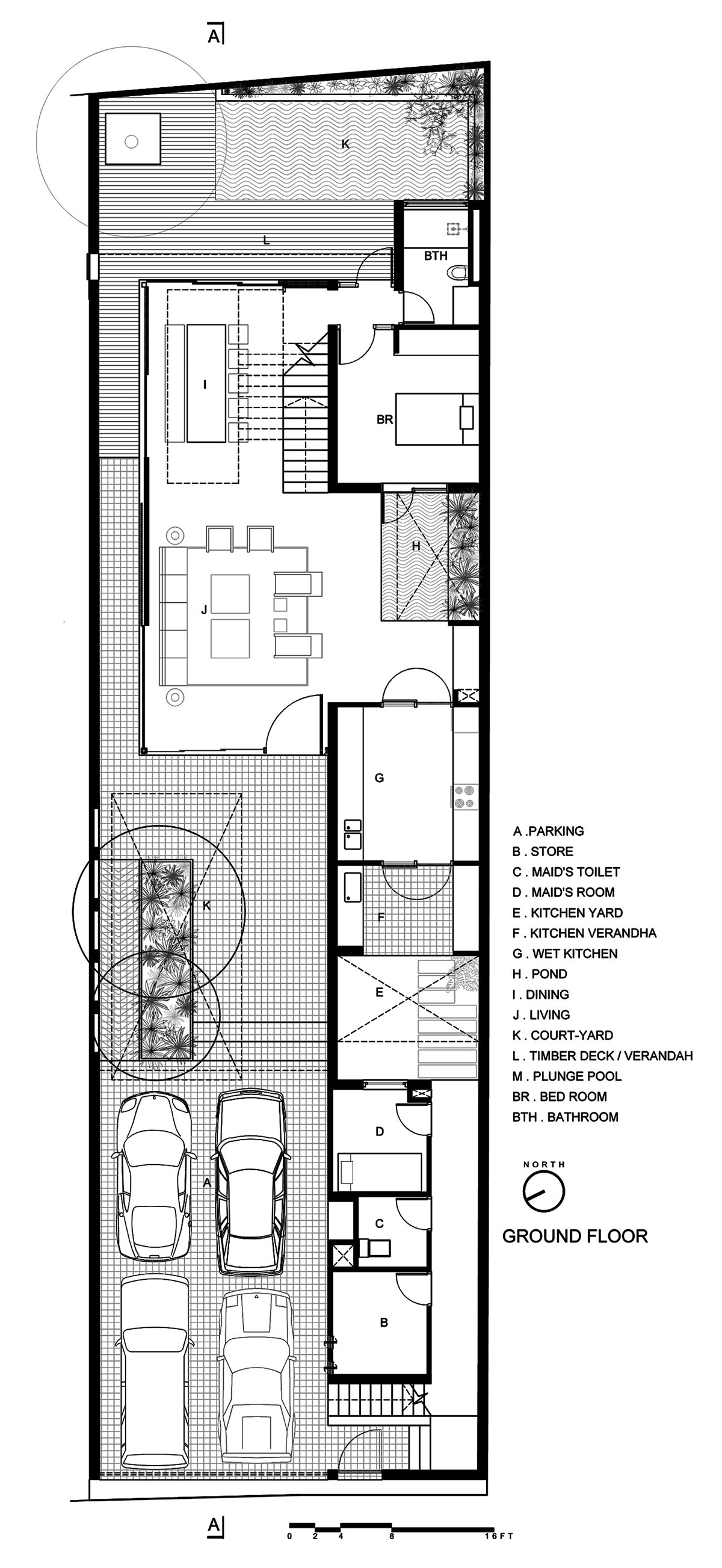
[Text as submitted by architect] The project was to design two side by side town houses for two siblings on their sub divided parental land. The subject of this discourse is one of the two town houses. The design explored an innovative approach to counter the typical narrow town house typology with dark interiors resulting from the short frontage, long depth and common blind boundaries on either side.


The parking roller door opens to reveal the complete depth of site in an unobstructed linear shaft of space up to the rear boundary. One encounters a courtyard with lush greenery, flooded with dappled day light before the house unfolds; the car park floor extends through the entry fore court to the living to ease up the flow of linear space. The sliding glass panels of the living and dining space allow for greater permeability through space and better engagement with the outdoors. The dining volume is taller connecting the pool deck and staircase with the upper floor.



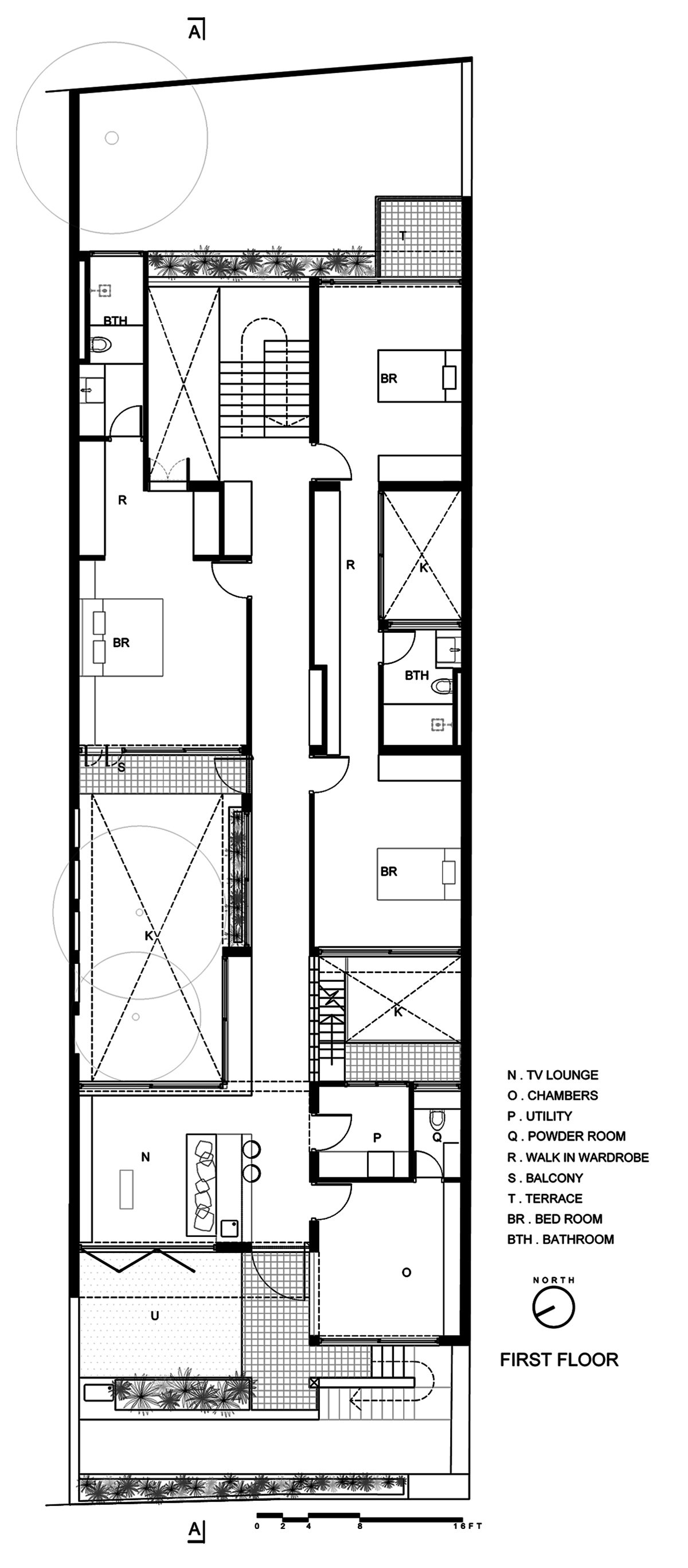
Rooms needing privacy are stacked against the south boundary in alignment with the spaces they serve to function. This allows for the rest of the space to be unhindered by dividing walls. Although the upper floor contained spaces needing increased privacy with three of the four bedrooms and bathrooms the design enabled a permeable flow between the front and the back at upper using common space.
This simple spatial formation allows for an active remake of user engagement with the outdoors and among the family.



Materials, Structure & Construction: The regular reinforced concrete column, beam frame entertains clear spans at parking and living volumes. The courtyard perimeters are designed in exclusion of visible columns or beams for greater permeability and engagement with surrounding spaces and in turn the interactions among the family.
Furniture and other spatial accessories are textured, neutral finishes with a minimal expression in geometry inspiring curiosity offering much to play with and explore improvised utility.

Large glass sliding panels allow the ground floor Living and Dining spaces to expand and spill over onto the pool deck and entry forecourt for an event or contained for a more intimate gathering effortlessly switching from a passive everyday mode to an event mode; creating lifestyle flexibility for the family.


Details of Sustainable Architecture: The courtyards maintain a passively modified thermally comfortable micro climate inside the house as they sustain the ‘stack effect’ and cross ventilation through the single bay spaces and fill the interiors with day light; minimizing the day to day energy consumed to live in the house comfortably throughout the year.
The layout, scale, materials and vegetation of the internal courtyards combine to create a striking feature enhancing the spatial quality with improved connection to the outdoors. The tactile and biophilic nature of the landscape architecture is a pleasing vegetative aesthetic in addition to thermally effective evaporative cooling properties.

The courtyards are resourcefully planned to entertain spatial and non-spatial consumption. The ample roof area enabled the use of solar panels to generate adequate electricity for house consumption.

