Excerpt: Vertical Farm Hengshui by Van Bergen Kolpa Architects is a center for innovation in metropolitan food production. With its faceted glass façade, stacked functions, and transparent structure, the building showcases sustainable horticulture in the metropolis. Combining vertical cultivation, education, and sustainability, it forms a striking architectural face for urban food production and rural revitalization.
Project Description

[Text as submitted by architect] With Vertical Farm Hengshui, van Bergen Kolpa Architects has delivered a center for innovation in metropolitan food production for the city of Hengshui, China.
With its faceted glass façade, monumental entrance hall, and stacking of functions, Vertical Farm Hengshui offers a striking architectural face to horticulture in the metropolis. With its reuse of water, passive heat recovery, and natural cooling, the building demonstrates how food can be produced sustainably in the metropolis.

The Vertical Farm is built at the International Horticultural Park in Hengshui, which serves as the innovation center for fruit and vegetable cultivation in Hebei Province and China. The transparent, four-story building is the main entrance to the production and educational facilities and offers views of the greenhouse horticultural park for food production.



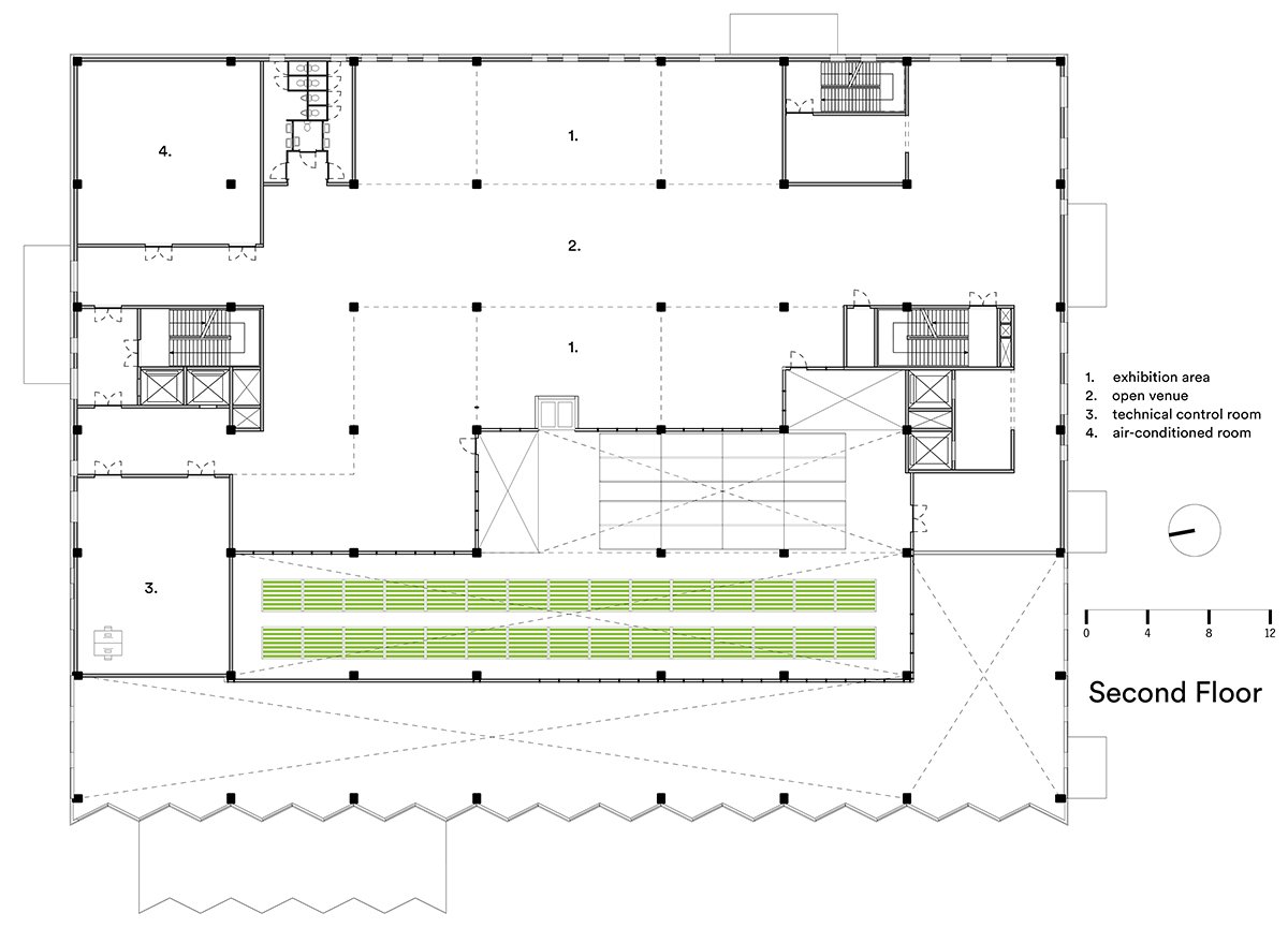
Building for innovation and education: The 12,800 m² building, spread over four floors, features various innovative vertical farming methods stacked above a transparent entrance hall. An educational route through the building guides visitors through the automated vertical cultivation of leafy vegetables and fruits under LED lighting, as well as a rooftop greenhouse where fruity vegetables and fruit trees are grown under daylight.
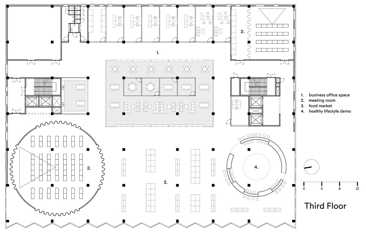
At the heart of the building, on the lower two floors, are the automated vertical cultivation areas without daylight, under LED lighting, with laboratories and processing rooms. Some of these facilities have glass walls and are visible from the entrance hall on the ground floor. The third floor houses the demonstration center for healthy food and horticultural suppliers. The fourth floor is home to the rooftop greenhouse, which offers spaces for educational activities and compartments for the horizontal cultivation of fruit vegetables and fruit trees under daylight.



“One of the challenges was to combine and stack the light conditions for the various types of cultivation and the work and educational spaces in a single four-story building.
Metropolitan horticulture and rural revitalization: In order to provide millions of people in China’s growing metropolises with green and healthy food, it is necessary to make production as sustainable as possible and to integrate it into and around the metropolis. The province of Hebei, located around Beijing, Tianjin, and Hengshui, was originally the fruit and vegetable basket of these metropolises, but it is also facing aging, climate change, and water shortages. Promoting increased Sustainability through greenhouse horticulture, shortening food chains, attracting a younger generation of horticulturalists, and promoting a healthy lifestyle are the foundations for rural revitalization.



Vertical Farm Hengshui offers an innovative and versatile solution for the future, with stacked horticulture, entrepreneurship, and education on a compact scale. It is a new type of building for professional cultivation that is accessible to a wide audience celebrating the important role of food in metropolitan areas.
“Vertical horticulture offers a solution to the question of how metropolises can both produce and consume food. This saves on logistics costs and allows residents to actually receive fresh vegetables.”
“This horticultural complex is an important step in the development of the high-tech horticultural sector, together with international knowledge partners and suppliers from the Netherlands in China.”


Sustainable use of water and energy: Not a single drop of water is wasted in the building. When irrigating the plants, excess water is collected and reused. Natural ventilation and evaporation-based cooling are used to manage the climate in the building. Passive heat from the sun and residual heat from the LED lighting are used for heating.
“Vertical Farm Hengshui offers the possibility to grow plants in a sustainable way in nutrient-rich water, with artificial sources supplementing the daylight they need. Certain resources that are considered unusable in the metropolis can be reused in vertical horticulture, such as nutrients from sewage water and carbon dioxide in the air.”

A transparent sculpture: Vertical Farm Hengshui is a proud sculpture of steel and glass that emphasizes its role in horticulture and education. The building is constructed from an industrial steel structure that stands out against the Hengshui skyline with a series of transparent bay windows. The entrance is striking thanks to its expressive, faceted glass façade.
The glass bay windows offer constant, reflection-free views throughout the day, both from the inside and outside. In the evening, the building glows like the Treasure Box of the Horticultural Park, thanks to its characteristic ultraviolet light.

“For Vertical Farm Hengshui, we further improved the usual Venlo roof greenhouse and stacked it on a steel substructure, enabling an efficient and column-free span for Vertical Farming.”