Vidyakula International School | Sudaiva Studio

Save
Vidyakula International School | Sudaiva Studio

Information

  • Project Name: Vidyakula International School
  • Practice: Sudaiva Studio
  • Products: AutoDesk , Ashirvad Pipes , Asian Paints , Basant Bettons , Bharathi Electricals , JSW , Jaquar , Jindal , Kajaria , Nitco , Trimble , Adobe , Chaos Group
  • Completion year: 2022
  • Gross Built up Area: 34000 sq. ft.
  • Project Location: Beechanahalli
  • Country: India
  • Lead Architects/Designer: Vinay Mavinakere, Geeth Gopinath
  • Design Team: Vinay Mavinakere, Geeth Gopinath, Aditi Hoti, Lydia John
  • Engineering: Site Engineer: Suhas Vashista
  • Structural Consultants: Design Academy, Stephin Tom
  • Landscape Consultants: Vinay Mavinakere, Geeth Gopinath
  • Photo Credits: Shamanth Patil J, Sudaiva Studio
  • Others: Building Function: Secondary School
More Info Less Info

Excerpt: Vidyakula International School by Sudaiva Studio is an institutional architecture project thoughtfully crafted as a series of interconnected levels, catering to the site’s sloping terrain. The design prioritizes function, with a minimalist street-facing façade featuring a double-heighted reception and administration block. It features an open-to-sky central spine that runs linearly, is flanked by classrooms, and offers framed views of the hills.

Project Description

Vidyakula International School | Sudaiva Studio
© Shamanth Patil J

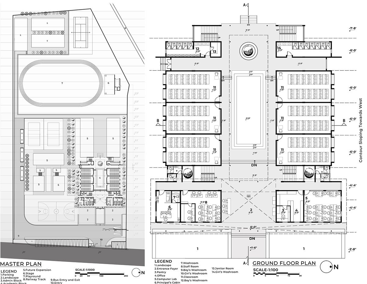
[Text as submitted by architect] Upon initial presentation of the site for the proposed international school, the captivating view along the principal east-west axis to the distant ‘Haddina Kallu’ hills influenced the design approach. Located in rural Karnataka, spanning 4 acres and situated off the National Highway NH75, the site features a tree-lined landscape sloping 30 feet towards the west.

Vidyakula International School | Sudaiva Studio
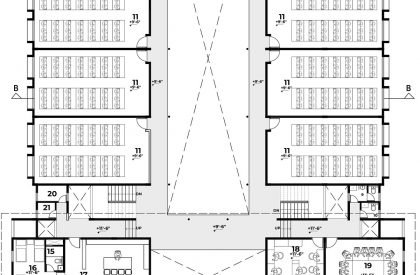
Site Plan and Ground Floor Plan © Sudaiva Studio
Vidyakula International School | Sudaiva Studio
© Shamanth Patil J

Working with the sloping terrain, the design was thoughtfully crafted as a series of interconnected levels. The central spine, which is open to the sky and runs linearly, is flanked by classrooms and offers framed views of the hills from both the reception area and classroom corridors. The school was designed to accommodate 2000 students and planned to be constructed in phases. The recently completed first phase comprises 18 classrooms, a toilet block, and the administration block. 

Vidyakula International School | Sudaiva Studio
© Shamanth Patil J
Vidyakula International School | Sudaiva Studio
© Shamanth Patil J

With the additional responsibility of constructing the school, the team was faced with the challenge of delivering quality work within a limited budget. To overcome this, a material palette that is both cost-effective and long-lasting was selected. In addition, preserving the site’s mature trees was of utmost importance, and the team cleverly positioned the buildings to avoid disruption of the natural landscape.

Vidyakula International School | Sudaiva Studio
© Shamanth Patil J
Vidyakula International School | Sudaiva Studio
Section © Sudaiva Studio
Vidyakula International School | Sudaiva Studio
© Shamanth Patil J

By eschewing all ornamentation, the design places function at the forefront. The school’s street-facing façade takes on a minimal, modernist form and houses the double-heighted reception and administration block. The metal and concrete roof imbues the entire structure with an airiness that belies its strength and solidity.

Vidyakula International School | Sudaiva Studio
© Shamanth Patil J

Adjacent to the reception block and a few steps below lies the academic block, conceived as a three-story structure divided into two wings that house 18 classrooms. The sunken open-to-sky courtyard, nestled between the two wings, offers an interactive and playful space for students. Continuing along the axis, the toilet block stands separated from the academic block by a level difference that follows the site’s natural contours.

Vidyakula International School | Sudaiva Studio
© Shamanth Patil J
Vidyakula International School | Sudaiva Studio
© Shamanth Patil J

Using a combination of modest materials such as natural stones, vitrified tiles, and polished concrete, the corridors and classrooms were designed with an understated elegance. To bring life and vibrancy to the academic block and to counterbalance the austere, modernist form, shades of blue and teal were used alongside striking red accents.

Vidyakula International School | Sudaiva Studio
© Shamanth Patil J
Vidyakula International School | Sudaiva Studio
Section © Sudaiva Studio
Vidyakula International School | Sudaiva Studio
© Shamanth Patil J

The double-heighted circular steel columns, recurring throughout the structure, create a rhythmic counterpoint to the minimalist design. A colonnade of 9-inch square columns runs the length of the academic block on the second floor, providing scenic views of the distant hills. This repetition of form unifies the building’s aesthetic and adds a sense of harmony to the overall design.

Vidyakula International School | Sudaiva Studio
© Shamanth Patil J

The building’s slender form along the east-west axis minimizes heat gain while the central courtyard invites breezes to sweep through, providing welcome relief from the oppressive heat that plagues the region almost year-round. Even on bright, sunny days, children can enjoy playing in the courtyard and corridors, while also gaining an appreciation for the climate-responsive design of the building. This symbiotic relationship between architecture and environment is intended to inspire curiosity and foster a deeper understanding of the natural world.

Leave a Reply