Excerpt: Vivienda minima SUM, designed by Parada Cantilo Estudio, is a residence born due to the need for a flexible program within a limited piece of land, determined by a modulated assembly structure of simple, dynamic development. Through a light and permeable materiality, it maintains a possibility of constant dialogue between interior – exterior. As a guideline for its development, a 60 cm module was used to take advantage of its size, both in the program and in its materials.
Project Description
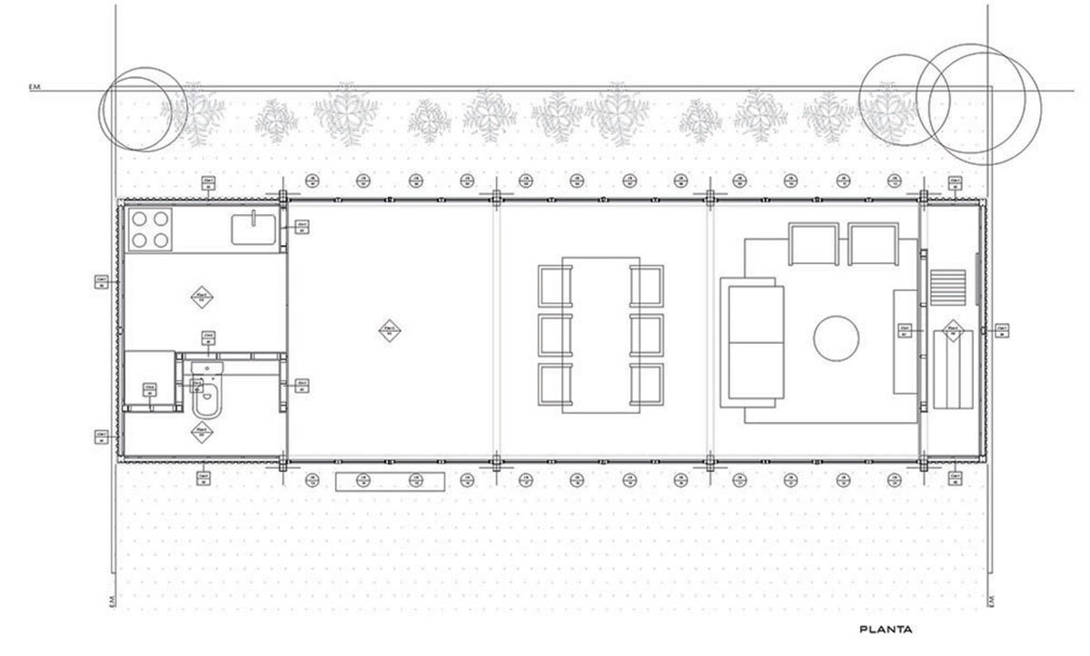
[Text as submitted by architect] Located in the town of Manuel B. Gonnet, this living space is born due to the need of a flexible program within a limited piece of land, determined by a modulated assembly structure of simple, dynamic development. As for its implementation, “the object” is separated from one of the limits of the land, obtaining cross ventilation throughout its development, taking advantage of the best orientation and strengthening the connection to its environment. Through a light and permeable materiality, it maintains a possibility of constant dialogue between interior – exterior.



The zinc, the glass and the wood act as protagonists, defining the space. The white highlights the warmth of the texture of each of them, synthesizing the amount of components in response to the dimensions of the building and its simplicity. Through a floor-to-ceiling transparency, it seeks to rank the vegetation over the intervention, eliminating the limits in the longitudinal direction of the plot.



As a guideline for its development, a 60 cm module was used to take advantage of its size, both in the program and in its materials (profiles, sheets, phenolic plates), optimizing the construction without waste. The service area is resolved at the ends, one of them consisting of a kitchen and a bathroom and the other dedicated to the storage of furniture, granting flexibility of assembly, depending on the use required throughout its surface.



