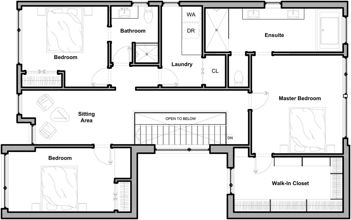
Excerpt: Westboro Home by Kariouk Architects features a two-story, light-filled raised garden courtyard designed to fit within the site’s limitations. Its open lot-line side and three interior sides are filled with windows, bringing natural light into the home. The courtyard, filled with ornamental plantings, serves as a daylight-magnet and a visual focus for the primary living spaces.
Project Description

[Text as submitted by architect] Design Challenge: The site for this home was a narrow lot in a downtown neighborhood, which carried with it extensive code limitations on side windows. A further challenge was negotiating the difference in grade between the two neighbouring lots: an already steeply sloping site, the neighbours to the West raised their rear yard an additional 1.5 m, ultimately creating a difference in neighbouring lot heights of approximately 2.5 m.



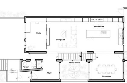
Design Response: The design of the home revolves around a two storey, light-filled raised garden courtyard. The garden takes a “bite” out of the tight, permissible building area, however it allows for an extensive amount of glass that otherwise, due to restrictive building code requirements, would not be possible. The courtyard’s lot-line side remains open, while its three interior sides are filled with windows and bring natural light into the heart of the home on both living floors. The courtyard is filled with ornamental plantings, and while it serves as a “daylight-magnet,” it also serves as a lush, visual focus for each of the primary living spaces of the home.




Upon stepping into the foyer, one is immediately presented with a series of linked views that unite the very front of the home to the very back of the property. The opposing wall of the interior foyer is entirely glass and shows the exterior, raised garden courtyard; this view continues through the courtyard and joins the interior of the formal dining room; this view then extends to an exterior garden bridge over the lower rear yard that ultimately joins visually to the interior of a three-season reading pavilion set in the rear yard.


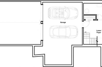
A sense of privacy is created, despite the numerous and large windows that were achieved, as the main living areas begin a full-flight above street level; a slate and glass entry stair and walkway create a generous arrival point for visitors. Likewise, the entry stair/foyer volume is clad in white masonry in order to visually advance and welcome visitors towards the walkway (while the volume housing primary living spaces as well as the garage below is clad in black clapboard in order to recede from the sidewalk). A continuous visual and spatial gap cuts entirely through the home between the light and dark volumes; an open-riser stair is inserted into that void, set against the backdrop of the garden courtyard.

