Excerpt: ‘Bongotaj Memorial Museum Complex at Kapasia, Gazipur, Bangladesh’ is an architecture thesis by Md. Shahadat Hossain from the Faculty of Architecture and Planning – Ahsanullah University of Science and Technology (AUST) that seeks to honour the great Bangladeshi national leader Bongotaj Tajuddin Ahmad through the creation of a memorial museum complex. By recognising his contribution to nation-building, the project seeks to showcase his exceptional feats and his historic path of glorious victory.
Introduction: The purpose of this thesis project is to honour the great national leader Bongotaj Tajuddin Ahmad and his journey through Bangladesh’s political history through the creation of this memorial museum complex.
A short brief of Bongotaj’s life: Bongotaj Tajuddin Ahmed was the first prime minister of Bangladesh and a significant national leader. He led numerous historical movements and was a constant companion of the father of the nation, Bongobondhu Sheikh Mujibur Rahman. Ahmed’s greatest success was leading and organizing Bangladesh’s liberation war movement in the absence of Bangabandhu. His leadership united political personalities and the people of Bangladesh, creating the first government called the “Mujibnagar Government.” He handled conspiracies during the war, leading to a free nation and a flag of their own. However, some people opposed this, leading to the deaths of the father of the nation and the four leaders, causing the nation to fall into a dark age.
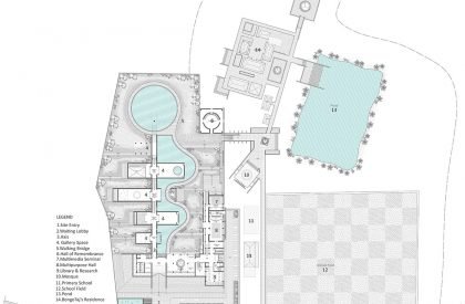
The project is located in Kapasia, Gazipur, the birthplace of Tajuddin Ahmed. The intervention site is a part of his house that comprises existing residences, a school, a mosque, a school field and a pond.
Design Process
Concept GenerationConcept Generation
The chronology of Tajuddin Ahmed’s life has been split into four main sections, namely the “British Period,” “Pakistan Period,” “Liberation War,” and “Bangladesh Period.” Every stage of his life showed some change, both gain and loss.
Concept DevelopmentConcept Development
His speech served as the foundation for the conceptual development of the project. He was a man of discipline who gave his all to the people he loved. The idea was to identify him through his exceptional feats and his historic path of glorious victory.
Hence, the concept is “Journey Through a Glorious Victory.”
Final Outcome
Top ViewGround Floor PlanLong SectionsElevations
By recognising Tajuddin Ahmad’s contribution to nation-building, the design will be showcasing the people’s respect for him. Future leaders will be inspired by getting to know a leader like him and his leadership style, philosophy, and personality.
Sectional Perspective Through AxisAxis
His mission was clear: he wanted to leave his mark on history and his nation. Thus, the architect created a volume with an axis that will represent his life’s journey through history. The axis runs through the site and represents his life’s timeline.
Floor PlansGallery SectionCourt
Like Tajuddin Ahmad’s personality, green slopes were created that blend the built form with nature. The only features visible from the site’s entrance are the axis at the back and the green slope at the front, with the lush, untouched scenery of Shalban serving as the background.
Top ViewLong SectionsGalleryTermination Of Axis
Five gallery spaces are combined to create a continuous water body. Water is used as a guiding element and to mimic Bangladesh’s deltaic landscape. The visitors are guided to the destination by water channels and the sound of flowing water; the terminal is designed to evoke a sensual emptiness that serves as a reminder of Tajuddin Ahmad’s absence.
Sectional Perspective Through GalleryGallery
The visitors follow the course of his life, and ultimately they say goodbye to him. When visitors visit “Galley 05,” they are shown the nation’s darkest past, where the leaders who guide them to a new country are shown brutally dying.
Hall Of RemembranceConnection With ResidenceGallery
The “Hall of Remembrance” is filled with the historical atmosphere of sacrifice and loss. In front of the “Hall of Remembrance” is a screen that displays Tajuddin Ahmed’s life timeline and political journey. In order to allow visitors to see Tajuddin Ahmad’s existing residence, a pathway was created connecting it and other structures.
Aerial ViewModel
Conclusion: By carefully combining architectural design elements with natural elements, the project successfully creates a space that evokes diverse emotions. By guiding visitors through a journey that highlights each phase of Tajuddin Ahmad’s life through a play of volumes along a fixed axis, it stays true to its concept.
[This Academic Project has been published with text submitted by the student]
Site Context
Design Process
Final Outcome
To submit your academic project for publication at ArchiDiaries, please visit the following link >> Submit
Get the best of ArchiDiaries, directly in your inbox.
We use cookies on our website to give you the most relevant experience by remembering your preferences and repeat visits. By clicking “Accept All”, you consent to the use of ALL the cookies. However, you may visit "Cookie Settings" to provide a controlled consent.
This website uses cookies to improve your experience while you navigate through the website. Out of these, the cookies that are categorized as necessary are stored on your browser as they are essential for the working of basic functionalities of the website. We also use third-party cookies that help us analyze and understand how you use this website. These cookies will be stored in your browser only with your consent. You also have the option to opt-out of these cookies. But opting out of some of these cookies may affect your browsing experience.
Necessary cookies are absolutely essential for the website to function properly. These cookies ensure basic functionalities and security features of the website, anonymously.
Cookie
Duration
Description
cookielawinfo-checkbox-analytics
11 months
This cookie is set by GDPR Cookie Consent plugin. The cookie is used to store the user consent for the cookies in the category "Analytics".
cookielawinfo-checkbox-functional
11 months
The cookie is set by GDPR cookie consent to record the user consent for the cookies in the category "Functional".
cookielawinfo-checkbox-necessary
11 months
This cookie is set by GDPR Cookie Consent plugin. The cookies is used to store the user consent for the cookies in the category "Necessary".
cookielawinfo-checkbox-others
11 months
This cookie is set by GDPR Cookie Consent plugin. The cookie is used to store the user consent for the cookies in the category "Other.
cookielawinfo-checkbox-performance
11 months
This cookie is set by GDPR Cookie Consent plugin. The cookie is used to store the user consent for the cookies in the category "Performance".
viewed_cookie_policy
11 months
The cookie is set by the GDPR Cookie Consent plugin and is used to store whether or not user has consented to the use of cookies. It does not store any personal data.
Functional cookies help to perform certain functionalities like sharing the content of the website on social media platforms, collect feedbacks, and other third-party features.
Performance cookies are used to understand and analyze the key performance indexes of the website which helps in delivering a better user experience for the visitors.
Analytical cookies are used to understand how visitors interact with the website. These cookies help provide information on metrics the number of visitors, bounce rate, traffic source, etc.
Advertisement cookies are used to provide visitors with relevant ads and marketing campaigns. These cookies track visitors across websites and collect information to provide customized ads.