Excerpt: ‘Crop Co-op’ is a Bachelors Design Project by Roksolana Ozerianska from the ‘School of Architecture – University of Waterloo.’ The project aims to create social housing where sustainability is lived daily. Centered on shared food growing, flexible living, and modular construction, it uses food as a social and spatial framework that connects residents. Its adaptable units and self-sustaining systems support long-term resilience, collective well-being, and everyday practices of growth, care, and reuse that strengthen the community.
Introduction: Crop Co-op is a proposed social housing project in downtown Galt, built around shared food growing, flexible living, and simple modular construction. The project explores how sustainability can be practiced through everyday activity, long-term living, and building construction. At its core, it considers food as a social and spatial framework—an activity that connects residents through growing, cooking, and eating together. The idea of flexibility extends beyond unit layout to social and environmental resilience, where the architecture supports both individual and collective well-being. Through its modular structure, adaptable housing types, and self-sustaining food systems, Crop Co-op imagines a model of housing where sustainability is not added on but lived daily—embedded in the cycles of growth, care, and reuse that define the community.
Context Model – 500m radius around the proposed transit terminal: city plan vs re-imagined urban circulation (side by side)Context Model – 500m Radius Around The Proposed Transit Terminal (Front View)
The project is prompted by the proposed LRT line, planned to terminate at the Ainslie Station. Instead, the design repositions the terminal to allow for future extension, connecting more communities along the route. Major traffic is redirected away from the heart of Galt to Wellington Street, opening the city core for pedestrians. Two fragmented triangular sites are merged into one block shared between the new station and Crop Co-op. The program combines housing with public and semi-public spaces—a restaurant, daycare, art gallery, fitness studio, bike shop, soup kitchen, and social service offices—all centered around a courtyard that supports food growing and gathering. These functions overlap and support one another, creating a living infrastructure that connects mobility, food, and housing at the scale of the city.
Final Outcome
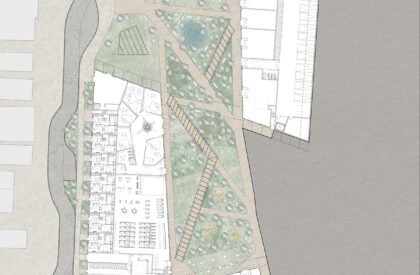
Floor Plan – Courtyard Level | Floor Plan – Station Level
The project began with a simple question: how can housing remain affordable, adaptable, and sustainable without sacrificing space or quality of life? It set out to maximize outdoor space for growing while maintaining the same density and to explore how food production can become an everyday activity within housing. The goal was also to design residential units that could change to meet current and future needs without requiring new construction or additional material and energy use. This led to the development of a flexible six-bay unit module.
Floor Plan – Typical Residential Level | Floor Plan – Roof LevelFloor Plan – 6-Bay Unit Module
The same logic shaped the structure and envelope – a straightforward modular system designed to be efficient to assemble, high-performing in use, and easy to take apart at the end of its lifespan. To bring the growing idea into private space, each unit included its own outdoor area. The proposed sunroom system was designed to be independent from the superstructure, reimagining traditional balconies that typically penetrate the building envelope and create significant thermal bridging. In addition to providing a small greenhouse for each unit, the sunrooms also act as thermal buffers. Together, these design moves form a process centered on practicality, adaptability, and the lived experience of sustainable housing.
Floor Plan – 6-Bay Unit ModuleFloor Plan – 6-Bay Unit ModuleExterior Wall Fragment + Section Detail
The final proposal explores how modular housing could integrate sustainability at multiple scales – from structure to daily life. The design sought to meet most daily needs of residents on site, moving toward a more self-sufficient model of living. The six-bay unit system was developed as a flexible framework, allowing for a flexible unit mix without additional construction or material and energy waste.
Courtyard Render ViewStation Render View
The prefabricated grid and modular wall panels suggest a construction logic that could simplify assembly and make future disassembly practical. The independent sunroom system was imagined as a way to provide outdoor space for every unit while improving thermal performance and extending the potential for food growing at the private scale.
Conclusion: Ultimately, these strategies together outline a housing model that remains adaptable, resource-conscious, and rooted in the act of growing – framing sustainability as both structural and lived.
[This Academic Project has been published with text and images submitted by the student]
Site Context
Final Outcome
To submit your academic project for publication at ArchiDiaries, please visit the following link >> Submit
Get the best of ArchiDiaries, directly in your inbox.
We use cookies on our website to give you the most relevant experience by remembering your preferences and repeat visits. By clicking “Accept All”, you consent to the use of ALL the cookies. However, you may visit "Cookie Settings" to provide a controlled consent.
This website uses cookies to improve your experience while you navigate through the website. Out of these, the cookies that are categorized as necessary are stored on your browser as they are essential for the working of basic functionalities of the website. We also use third-party cookies that help us analyze and understand how you use this website. These cookies will be stored in your browser only with your consent. You also have the option to opt-out of these cookies. But opting out of some of these cookies may affect your browsing experience.
Necessary cookies are absolutely essential for the website to function properly. These cookies ensure basic functionalities and security features of the website, anonymously.
Cookie
Duration
Description
cookielawinfo-checkbox-analytics
11 months
This cookie is set by GDPR Cookie Consent plugin. The cookie is used to store the user consent for the cookies in the category "Analytics".
cookielawinfo-checkbox-functional
11 months
The cookie is set by GDPR cookie consent to record the user consent for the cookies in the category "Functional".
cookielawinfo-checkbox-necessary
11 months
This cookie is set by GDPR Cookie Consent plugin. The cookies is used to store the user consent for the cookies in the category "Necessary".
cookielawinfo-checkbox-others
11 months
This cookie is set by GDPR Cookie Consent plugin. The cookie is used to store the user consent for the cookies in the category "Other.
cookielawinfo-checkbox-performance
11 months
This cookie is set by GDPR Cookie Consent plugin. The cookie is used to store the user consent for the cookies in the category "Performance".
viewed_cookie_policy
11 months
The cookie is set by the GDPR Cookie Consent plugin and is used to store whether or not user has consented to the use of cookies. It does not store any personal data.
Functional cookies help to perform certain functionalities like sharing the content of the website on social media platforms, collect feedbacks, and other third-party features.
Performance cookies are used to understand and analyze the key performance indexes of the website which helps in delivering a better user experience for the visitors.
Analytical cookies are used to understand how visitors interact with the website. These cookies help provide information on metrics the number of visitors, bounce rate, traffic source, etc.
Advertisement cookies are used to provide visitors with relevant ads and marketing campaigns. These cookies track visitors across websites and collect information to provide customized ads.