Excerpt:‘INTERLACE’ is an architecture thesis by Nishanth Krishna from Faculty of Architecture, CEPT University, that seeks to reinterpret public interventions in the city in order to better respond to the current urban conditions. The aim of this project is to redesign Thakor Bhai Hall while taking into account its context and the issues that it now faces. By attempting to establish a dialogue between the institutions and the informal activities taking place nearby, the project serves as a catalyst for carrying the heritage of Khau Gali into the future.
Introduction: In order to effectively respond to the current urban conditions and to city life in general, it becomes necessary to reinterpret public interventions in the city throughout time. Thakorbhai Hall, which daily holds cultural events, is the most often used theatre venue in Ahmedabad, India. Despite the fact that their typology calls for enclosed performance spaces, these venues are by nature public spaces.
The challenging task is incorporating this cultural institution with the public areas in this rich setting, such as the Law Garden, which is absent from the current design. The aim of this architecture thesis is to redesign Thakorbhai Hall while taking into account its context and the issues that it now faces. The auditorium will continue to serve as its primary function, and the new programme will also include various secondary functions.
Site Location (Source: Google Map)Major LocationsExisting Performance Space
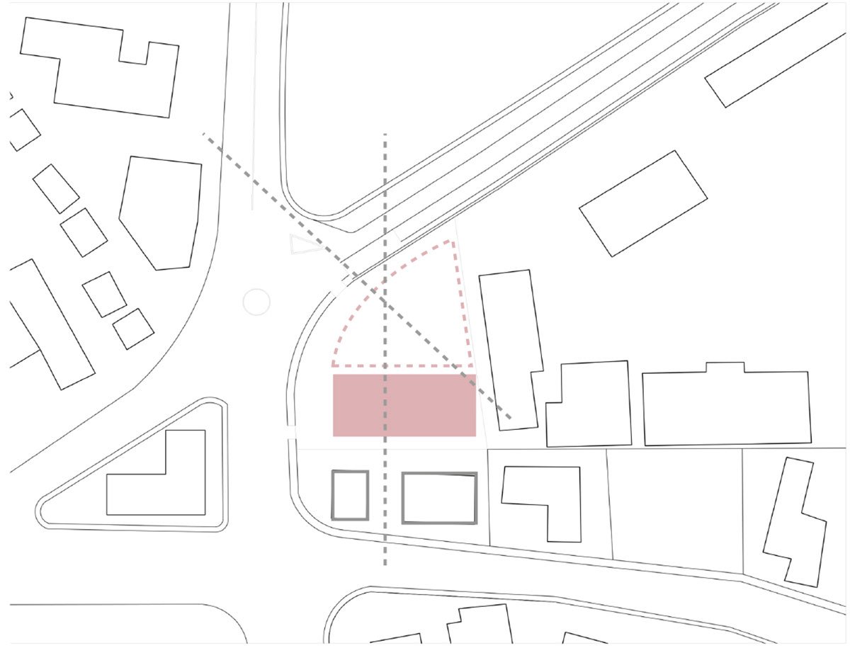
The Thakorbhai Hall is situated in one of Ahmedabad’s most prestigious neighbourhoods. With a seating capacity of 721, it is the city’s busiest theatre and regularly holds events. One of the primary public recreation areas of the city, the area serves as a nexus for numerous activities. The site’s surrounding environment is constantly changing and quite lively throughout the day, with one activity taking centre stage. It is flanked by numerous other famous and historic institutions.
Site Plan and SectionsLaw GardenBuilding Use Map
A lot of activity can be seen on the edges, and there is a lot of traffic on the roads, both vehicular and pedestrian. The primary public spaces near the site include Khau Gali (Food Street), Law Garden, Chaniya Choli Street Bazaar, Horse-Camel Riders, and Nature’s Park. The area’s residents are primarily from the upper or middle classes. The houses of Ahmedabad’s mayor and judges are also located in this region.
Major ConcernsLaw Garden
The site analysis aided in developing the program and spatial strategy and highlighted some concerns. One of the main issues was that the hall’s architecture failed to reflect Ahmedabad’s rich culture. Other issues included the institutes’ rigid nature, the lack of interaction between the institutes, the difficulty of getting about the hall owing to traffic and informal activities, and their lack of response to public spaces.
Design Process
Proposed programIdentifying the major axis
Area program: In order to enable interaction between the city and public institutions a cultural hub is proposed as the centre of all activities. To make the experience of watching a live performance much richer, ancillary areas like workshops, exhibitions, cafes, plazas, and libraries are included. These spaces will encourage informal interactions between the institution’s users and the local community, which is currently missing.
Following spatial strategies were analysed and explored as part of the design process to arrive at the final design.
Extending the open plinthLifting the building to create a public plaza
1. Lifting the huge mass: In order to obtain visual connectivity between the intervention and the surrounding public space (Khau Gali), the huge mass is raised above ground level. A physical connection is also enabled and the vendors will be designated beneath the canopy.
Creating a canopy as an anchor pointMirroring the arch profile onto the canopy
2. Building acting as an anchor: To create an anchor point for Khau gali, a tall and slender canopy is incorporated over the pedestrian plaza. The arch profile on the walls of Khau gali that reflects the city’s cultural significance is mirrored to the canopy to keep the structure a part of the context.
Grid FormationSemi Public Zone
3. Combining the institution: To achieve smooth pedestrian movement, the plaza and canopy are aligned with Bhai Kaka Bhavan, also addressing the potential for a public intervention to enhance its surroundings.
Public ZoneDeveloping the Public Zone
4. Elevated Public zone: In order to attract crowds to Khau Gali, an elevated public zone is integrated into the space between the lofty canopy. Compared to the experience of the 250m linear Khau Gali, the volume of the vibrant public zone above the plaza will offer a different experience to the visitors.
Contrasting character of the design
5. Rigid Behaviour: To break the rigid nature of brick and concrete in the older institutions in the area, the intervention is divided into two different natures. It will maintain the rigid behaviour of the institutes and the light canopy will adapt to Khau gali’s informal setting.
Final Outcome
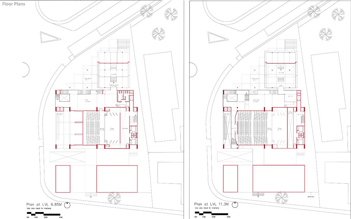
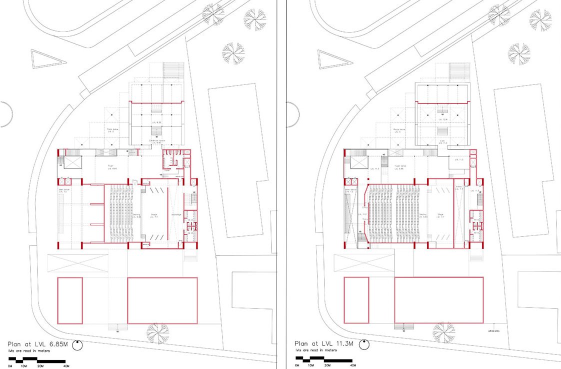
Site PlanFloor PlansSection
The project responds to the rigorous character of the institutions in the neighbourhood by building a grid that continues the walls of Bhai kaka bhavan (adjacent building). The linear columns’ dimensions of 2.5 m by 0.5 m allow for internal circulation as well. The 250-metre-long Khau gali is anchored by the tall, attractive canopy, which also serves as a backdrop for Chaniya choli bazaar.
SectionElevation
An active connection was established from the plaza and the library of Bhai Kaka Bhavan, making it more adaptable and functional. This is accomplished by drawing people’s attention to the institution and creating a visual connection through the shaded canopy. The daily interaction through the plaza will keep the users updated about the institution’s schedule.
Structural DetailsStructural Details
Materiality: Mild Steel sections are used as structural elements as the 18m tall canopy needed an inviting nature as well as less columns on the ground. In order to give the main component of the intervention a rigid personality, spaces like the auditorium are made of exposed brick, and the structure becomes form-finished concrete, blended in with the region’s material palette.
Elevation
Structure:The structural system consists of large twin columns to reduce the grid formed on the shaded plaza under the auditorium and create a visual connection with its immediate setting. The rigid approach and the informal behaviour of the intervention go hand in hand. It respects the privacy of the performance space and the visual and physical connectivity are maintained in the buffer space between these two contrasting features.
By attempting to establish a dialogue between the institutions and the informal activities taking place nearby, the project serves as a catalyst for carrying the heritage of Khau Gali into the future. In order to make the experience of attending a performance more interesting and rich, it demonstrates how a formal event, such as a performance space, can interact with the current surroundings.
[This Academic Project has been published with text submitted by the student]
Site Context
Design Process
Final Outcome
To submit your academic project for publication at ArchiDiaries, please visit the following link >> Submit
Get the best of ArchiDiaries, directly in your inbox.
We use cookies on our website to give you the most relevant experience by remembering your preferences and repeat visits. By clicking “Accept All”, you consent to the use of ALL the cookies. However, you may visit "Cookie Settings" to provide a controlled consent.
This website uses cookies to improve your experience while you navigate through the website. Out of these, the cookies that are categorized as necessary are stored on your browser as they are essential for the working of basic functionalities of the website. We also use third-party cookies that help us analyze and understand how you use this website. These cookies will be stored in your browser only with your consent. You also have the option to opt-out of these cookies. But opting out of some of these cookies may affect your browsing experience.
Necessary cookies are absolutely essential for the website to function properly. These cookies ensure basic functionalities and security features of the website, anonymously.
Cookie
Duration
Description
cookielawinfo-checkbox-analytics
11 months
This cookie is set by GDPR Cookie Consent plugin. The cookie is used to store the user consent for the cookies in the category "Analytics".
cookielawinfo-checkbox-functional
11 months
The cookie is set by GDPR cookie consent to record the user consent for the cookies in the category "Functional".
cookielawinfo-checkbox-necessary
11 months
This cookie is set by GDPR Cookie Consent plugin. The cookies is used to store the user consent for the cookies in the category "Necessary".
cookielawinfo-checkbox-others
11 months
This cookie is set by GDPR Cookie Consent plugin. The cookie is used to store the user consent for the cookies in the category "Other.
cookielawinfo-checkbox-performance
11 months
This cookie is set by GDPR Cookie Consent plugin. The cookie is used to store the user consent for the cookies in the category "Performance".
viewed_cookie_policy
11 months
The cookie is set by the GDPR Cookie Consent plugin and is used to store whether or not user has consented to the use of cookies. It does not store any personal data.
Functional cookies help to perform certain functionalities like sharing the content of the website on social media platforms, collect feedbacks, and other third-party features.
Performance cookies are used to understand and analyze the key performance indexes of the website which helps in delivering a better user experience for the visitors.
Analytical cookies are used to understand how visitors interact with the website. These cookies help provide information on metrics the number of visitors, bounce rate, traffic source, etc.
Advertisement cookies are used to provide visitors with relevant ads and marketing campaigns. These cookies track visitors across websites and collect information to provide customized ads.