Excerpt: ‘Project Noah-The Floating Village at Majuli, Assam, India’ is an architecture thesis by Biplob Saikia from the Department of Planning and Architecture – Mizoram University, that explores the concept of floating architecture, which is uncommon in India, and encourages the construction of buildings that can both withstand natural disasters and offer a better quality of life. With locally sourced, sustainable materials and innovative technological methods, the proposal serves as a model for disaster resilient housing to keep the village from flooding.
Introduction: Natural disasters, such as flooding, are severe events that cause property damage or loss of life. In India, flooding is the most common, especially in Assam. Majuli, the largest river island, experiences annual flooding near the Brahmaputra river. This flood destroys homes, surrounding areas, and erodes riverbanks, causing widespread destruction and loss of land.
Disaster resilience is the process of making communities and nations more resilient to shocks and recover quickly. It involves reimagining or rebuilding architectural styles to withstand natural disasters and save lives. The concept of smart villages or micro-settlements was created in rural areas to improve living standards. The focus is on restoring devastated villages and encouraging the construction of buildings that can withstand disasters.
The project explores the concept of floating architecture, which is uncommon in India, and encourages the construction of buildings that can both withstand natural disasters and offer a better quality of life. The architecture thesis intends to serve as a model for disaster resilient housing to keep the village from flooding, by implementing locally sourced, sustainable materials and innovative technological methods.
Map of Majuli (Source: militarychoice.com)Site of Salmora VillageVegetation Along the River Brahmaputra and the Vacant Land and A View of the Vacant Land Near Salmora Village During Winter
Majuli Island is a fluvial landform developed by the Brahmaputra River system in India. The site is in the Salmora village, which is next to the powerful River Brahmaputra in the southwest of Majuli. The site is in a danger zone all the time because of annual flooding and bank erosion, which causes the village to lose most of its landmass, leading people to become homeless and lose agricultural land.
Site Analysis and Grid wise Comparison between Flood and Erosion (1972-2010) (Source: “Rural Risk Assessment due to flooding and Riverbank Erosion in Majuli, Assam, India” by Dipima Sarma)Climatic Data of Salmora Village in Majuli
The site for the project is a vacant plot of land adjacent to the village. The area is primarily used for agriculture and small settlements, with the remaining areas being mostly swamps and greenery. Based on a few case studies and observations, the site of Salmora village was selected for the thesis. Images, data, and references from Dipima Sarma’s research paper “Rural Risk Assessment due to Flooding and Riverbank Erosion in Majuli, Assam, India” were analysed with a view to selecting the Majuli location.
Design Process
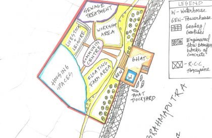
Conceptual Key Planning of the Smart Micro-settlement ProjectConceptual sketch of the Smart micro-settlement project showcasing community centre, individual houses, floating farms and high lands
The idea behind the Smart Micro-settlement was actually influenced by a number of sources, such as the Amsterdam floating houses, H&P Architects’ Blooming Bamboo in Vietnam, and Prosun Prithula’s Lift House. The goal is to use buoyancy materials to make the entire smart settlement float by combining the knowledge of all these structures. Thus, the plan was not only to create individual houses that float, but also to create floating bridges that would facilitate village residents’ easy access to every block within Salmora Village’s floodplain.
Conceptual Diagram of InitiationConceptual sections of the smart micro-settlement project showcasing how the entire site will respond to high rise in water level
Thus the concept Float Plan-Project Noah was introduced. Twelve dwellings, comprising four, six, and eight-member family homes, along with a community centre, are to be situated here. A variety of innovative ideas were combined to make the village self-sufficient, such as employing a poncelet wheel to power the twelve dwellings.
Final Outcome
Masterplan with Disaster Resilient TechniquesSite Sections at different Water Levels
In the development stage, a unique connecting pathway is created by placing the houses radially in relation to the floating bridge. The main pathway leads to the community centre, which is situated in the centre of the site plan. The Ghat is at the edge of the bank-shore, connecting the river to the land and serving as a boat deck for the villagers. Artificial hollow engineered blocks are used throughout the smart village’s shoreline to stop the river Brahmaputra from eroding the land of the Salmora village.
Floor Plans of UnitsDesign of Housing SpacesView of the floating bridge and how it floats along with the rising water level
To stop bankline erosion, the government has implemented a number of measures, including the building of embankments, RCC porcupines, sandbags along river edges, etc. These safety precautions, however, had minimal impact in averting the issue. In fact, the problem of bankline erosion has been made worse in many areas of the island by these protective measures. The Water Resource Department (WRD) of Assam has implemented Geo-Bags, Geo-Tubes, and Geo-mattress as part of a three-layer protective measure in recent years.
Exploded Axonometric of 6 Member Unit and Exploded Axonometric of Community CenterUnit Elevations at different Water Levels
While floating architecture is becoming more and more popular around the globe, it is uncommon in India, particularly in Northeast India. One of the many ideas Majuli needs right now is the concept of a floating village that can provide resilience against flooding. The old idea of stilt houses is still in place and can provide some resilience against flooding, but floating houses may be the way of the future because stilt houses can only go so high, whereas some design changes to the floating house can increase its level of flotation during high flood water rise.
Community Center Elevations at different Water LevelsStructure of 6 Member UnitFloating Farm along with the Community Center
The idea of floating farms, which mostly originated in Bangladesh, is also one of the most creative concepts that can provide villagers with a means of subsistence in addition to food. Using the principles of hydroponics, floating farms cultivate vegetables by enclosing their seeds in a light-weight manure composed of materials such as coconut husks. Because of the principle of buoyancy, the farm essentially waits for the flood to arrive before floating.
View of the settlement how the entire site interacts with each other along with the river BrahmaputraView of the smart settlement which showcases how it withstands flood
Considering that the land will eventually be consumed by the powerful Brahmaputra River and leave no room for human habitation, the concept of resilience against riverbank erosion is also one of the project’s most crucial aspects. The Burj Al Arab, an artificial island surrounded by engineered blocks designed to protect it from Persian Gulf waves, served as the model for the project’s proposal to use hollow engineered blocks as an embankment along the riverbank. As of right now, the engineered blocks offer the entire island excellent protection. A comparable approach has been employed to strengthen the erosion resistance of the Smart-settlement based on this effective case study.
Smart settlement with 3 meter rise in water level
Conclusion: With locally sourced, sustainable materials and innovative technological methods, the proposal serves as a model for disaster resilient housing to keep the village from flooding. The project presents the concept of floating architecture, which is uncommon in India, and encourages the construction of buildings that can both withstand natural disasters and offer a better quality of life.
[This Academic Project has been published with text submitted by the student]
Site Context
Design Process
Final Outcome
To submit your academic project for publication at ArchiDiaries, please visit the following link >> Submit
Get the best of ArchiDiaries, directly in your inbox.
We use cookies on our website to give you the most relevant experience by remembering your preferences and repeat visits. By clicking “Accept All”, you consent to the use of ALL the cookies. However, you may visit "Cookie Settings" to provide a controlled consent.
This website uses cookies to improve your experience while you navigate through the website. Out of these, the cookies that are categorized as necessary are stored on your browser as they are essential for the working of basic functionalities of the website. We also use third-party cookies that help us analyze and understand how you use this website. These cookies will be stored in your browser only with your consent. You also have the option to opt-out of these cookies. But opting out of some of these cookies may affect your browsing experience.
Necessary cookies are absolutely essential for the website to function properly. These cookies ensure basic functionalities and security features of the website, anonymously.
Cookie
Duration
Description
cookielawinfo-checkbox-analytics
11 months
This cookie is set by GDPR Cookie Consent plugin. The cookie is used to store the user consent for the cookies in the category "Analytics".
cookielawinfo-checkbox-functional
11 months
The cookie is set by GDPR cookie consent to record the user consent for the cookies in the category "Functional".
cookielawinfo-checkbox-necessary
11 months
This cookie is set by GDPR Cookie Consent plugin. The cookies is used to store the user consent for the cookies in the category "Necessary".
cookielawinfo-checkbox-others
11 months
This cookie is set by GDPR Cookie Consent plugin. The cookie is used to store the user consent for the cookies in the category "Other.
cookielawinfo-checkbox-performance
11 months
This cookie is set by GDPR Cookie Consent plugin. The cookie is used to store the user consent for the cookies in the category "Performance".
viewed_cookie_policy
11 months
The cookie is set by the GDPR Cookie Consent plugin and is used to store whether or not user has consented to the use of cookies. It does not store any personal data.
Functional cookies help to perform certain functionalities like sharing the content of the website on social media platforms, collect feedbacks, and other third-party features.
Performance cookies are used to understand and analyze the key performance indexes of the website which helps in delivering a better user experience for the visitors.
Analytical cookies are used to understand how visitors interact with the website. These cookies help provide information on metrics the number of visitors, bounce rate, traffic source, etc.
Advertisement cookies are used to provide visitors with relevant ads and marketing campaigns. These cookies track visitors across websites and collect information to provide customized ads.