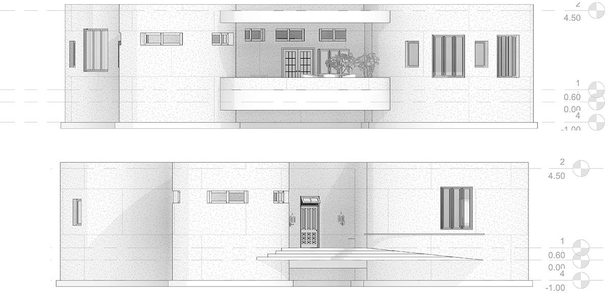
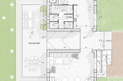
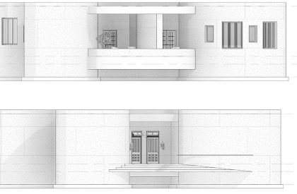
Excerpt: ‘Reinstating the Element of Earth’ is an architecture thesis by Shaun Martin Fernandes from the Dr. Baliram Hiray College of Architecture, that seeks to explore sustainability through tourism and address the harmful hold that concrete has on the ecosystem. The thesis aims to design a resort that promotes sustainable and culturally relevant building practices through rammed earth construction techniques.
Introduction: Excessive use of concrete in rural building architecture can negatively impact society, the environment, and vernacular architecture. It may result in reduced sustainability, issues with water management, a loss of cultural legacy and identity, negative effects on the environment, and a division between traditional and modern lifestyles. It is critical to promote sustainable, culturally relevant building practices and to take into account how new construction could impact rural areas.
The tourism sector in Gujarat’s Kutch and North Gujarat area requires contemporary resorts with eco-friendly amenities, as the construction industry contributes to emissions and climate change. Traditional techniques exploit transportation costs and non-biodegradable nature, negatively impacting the ecosystem. Transitioning to locally sourced materials can mitigate environmental impacts, foster local expertise, and create job opportunities. Understanding local built forms can help understand communities’ adaptability. Tourism can reverse desertification, but sustainable activities are crucial for it to flourish.
The project seeks to explore sustainable architecture through tourism and address the harmful hold that concrete has on the ecosystem. The goal of this architecture thesis is to design a resort in the Jaloya region of Banaskantha district, that promotes sustainable and culturally relevant building practices by implementing rammed earth construction techniques.
Save
























